Terug naar resultatenBadhuislaan 15 K
Badhuislaan 15 K
1217 SJ HILVERSUM
€ 1.035.000 k.k.
Omschrijving
Monumentale klasse, moderne luxe – wonen in Het Badhuis
Stap binnen in een stukje Hilversumse geschiedenis, volledig vernieuwd voor de toekomst.
Dit exclusieve appartement van twee woonlagen, gelegen in het gemeentelijk monument Het Badhuis (1912), combineert het karakter van vroeger met het comfort van nu. In 2021 volledig opgeleverd, goed geïsoleerd, instap klaar – en voorzien van alles wat wonen luxe maakt.
Highlights op een rij:
• 159 m² woonoppervlakte verdeeld over twee verdiepingen
• Monumentale details, hoge plafonds en grote raampartijen
• Drie ruime slaapkamers en twee complete badkamers
• Luxe woonkeuken met kookeiland, Quooker en hoogwaardige apparatuur
• Zuidwestgerichte tuin (middag- en avondzon!) van 94 m²
• Eigen parkeerplaats met laadpaal en privéberging in afgesloten garage
• Gezamenlijke fietsenstalling
Locatie: rust én reuring
Gelegen in villawijk Boomberg, met zijn statige, bomenrijke lanen, én op loopafstand van het bruisende, gevarieerde centrum. Het stadspark de Oude Haven, het Corversbos, de Hoorneboegse Heide, winkels, gezellige horeca en station zijn dichtbij. Met de trein sta je in circa 20 minuten in Amsterdam of Utrecht.
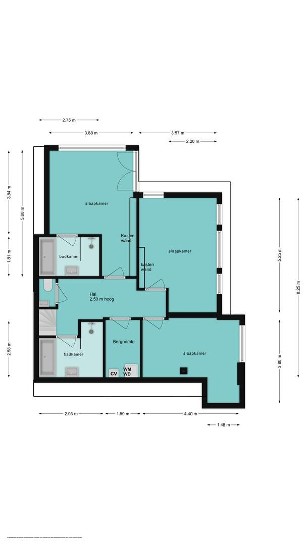
Indeling
De bel-etage biedt een indrukwekkende, open leefruimte van ca. 80 m² met veel lichtinval van alle kanten. De moderne woonkeuken vormt het hart van het huis. Toilet met fontein. Beneden bevinden zich drie slaapkamers, twee badkamers, een apart toilet en een praktische was-/bergruimte. Alles is hoogwaardig afgewerkt met een pvc-vloer in ‘Hongaarse punt’, vloerverwarming en strak stucwerk.
Een kans om groots te wonen, in stijl én comfort.
Dit is niet zomaar een appartement, maak een afspraak en ervaar het zelf!
+ Meer omschrijving
- Minder omschrijving
Stap binnen in een stukje Hilversumse geschiedenis, volledig vernieuwd voor de toekomst.
Dit exclusieve appartement van twee woonlagen, gelegen in het gemeentelijk monument Het Badhuis (1912), combineert het karakter van vroeger met het comfort van nu. In 2021 volledig opgeleverd, goed geïsoleerd, instap klaar – en voorzien van alles wat wonen luxe maakt.
Highlights op een rij:
• 159 m² woonoppervlakte verdeeld over twee verdiepingen
• Monumentale details, hoge plafonds en grote raampartijen
• Drie ruime slaapkamers en twee complete badkamers
• Luxe woonkeuken met kookeiland, Quooker en hoogwaardige apparatuur
• Zuidwestgerichte tuin (middag- en avondzon!) van 94 m²
• Eigen parkeerplaats met laadpaal en privéberging in afgesloten garage
• Gezamenlijke fietsenstalling
Locatie: rust én reuring
Gelegen in villawijk Boomberg, met zijn statige, bomenrijke lanen, én op loopafstand van het bruisende, gevarieerde centrum. Het stadspark de Oude Haven, het Corversbos, de Hoorneboegse Heide, winkels, gezellige horeca en station zijn dichtbij. Met de trein sta je in circa 20 minuten in Amsterdam of Utrecht.
Indeling
De bel-etage biedt een indrukwekkende, open leefruimte van ca. 80 m² met veel lichtinval van alle kanten. De moderne woonkeuken vormt het hart van het huis. Toilet met fontein. Beneden bevinden zich drie slaapkamers, twee badkamers, een apart toilet en een praktische was-/bergruimte. Alles is hoogwaardig afgewerkt met een pvc-vloer in ‘Hongaarse punt’, vloerverwarming en strak stucwerk.
Een kans om groots te wonen, in stijl én comfort.
Dit is niet zomaar een appartement, maak een afspraak en ervaar het zelf!
Kenmerken
| Bouwjaar | 2021 |
|---|---|
| Bouwvorm | bestaande bouw |
| Woonoppervlakte | 161 |
| Aantal kamers | 4 |
Overdracht
| Status | Verkocht |
|---|---|
| Prijs | € 1.035.000 Kosten koper excl. € 348,00 servicekosten |
| Aanvaarding | in overleg |
Bouw vorm
| Bouwjaar | 2021 |
|---|---|
| Bouwvorm | bestaande bouw |
Indeling
| Woonoppervlakte | 161 |
|---|---|
| Inhoud | 558 |
| Aantal kamers | 4 |
| Slaapkamers | 3 |
| Etages | 2 |
Tuin
| Tuin | Voortuin, Zijtuin |
|---|---|
| Hoofdtuin oppervlakte | 60 |
| Hoofdtuin positie | West |
| Aantal bergingen | 1 |
Parking
| Garage soort | Parkeerkelder |
|---|
In de buurt
Wij kennen werkelijk iedere straat en elke hoek van Hilversum. Benieuwd wat een buurt je te bieden heeft? We kunnen je er alles over vertellen!





