Terug naar resultatenBosdrift 45
Bosdrift 45
1214 JS HILVERSUM
€ 450.000 k.k.
Omschrijving
Charmante hoekwoning met karakter en ruimte
Op een geliefde locatie in Hilversum-Zuid staat deze verrassend ruime en lichte hoekwoning (103 m²) met voortuin.
Een huis dat direct een gevoel van warmte en karakter oproept, dankzij de hoge plafonds en de sfeervolle indeling. en zeer ruime aanpandige bijkeuken/schuur. Vanuit de bijkeuken/schuur bereik je de steeg die uitkomt op de Begoniastraat.
Indeling:
Begane grond: entree, hal, meterkast, toilet, ruime (brede) woon-/eetkamer met erker aan de voorzijde, tevens ruime keuken met diverse inbouwapparatuur en doorloop naar bijkeuken/schuur.
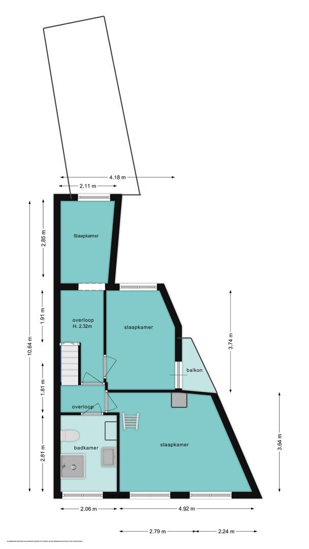
1e verdieping: overloop, fraaie badkamer met douche, 2e toilet en wastafelmeubel, zeer ruime hoofdslaapkamer aan de voorzijde van de woning met trappetje naar bergzolder, 2e slaapkamer met toegang tot balkonnetje en 3e kleine kamer.
Pluspunten op een rij:
• royale hoofdslaapkamer, een tweede middelgrote kamer én een derde compacte slaapkamer;
• lichte woonkamer met hoge plafonds, waardoor de ruimte extra groot aanvoelt;
• handige vliering voor extra bergruimte;
• riante bijkeuken/berging met achterom – praktisch voor fietsen, hobby’s en opslag;
• badkamer voorzien van douche, wastafel en toilet;
• sfeervolle voortuin, waar je gezellig kunt zitten of genieten van het groen.
De Bosdrift staat bekend als een fijne woonstraat, op korte afstand van winkels, scholen, station en het gezellige centrum van Hilversum. Een heerlijke plek voor wie stadsgemak wil combineren met de charme van een rustige woonomgeving.
Heerlijk wonen in karakteristiek huis op loopafstand van de winkels van de Gijsbrecht? Dan is dit huis echt iets voor jou!
+ Meer omschrijving
- Minder omschrijving
Op een geliefde locatie in Hilversum-Zuid staat deze verrassend ruime en lichte hoekwoning (103 m²) met voortuin.
Een huis dat direct een gevoel van warmte en karakter oproept, dankzij de hoge plafonds en de sfeervolle indeling. en zeer ruime aanpandige bijkeuken/schuur. Vanuit de bijkeuken/schuur bereik je de steeg die uitkomt op de Begoniastraat.
Indeling:
Begane grond: entree, hal, meterkast, toilet, ruime (brede) woon-/eetkamer met erker aan de voorzijde, tevens ruime keuken met diverse inbouwapparatuur en doorloop naar bijkeuken/schuur.
1e verdieping: overloop, fraaie badkamer met douche, 2e toilet en wastafelmeubel, zeer ruime hoofdslaapkamer aan de voorzijde van de woning met trappetje naar bergzolder, 2e slaapkamer met toegang tot balkonnetje en 3e kleine kamer.
Pluspunten op een rij:
• royale hoofdslaapkamer, een tweede middelgrote kamer én een derde compacte slaapkamer;
• lichte woonkamer met hoge plafonds, waardoor de ruimte extra groot aanvoelt;
• handige vliering voor extra bergruimte;
• riante bijkeuken/berging met achterom – praktisch voor fietsen, hobby’s en opslag;
• badkamer voorzien van douche, wastafel en toilet;
• sfeervolle voortuin, waar je gezellig kunt zitten of genieten van het groen.
De Bosdrift staat bekend als een fijne woonstraat, op korte afstand van winkels, scholen, station en het gezellige centrum van Hilversum. Een heerlijke plek voor wie stadsgemak wil combineren met de charme van een rustige woonomgeving.
Heerlijk wonen in karakteristiek huis op loopafstand van de winkels van de Gijsbrecht? Dan is dit huis echt iets voor jou!
Kenmerken
| Bouwjaar | 1906 |
|---|---|
| Bouwvorm | bestaande bouw |
| Woonoppervlakte | 103 |
| Aantal kamers | 4 |
Overdracht
| Status | Verkocht |
|---|---|
| Prijs | € 450.000 Kosten koper |
| Aanvaarding | in overleg |
Bouw vorm
| Bouwjaar | 1906 |
|---|---|
| Bouwvorm | bestaande bouw |
Indeling
| Woonoppervlakte | 103 |
|---|---|
| Inhoud | 372 |
| Aantal kamers | 4 |
| Slaapkamers | 3 |
| Etages | 3 |
Tuin
| Tuin | Voortuin |
|---|---|
| Hoofdtuin oppervlakte | 28 |
| Hoofdtuin positie | West |
| Aantal bergingen | 1 |
Parking
| Garage soort | Geen garage |
|---|
In de buurt
Wij kennen werkelijk iedere straat en elke hoek van Hilversum. Benieuwd wat een buurt je te bieden heeft? We kunnen je er alles over vertellen!





