Terug naar resultatenDalweg 3
Dalweg 3
1217 HX HILVERSUM
€ 849.000 k.k.
Omschrijving
In het geliefde Raadhuiskwartier ligt deze charmante helft van een dubbele villa met oprit, carport en berging. Met ca. 180 m² woonoppervlakte op een perceel van 282 m² is dit een huis dat uitnodigt tot opnieuw vormgeven, moderniseren en laten meegroeien met jouw manier van wonen.
De vorige bewoners hebben hier jarenlang met enorm veel plezier gewoond – nu is het jouw kans om hier een nieuw hoofdstuk te schrijven. De basis is fantastisch en de ruimte is verrassend.
Waarom dit huis uniek is:
- sfeervolle jaren ’20 architectuur;
- authentieke details (en suite, balkons, indeling);
- heerlijke vrij gelegen tuin;
- parkeren op eigen terrein (oprit + carport);
- een gewilde Hilversumse locatie.
Locatie
Hier woon je rustig en groen, maar letterlijk op loopafstand van het levendige centrum van Hilversum. Scholen om de hoek, NS-station en uitvalswegen vlakbij.
Indeling
Begane grond
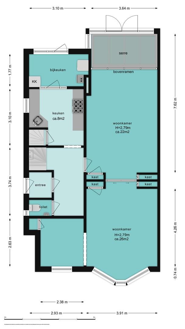
Entree via de voordeur naar een vestibule, doorlopend naar de hal met trapopgang en toegang tot de kelder. De royale L-vormige woonkamer en suite met schuifdeuren is aan de achterzijde uitgebouwd en heeft grote raampartijen en openslaande deuren naar de zonnige tuin. Hierdoor is er een prachtige verbinding tussen binnen en buiten.
Eenvoudige maar functionele keuken aan de achterzijde met toegang tot de bijkeuken. Vanuit de bijkeuken stap je direct de vrij gelegen tuin in. Het parkeren doe je op eigen terrein op de oprit en onder de carport.
Eerste verdieping
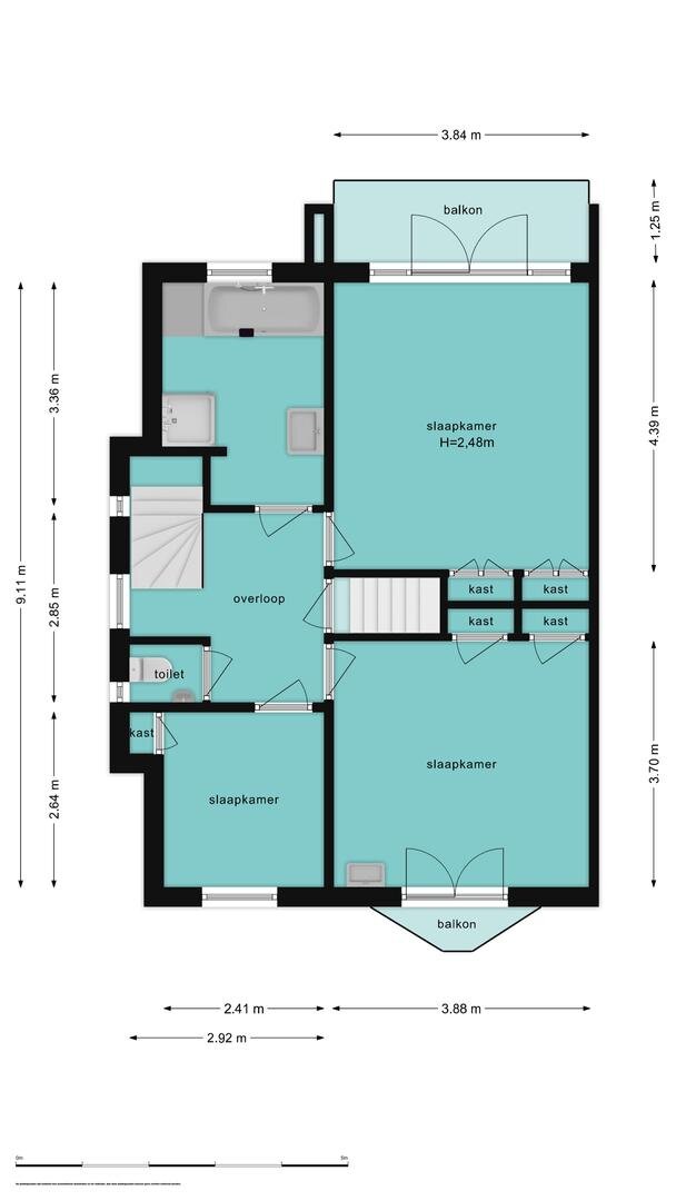
Overloop. Drie in grootte variërende slaapkamers, alle met inbouwkasten. Aan zowel de voorzijde als achterzijde bevindt zich een balkon, te bereiken via de slaapkamers. De badkamer is voorzien van een ligbad, separate douche en wastafel. Separaat toilet op de overloop.
Tweede verdieping
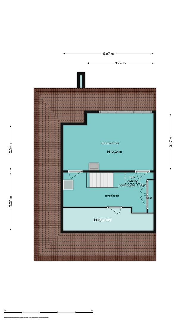
Via de vaste trap bereik je de ruime voorzolder met toegang tot veel praktische bergruimte. Hier vind je bovendien een royale vierde slaapkamer met dakkapel waardoor er extra fijne lichtinval is. Er is zelfs de mogelijkheid om op zolder nog een extra (vijfde) kamer te creëren.
Kortom: Een heerlijk huis op een absolute toplocatie. Met charme, inhoud en potentie. Hier maak je jouw ideale Hilversum thuis.
+ Meer omschrijving
- Minder omschrijving
De vorige bewoners hebben hier jarenlang met enorm veel plezier gewoond – nu is het jouw kans om hier een nieuw hoofdstuk te schrijven. De basis is fantastisch en de ruimte is verrassend.
Waarom dit huis uniek is:
- sfeervolle jaren ’20 architectuur;
- authentieke details (en suite, balkons, indeling);
- heerlijke vrij gelegen tuin;
- parkeren op eigen terrein (oprit + carport);
- een gewilde Hilversumse locatie.
Locatie
Hier woon je rustig en groen, maar letterlijk op loopafstand van het levendige centrum van Hilversum. Scholen om de hoek, NS-station en uitvalswegen vlakbij.
Indeling
Begane grond
Entree via de voordeur naar een vestibule, doorlopend naar de hal met trapopgang en toegang tot de kelder. De royale L-vormige woonkamer en suite met schuifdeuren is aan de achterzijde uitgebouwd en heeft grote raampartijen en openslaande deuren naar de zonnige tuin. Hierdoor is er een prachtige verbinding tussen binnen en buiten.
Eenvoudige maar functionele keuken aan de achterzijde met toegang tot de bijkeuken. Vanuit de bijkeuken stap je direct de vrij gelegen tuin in. Het parkeren doe je op eigen terrein op de oprit en onder de carport.
Eerste verdieping
Overloop. Drie in grootte variërende slaapkamers, alle met inbouwkasten. Aan zowel de voorzijde als achterzijde bevindt zich een balkon, te bereiken via de slaapkamers. De badkamer is voorzien van een ligbad, separate douche en wastafel. Separaat toilet op de overloop.
Tweede verdieping
Via de vaste trap bereik je de ruime voorzolder met toegang tot veel praktische bergruimte. Hier vind je bovendien een royale vierde slaapkamer met dakkapel waardoor er extra fijne lichtinval is. Er is zelfs de mogelijkheid om op zolder nog een extra (vijfde) kamer te creëren.
Kortom: Een heerlijk huis op een absolute toplocatie. Met charme, inhoud en potentie. Hier maak je jouw ideale Hilversum thuis.
Kenmerken
| Bouwjaar | 1924 |
|---|---|
| Bouwvorm | bestaande bouw |
| Woonoppervlakte | 180 |
| Aantal kamers | 5 |
Overdracht
| Status | Verkocht onder voorbehoud |
|---|---|
| Prijs | € 849.000 Kosten koper |
| Aanvaarding | in overleg |
Bouw vorm
| Bouwjaar | 1924 |
|---|---|
| Bouwvorm | bestaande bouw |
Indeling
| Woonoppervlakte | 180 |
|---|---|
| Inhoud | 680 |
| Aantal kamers | 5 |
| Slaapkamers | 4 |
| Etages | 4 |
Tuin
| Tuin | Achtertuin, Voortuin |
|---|---|
| Hoofdtuin oppervlakte | 56 |
| Hoofdtuin positie | Noordwest |
| Aantal bergingen | 1 |
Parking
| Garage soort | Carport |
|---|
In de buurt
Wij kennen werkelijk iedere straat en elke hoek van Hilversum. Benieuwd wat een buurt je te bieden heeft? We kunnen je er alles over vertellen!







