Terug naar resultatenEemnesserweg 202
Eemnesserweg 202
1223 GH HILVERSUM
€ 645.000 k.k.
Omschrijving
Aan de geliefde Eemnesserweg in Hilversum staat deze charmante en goed onderhouden middenwoning klaar voor nieuwe bewoners. Met een zonnige tuin op het zuiden, vernieuwde keuken, moderne badkamer en duurzame voorzieningen zoals zonnepanelen en isolatie, combineert deze woning comfort met karakter. Kortom, een heerlijke plek om thuis te komen.
Met een woonoppervlakte van 111 m² ligt de woning op een ideale locatie: tegenover een kleine speeltuin en op loopafstand van het gezellige centrum van Hilversum, winkelcentrum Seinhorst en het NS-station. Binnen vijf minuten wandelen bevindt u zich al op de prachtige Zuiderheide – perfect voor een ontspannende wandeling in de natuur.
Indeling
Begane grond: entree, gang met trapkast en modern toilet met wasbakje, de woonkamer heeft een erker aan de voorzijde. Dit gedeelte waardoor er een ruim en licht zitgedeelte ontstaat. Het eetgedeelte heeft verbinding met de open keuken, die eind 2024 is vernieuwd en is uitgerust met een 5-pits inductiekookplaat, koelkast, en afwasmachine. De achtertuin is gelegen op het zuiden en heeft een stenen schuur met elektra en een achterom.
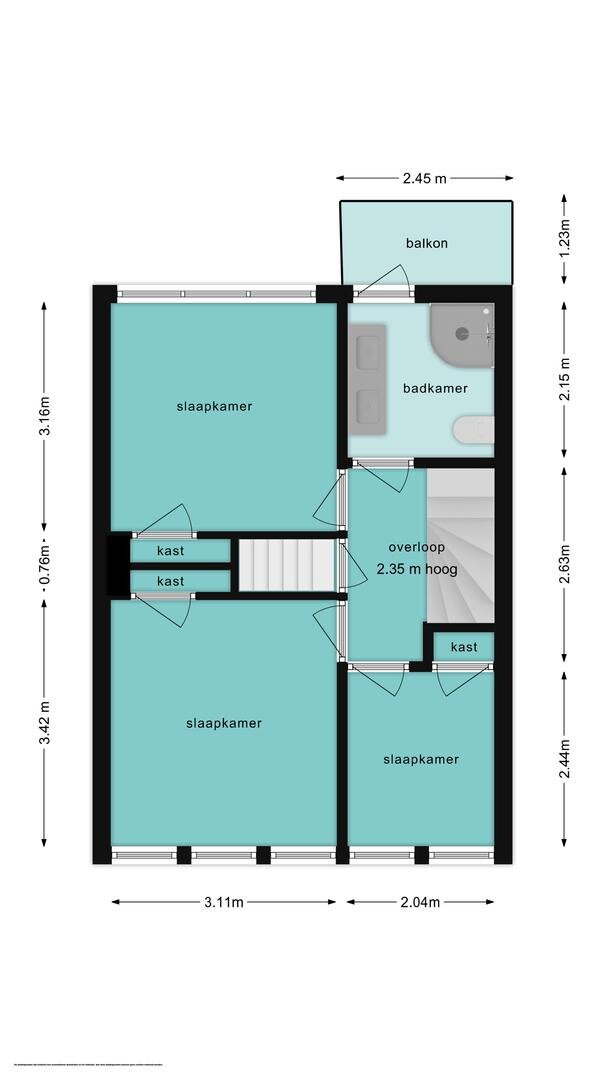
Eerste verdieping: overloop met 2 ruime slaapkamers en een derde, kleinere slaapkamer (allen voorzien van een ruime inbouwkast). De moderne badkamer beschikt over een ruime douche, dubbele wastafel en toilet, en biedt tevens toegang tot het balkon.
Tweede verdieping: ruime slaapkamer aan de voorzijde met een dakkapel en vaste kastenruimte. Aan de achterzijde is een open ruimte met veel bergruimte, ideaal om te gebruiken als werkplek, hobbykamer of sportruimte. Hier zijn tevens de wasmachine-/drogeraansluiting en de cv-installatie (Remeha 2024) geplaatst.
Middels een losse trap is de bergvliering bereikbaar.
De woning verkeert in zeer goede staat van onderhoud en heeft veel karakteristieke stijlkenmerken. Voorzien van gevelisolatie, vloerisolatie en HR++ beglazing (deels). Tevens zijn er 7 zonnepanelen aanwezig.
Ben je op zoek naar een sfeervolle, instapklare woning met ruimte, licht en een zonnige tuin op een centrale en kindvriendelijke plek in Hilversum? Dan zou dit zomaar jouw nieuwe thuis kunnen zijn.
Wij nodigen je graag uit voor een bezichtiging, zodat je zelf de warmte, de sfeer en het comfort van deze woning kunt ervaren.
Bijzonderheden:
- Karakteristieke stijlkenmerken behouden;
- Goed onderhouden en geïsoleerd;
- Centrale verwarming Remeha Tzerra Ace-Matic 28c (2024);
- Muur- en vloerisolatie (2024);
- 7 zonnepanelen (2023);
- Het buiten schilderwerk is (grotendeels) in 2025 uitgevoerd;
- Het dak is in 2019 geheel vervangen;
- Nieuwe terrasdeuren (2021).
+ Meer omschrijving
- Minder omschrijving
Met een woonoppervlakte van 111 m² ligt de woning op een ideale locatie: tegenover een kleine speeltuin en op loopafstand van het gezellige centrum van Hilversum, winkelcentrum Seinhorst en het NS-station. Binnen vijf minuten wandelen bevindt u zich al op de prachtige Zuiderheide – perfect voor een ontspannende wandeling in de natuur.
Indeling
Begane grond: entree, gang met trapkast en modern toilet met wasbakje, de woonkamer heeft een erker aan de voorzijde. Dit gedeelte waardoor er een ruim en licht zitgedeelte ontstaat. Het eetgedeelte heeft verbinding met de open keuken, die eind 2024 is vernieuwd en is uitgerust met een 5-pits inductiekookplaat, koelkast, en afwasmachine. De achtertuin is gelegen op het zuiden en heeft een stenen schuur met elektra en een achterom.
Eerste verdieping: overloop met 2 ruime slaapkamers en een derde, kleinere slaapkamer (allen voorzien van een ruime inbouwkast). De moderne badkamer beschikt over een ruime douche, dubbele wastafel en toilet, en biedt tevens toegang tot het balkon.
Tweede verdieping: ruime slaapkamer aan de voorzijde met een dakkapel en vaste kastenruimte. Aan de achterzijde is een open ruimte met veel bergruimte, ideaal om te gebruiken als werkplek, hobbykamer of sportruimte. Hier zijn tevens de wasmachine-/drogeraansluiting en de cv-installatie (Remeha 2024) geplaatst.
Middels een losse trap is de bergvliering bereikbaar.
De woning verkeert in zeer goede staat van onderhoud en heeft veel karakteristieke stijlkenmerken. Voorzien van gevelisolatie, vloerisolatie en HR++ beglazing (deels). Tevens zijn er 7 zonnepanelen aanwezig.
Ben je op zoek naar een sfeervolle, instapklare woning met ruimte, licht en een zonnige tuin op een centrale en kindvriendelijke plek in Hilversum? Dan zou dit zomaar jouw nieuwe thuis kunnen zijn.
Wij nodigen je graag uit voor een bezichtiging, zodat je zelf de warmte, de sfeer en het comfort van deze woning kunt ervaren.
Bijzonderheden:
- Karakteristieke stijlkenmerken behouden;
- Goed onderhouden en geïsoleerd;
- Centrale verwarming Remeha Tzerra Ace-Matic 28c (2024);
- Muur- en vloerisolatie (2024);
- 7 zonnepanelen (2023);
- Het buiten schilderwerk is (grotendeels) in 2025 uitgevoerd;
- Het dak is in 2019 geheel vervangen;
- Nieuwe terrasdeuren (2021).
Kenmerken
| Bouwjaar | 1931 |
|---|---|
| Bouwvorm | bestaande bouw |
| Woonoppervlakte | 111 |
| Aantal kamers | 6 |
Overdracht
| Status | Verkocht |
|---|---|
| Prijs | € 645.000 Kosten koper |
| Aanvaarding | in overleg |
Bouw vorm
| Bouwjaar | 1931 |
|---|---|
| Bouwvorm | bestaande bouw |
Indeling
| Woonoppervlakte | 111 |
|---|---|
| Inhoud | 386 |
| Aantal kamers | 6 |
| Slaapkamers | 4 |
| Etages | 4 |
Tuin
| Tuin | Achtertuin, Voortuin |
|---|---|
| Hoofdtuin oppervlakte | 30 |
| Hoofdtuin positie | Zuid |
| Aantal bergingen | 1 |
Parking
| Garage soort | Geen garage |
|---|
In de buurt
Wij kennen werkelijk iedere straat en elke hoek van Hilversum. Benieuwd wat een buurt je te bieden heeft? We kunnen je er alles over vertellen!






