Terug naar resultatenEricastraat 19
Ericastraat 19
1214 EJ HILVERSUM
€ 575.000 k.k.
Omschrijving
Aan de sfeervolle Ericastraat, in het geliefde Hilversum-Zuid, staat deze charmante en smaakvol gerenoveerde woning uit 1905. Achter de karakteristieke gevel schuilt een verrassend ruim en licht huis van circa 108 m², dat met veel zorg en gevoel voor stijl is vernieuwd. Hier gaan de authentieke details van toen moeiteloos samen met het comfort en de kwaliteit van nu: energielabel C, goed geïsoleerde gevels en dak, en volledig voorzien van dubbel glas.
Locatie:
De ligging is ideaal: rustig en in een straat met veel groen, maar toch vlak bij de levendigheid. Om de hoek ligt de populaire Gijsbrecht van Amstelstraat, met haar boetieks, delicatessenzaken, koffiebars en restaurants. Tegelijkertijd liggen heide en bos op loop- en fietsafstand, perfect voor ontspanning in de natuur. Scholen, sportvoorzieningen en openbaar vervoer bevinden zich in de directe omgeving. Het centrum van Hilversum en het station zijn binnen enkele minuten per fiets bereikbaar, en de uitvalswegen richting Amsterdam en Utrecht liggen ook op korte afstand.
Indeling:
Via de voordeur stap je binnen in een hal die toegang geeft tot de lichte en sfeervolle woon- en eetkamer. De halfopen keuken is modern en smaakvol afgewerkt, voorzien van luxe inbouwapparatuur en biedt volop bergruimte. Vanuit de keuken zijn zowel de kelder als het moderne toilet met wastafel bereikbaar. De openslaande deuren leiden naar de onderhoudsvriendelijke en zonnige achtertuin, met ruimte voor een eettafel en loungehoek. Achterin de tuin met een achterom staat een praktische schuur voor fietsen en tuingereedschap.
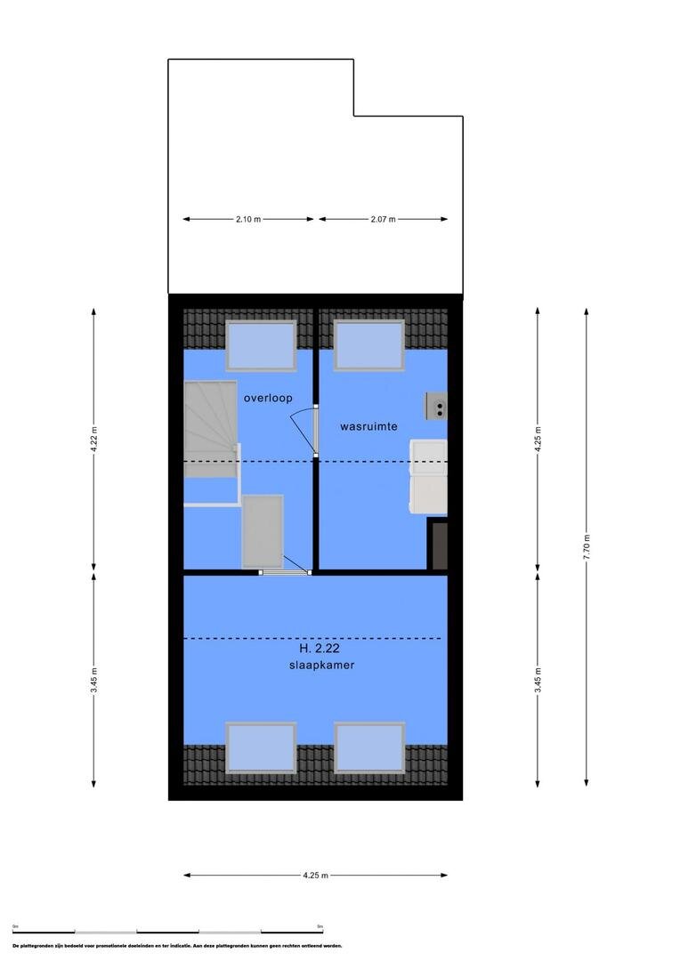
Op de eerste verdieping bevinden zich twee slaapkamers. De ruime hoofdslaapkamer aan de achterzijde beschikt over airconditioning (2023) en een inbouwkast over de volle breedte. De moderne badkamer is stijlvol uitgevoerd en voorzien van een inloopdouche, wastafelmeubel en tweede toilet. De tweede verdieping heeft een royale overloop met eveneens airconditioning, een wasruimte met wasmachine- en drogeraansluiting, en de cv-opstelling (2021). Aan de voorzijde ligt een derde ruime slaapkamer. Via een luik op de overloop is de vliering bereikbaar voor extra bergruimte.
Kenmerken:
• woonoppervlakte ca. 108 m²;
• bouwjaar 1905;
• smaakvol en volledig gerenoveerd: badkamer en keuken 2021, 1e verdieping 2024;
• 3 slaapkamers;
• aparte waskamer (eventueel te realiseren vierde slaapkamer);
• airconditioning (2023) in hoofdslaapkamer en op tweede verdieping;
• buitenschilderwerk 2024;
• energielabel C;
• kindvriendelijke straat met gezellige sfeer;
• toplocatie nabij de Gijsbrecht van Amstelstraat, de Hoorneboegse Hei en het Corversbos.
Kortom, een tophuis op een toplocatie! Ervaar zelf de sfeer en het comfort van deze instapklare woning en ontdek hoe wonen in Hilversum-Zuid rust, ruimte en levendigheid perfect combineert. Interesse? Gewoon even bellen naar ons kantoor.
+ Meer omschrijving
- Minder omschrijving
Locatie:
De ligging is ideaal: rustig en in een straat met veel groen, maar toch vlak bij de levendigheid. Om de hoek ligt de populaire Gijsbrecht van Amstelstraat, met haar boetieks, delicatessenzaken, koffiebars en restaurants. Tegelijkertijd liggen heide en bos op loop- en fietsafstand, perfect voor ontspanning in de natuur. Scholen, sportvoorzieningen en openbaar vervoer bevinden zich in de directe omgeving. Het centrum van Hilversum en het station zijn binnen enkele minuten per fiets bereikbaar, en de uitvalswegen richting Amsterdam en Utrecht liggen ook op korte afstand.
Indeling:
Via de voordeur stap je binnen in een hal die toegang geeft tot de lichte en sfeervolle woon- en eetkamer. De halfopen keuken is modern en smaakvol afgewerkt, voorzien van luxe inbouwapparatuur en biedt volop bergruimte. Vanuit de keuken zijn zowel de kelder als het moderne toilet met wastafel bereikbaar. De openslaande deuren leiden naar de onderhoudsvriendelijke en zonnige achtertuin, met ruimte voor een eettafel en loungehoek. Achterin de tuin met een achterom staat een praktische schuur voor fietsen en tuingereedschap.
Op de eerste verdieping bevinden zich twee slaapkamers. De ruime hoofdslaapkamer aan de achterzijde beschikt over airconditioning (2023) en een inbouwkast over de volle breedte. De moderne badkamer is stijlvol uitgevoerd en voorzien van een inloopdouche, wastafelmeubel en tweede toilet. De tweede verdieping heeft een royale overloop met eveneens airconditioning, een wasruimte met wasmachine- en drogeraansluiting, en de cv-opstelling (2021). Aan de voorzijde ligt een derde ruime slaapkamer. Via een luik op de overloop is de vliering bereikbaar voor extra bergruimte.
Kenmerken:
• woonoppervlakte ca. 108 m²;
• bouwjaar 1905;
• smaakvol en volledig gerenoveerd: badkamer en keuken 2021, 1e verdieping 2024;
• 3 slaapkamers;
• aparte waskamer (eventueel te realiseren vierde slaapkamer);
• airconditioning (2023) in hoofdslaapkamer en op tweede verdieping;
• buitenschilderwerk 2024;
• energielabel C;
• kindvriendelijke straat met gezellige sfeer;
• toplocatie nabij de Gijsbrecht van Amstelstraat, de Hoorneboegse Hei en het Corversbos.
Kortom, een tophuis op een toplocatie! Ervaar zelf de sfeer en het comfort van deze instapklare woning en ontdek hoe wonen in Hilversum-Zuid rust, ruimte en levendigheid perfect combineert. Interesse? Gewoon even bellen naar ons kantoor.
Kenmerken
| Bouwjaar | 1905 |
|---|---|
| Bouwvorm | bestaande bouw |
| Woonoppervlakte | 108 |
| Aantal kamers | 5 |
Overdracht
| Status | Verkocht onder voorbehoud |
|---|---|
| Prijs | € 575.000 Kosten koper |
| Aanvaarding | in overleg |
Bouw vorm
| Bouwjaar | 1905 |
|---|---|
| Bouwvorm | bestaande bouw |
Indeling
| Woonoppervlakte | 108 |
|---|---|
| Inhoud | 360 |
| Aantal kamers | 5 |
| Slaapkamers | 3 |
| Etages | 4 |
Tuin
| Tuin | Achtertuin, Voortuin |
|---|---|
| Hoofdtuin oppervlakte | 41 |
| Hoofdtuin positie | Oost |
| Aantal bergingen | 1 |
Parking
| Garage soort | Geen garage |
|---|
In de buurt
Wij kennen werkelijk iedere straat en elke hoek van Hilversum. Benieuwd wat een buurt je te bieden heeft? We kunnen je er alles over vertellen!








