Terug naar resultatenGeuzenweg 89
Geuzenweg 89
1221 BM HILVERSUM
€ 495.000 k.k.
Omschrijving
Charmante en instapklare woning midden in Hilversum.
Welkom bij deze karaktervolle woning aan de Geuzenweg 89, gelegen in een rustige straat op loopafstand van het centrum van Hilversum. Deze sfeervolle woning, met parkeergelegenheid op eigen terrein, combineert authentieke details met modern wooncomfort, verdeeld over twee woonlagen én een vrijstaand bijgebouw.
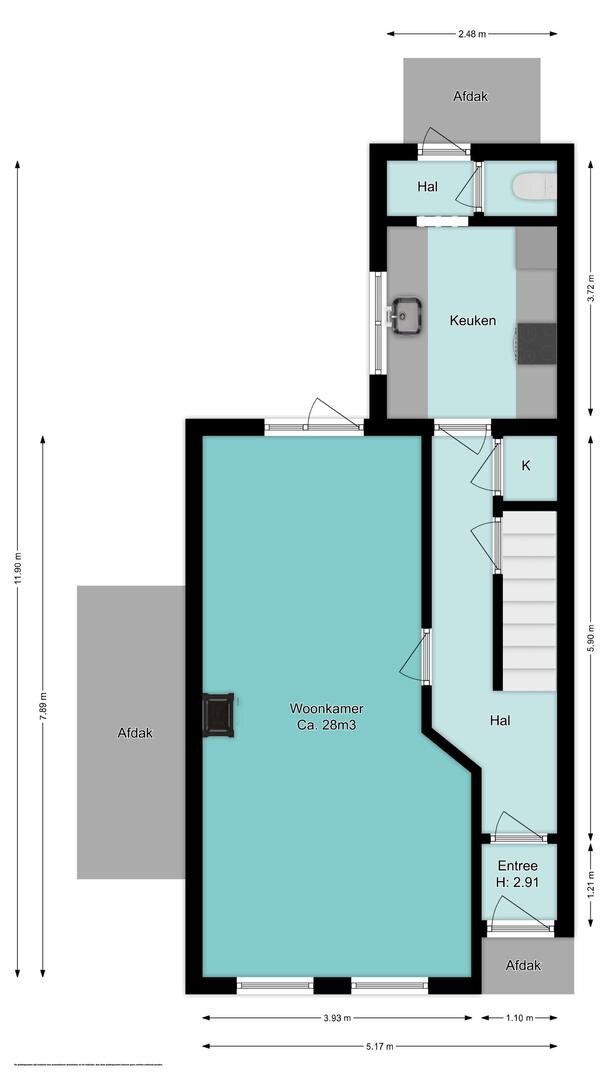
Indeling
Begane grond
Bij binnenkomst valt direct de warme sfeer op dankzij de fraaie houten vloeren, hoge plafonds, de houtkachel en de gezellige uitstraling. De ruime woonkamer beschikt over grote ramen aan de voorzijde, waardoor veel natuurlijk licht binnenvalt en deur naar de heerlijke achtertuin. Aan de achterzijde bevindt zich een moderne keuken met diverse inbouwapparatuur, halletje met toegang tot het toilet en tot de tuin.
Eerste verdieping
Via de vaste trap kom je op de eerste verdieping, waar zich twee royale slaapkamers bevinden. De master bedroom aan de voorzijde is ruim en licht. De tweede kamer is ideaal als kinder- of werkkamer.
De badkamer beschikt over een inloopdouche, dubbele wastafel en tweede toilet. De slaapkamers zijn voorzien van een nette laminaatvloer. De bergvliering heeft een nokhoogte van 1,71m.
Tuin en buitenruimte
De zonnige achtertuin is fraai aangelegd, voorzien van een achterom. Achterin de tuin staat een vrijstaand bijgebouw dat in gebruik is als werkruimte en vele gebruiksmogelijkheden biedt.
Kortom een sfeervol woonhuis te midden van alle voorzieningen!
+ Meer omschrijving
- Minder omschrijving
Welkom bij deze karaktervolle woning aan de Geuzenweg 89, gelegen in een rustige straat op loopafstand van het centrum van Hilversum. Deze sfeervolle woning, met parkeergelegenheid op eigen terrein, combineert authentieke details met modern wooncomfort, verdeeld over twee woonlagen én een vrijstaand bijgebouw.
Indeling
Begane grond
Bij binnenkomst valt direct de warme sfeer op dankzij de fraaie houten vloeren, hoge plafonds, de houtkachel en de gezellige uitstraling. De ruime woonkamer beschikt over grote ramen aan de voorzijde, waardoor veel natuurlijk licht binnenvalt en deur naar de heerlijke achtertuin. Aan de achterzijde bevindt zich een moderne keuken met diverse inbouwapparatuur, halletje met toegang tot het toilet en tot de tuin.
Eerste verdieping
Via de vaste trap kom je op de eerste verdieping, waar zich twee royale slaapkamers bevinden. De master bedroom aan de voorzijde is ruim en licht. De tweede kamer is ideaal als kinder- of werkkamer.
De badkamer beschikt over een inloopdouche, dubbele wastafel en tweede toilet. De slaapkamers zijn voorzien van een nette laminaatvloer. De bergvliering heeft een nokhoogte van 1,71m.
Tuin en buitenruimte
De zonnige achtertuin is fraai aangelegd, voorzien van een achterom. Achterin de tuin staat een vrijstaand bijgebouw dat in gebruik is als werkruimte en vele gebruiksmogelijkheden biedt.
Kortom een sfeervol woonhuis te midden van alle voorzieningen!
Kenmerken
| Bouwjaar | 1905 |
|---|---|
| Bouwvorm | bestaande bouw |
| Woonoppervlakte | 92 |
| Aantal kamers | 3 |
Overdracht
| Status | Verkocht |
|---|---|
| Prijs | € 495.000 Kosten koper |
| Aanvaarding | in overleg |
Bouw vorm
| Bouwjaar | 1905 |
|---|---|
| Bouwvorm | bestaande bouw |
Indeling
| Woonoppervlakte | 92 |
|---|---|
| Inhoud | 390 |
| Aantal kamers | 3 |
| Slaapkamers | 2 |
| Etages | 3 |
Tuin
| Tuin | Achtertuin, Voortuin, Zijtuin |
|---|---|
| Hoofdtuin positie | Noordwest |
| Aantal bergingen | 1 |
Parking
| Garage soort | Geen garage |
|---|
In de buurt
Wij kennen werkelijk iedere straat en elke hoek van Hilversum. Benieuwd wat een buurt je te bieden heeft? We kunnen je er alles over vertellen!






