Terug naar resultatenNachtegaalweg 28
Nachtegaalweg 28
3762 TK SOEST
€ 625.000 k.k.
Omschrijving
Gelegen op een gewilde locatie bieden wij aan deze karakteristieke en uitgebouwde 2-onder-1-kapwoning uit 1939 met garage en oprit. De ligging is in alle opzichten gunstig, in een rustige woonwijk met jaren dertig woningen, vrij uitzicht aan de voorzijde op een plantsoen met kinderspeelplaats en centraal t.o.v. basisscholen, winkels en openbaar vervoer. Het Baarnse bos is op slechts 5 minuten fietsafstand! De woning dient gerenoveerd te worden, wel is de woning op meerdere zaken verbeterd in de afgelopen jaren zoals trippel glas in de charmante erker, vernieuwde openslaande deuren in de uitbouw, vernieuwde dakgoten en het pannendak is vernieuwd(!). De muur naar de keuken is door te breken om een royale leef- en- eetkeuken te creëren.
Indeling:
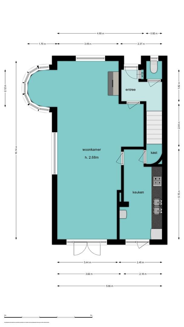
Entree, hal, meterkast, garderobe, toilet, trapopgang, toegangsdeur naar woonkamer v.v. betonvloer met plavuizen, open haard, fraaie erker en openslaande deuren naar de achtertuin, keuken met vaste kast, diverse inbouwapparatuur, achterdeur naar de besloten tuin op de avondzon(!) en toegang tot de sta-hoge kelder.
1e verdieping:
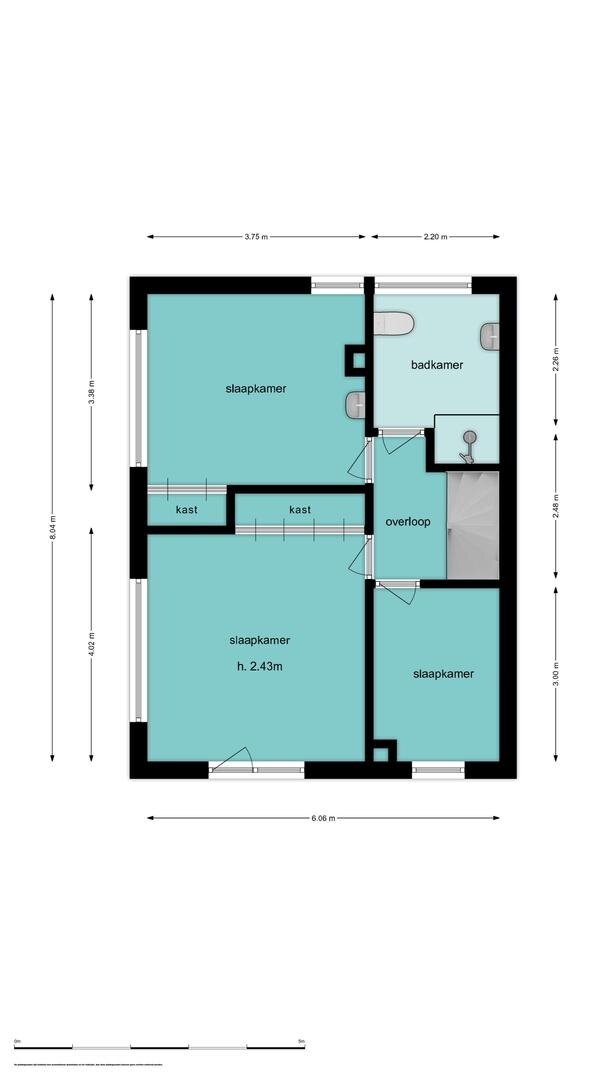
Trapopgang, overloop, 1e ruime slaapkamer v.v. vaste kastenwand, airconditioning en moderne kunststof pui naar balkon, 2e ruime slaapkamer v.v. kastruimte en wastafel, 3eslaapkamer, badkamer voorzien van 2e toilet, ruime douche en wastafelmeubel.
2e verdieping:
Via vaste trap te bereiken, open zolderruimte met originele dakkapelen, nader in te richten en te verdelen.
Tuin en garage:
Achter de woning bevindt zich de oprit met carport naar de garage, de oprit biedt ruimte voor het parkeren van twee auto’s en eventueel nog een derde in de goed bemeten garage. De garage is trevens voorzien van bergruimte in de nok en elektriciteit.
Bijzonderheden:
* Karakteristieke 2-onder-1-kapwoning met oprit en garage;
* Voorzien van dubbel glas en zelfs een deel trippel glas;
* Pannendak vernieuwd;
* Vrij uitzicht aan voorzijde op een plantsoen;
* Op loopafstand van basisschool;
* OV nabij, winkels en het Baarnse bos op 5-10 minuten fietsafstand.
+ Meer omschrijving
- Minder omschrijving
Indeling:
Entree, hal, meterkast, garderobe, toilet, trapopgang, toegangsdeur naar woonkamer v.v. betonvloer met plavuizen, open haard, fraaie erker en openslaande deuren naar de achtertuin, keuken met vaste kast, diverse inbouwapparatuur, achterdeur naar de besloten tuin op de avondzon(!) en toegang tot de sta-hoge kelder.
1e verdieping:
Trapopgang, overloop, 1e ruime slaapkamer v.v. vaste kastenwand, airconditioning en moderne kunststof pui naar balkon, 2e ruime slaapkamer v.v. kastruimte en wastafel, 3eslaapkamer, badkamer voorzien van 2e toilet, ruime douche en wastafelmeubel.
2e verdieping:
Via vaste trap te bereiken, open zolderruimte met originele dakkapelen, nader in te richten en te verdelen.
Tuin en garage:
Achter de woning bevindt zich de oprit met carport naar de garage, de oprit biedt ruimte voor het parkeren van twee auto’s en eventueel nog een derde in de goed bemeten garage. De garage is trevens voorzien van bergruimte in de nok en elektriciteit.
Bijzonderheden:
* Karakteristieke 2-onder-1-kapwoning met oprit en garage;
* Voorzien van dubbel glas en zelfs een deel trippel glas;
* Pannendak vernieuwd;
* Vrij uitzicht aan voorzijde op een plantsoen;
* Op loopafstand van basisschool;
* OV nabij, winkels en het Baarnse bos op 5-10 minuten fietsafstand.
Kenmerken
| Bouwjaar | 1939 |
|---|---|
| Bouwvorm | bestaande bouw |
| Woonoppervlakte | 128 |
| Aantal kamers | 5 |
Overdracht
| Status | Verkocht |
|---|---|
| Prijs | € 625.000 Kosten koper |
| Aanvaarding | in overleg |
Bouw vorm
| Bouwjaar | 1939 |
|---|---|
| Bouwvorm | bestaande bouw |
Indeling
| Woonoppervlakte | 128 |
|---|---|
| Inhoud | 476 |
| Aantal kamers | 5 |
| Slaapkamers | 4 |
| Etages | 4 |
Tuin
| Tuin | Tuin rondom |
|---|---|
| Hoofdtuin | 230 |
Parking
| Garage soort | Vrijstaand steen, Carport |
|---|
In de buurt
Wij kennen werkelijk iedere straat en elke hoek van Hilversum. Benieuwd wat een buurt je te bieden heeft? We kunnen je er alles over vertellen!






