Terug naar resultatenSnelliuslaan 37
Snelliuslaan 37
1222 TB HILVERSUM
€ 1.150.000 k.k.
Omschrijving
Karakter, ruimte en een toplocatie in Hilversum!
Op zoek naar een royale gezinswoning met karakter én comfort? Dan is deze charmante hoekwoning aan de Snelliuslaan 37 precies wat u zoekt. Met een woonoppervlakte van maar liefst 189 m², een perceel van 380 m² en een zonnige tuin op het westen, biedt dit huis alles wat u nodig heeft om heerlijk te wonen.
Bijzonderheden op een rij:
• vrij uitzicht over een groen plantsoen aan de voorzijde;
• heerlijke, fraai aangelegde zonnige tuin (West);
• eigen oprit met plaats voor meerdere auto’s;
• stenen berging (13 m²) voor extra opslag;
• op loopafstand van zowel het Centraal Station als het gezellige centrum van Hilversum;
• perfecte treinverbinding met Amsterdam en Utrecht.
Indeling
Begane grond: via de entree met vestibule met origineel tegelwerk komt u in de hal met trapopgang, toilet en toegang tot de provisiekelder (14 m²). De sfeervolle woonkamer en suite met zijkamer is voorzien van een parketvloer, open haard, glas-in-lood schuifdeuren en openslaande deuren naar de tuin. Aan de achterzijde vindt u de in 2008 uitgebouwde moderne eetkeuken met schiereiland, vloerverwarming, hoogwaardige inbouwapparatuur en eveneens toegang tot de tuin.
Eerste verdieping: ruime overloop met toilet en bergkast, drie goed bemeten slaapkamers – waaronder één met royale inloopkast en één met toegang tot het balkon. De moderne badkamer is compleet met ligbad, inloopdouche en dubbele wastafel. De gehele eerste verdieping is voorzien van een laminaatvloer.
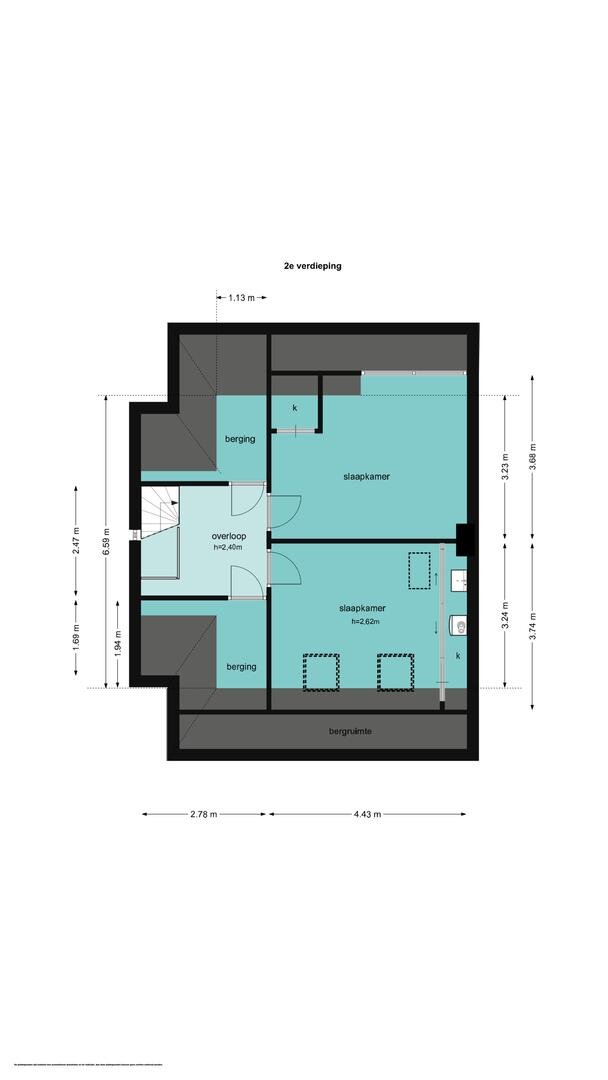
Tweede verdieping: overloop, twee bergingen, twee slaapkamers waarvan één met dakkapel en één met Velux-ramen, kast met cv-opstelling en wastafel en toegang tot de bergvliering.
Waarom u hier wilt wonen
Deze woning combineert het beste van twee werelden: de charme van een karakteristiek huis met glas-in-lood details en originele elementen, én het comfort van modern woonplezier. De royale ruimtes, zonnige tuin en uitstekende ligging maken dit een ideaal familiehuis. Met voorzieningen, scholen, winkels en uitvalswegen binnen handbereik én het station op loopafstand, woont u hier bijzonder centraal en toch rustig.
We nodigen u van harte uit voor een bezichtiging!
+ Meer omschrijving
- Minder omschrijving
Op zoek naar een royale gezinswoning met karakter én comfort? Dan is deze charmante hoekwoning aan de Snelliuslaan 37 precies wat u zoekt. Met een woonoppervlakte van maar liefst 189 m², een perceel van 380 m² en een zonnige tuin op het westen, biedt dit huis alles wat u nodig heeft om heerlijk te wonen.
Bijzonderheden op een rij:
• vrij uitzicht over een groen plantsoen aan de voorzijde;
• heerlijke, fraai aangelegde zonnige tuin (West);
• eigen oprit met plaats voor meerdere auto’s;
• stenen berging (13 m²) voor extra opslag;
• op loopafstand van zowel het Centraal Station als het gezellige centrum van Hilversum;
• perfecte treinverbinding met Amsterdam en Utrecht.
Indeling
Begane grond: via de entree met vestibule met origineel tegelwerk komt u in de hal met trapopgang, toilet en toegang tot de provisiekelder (14 m²). De sfeervolle woonkamer en suite met zijkamer is voorzien van een parketvloer, open haard, glas-in-lood schuifdeuren en openslaande deuren naar de tuin. Aan de achterzijde vindt u de in 2008 uitgebouwde moderne eetkeuken met schiereiland, vloerverwarming, hoogwaardige inbouwapparatuur en eveneens toegang tot de tuin.
Eerste verdieping: ruime overloop met toilet en bergkast, drie goed bemeten slaapkamers – waaronder één met royale inloopkast en één met toegang tot het balkon. De moderne badkamer is compleet met ligbad, inloopdouche en dubbele wastafel. De gehele eerste verdieping is voorzien van een laminaatvloer.
Tweede verdieping: overloop, twee bergingen, twee slaapkamers waarvan één met dakkapel en één met Velux-ramen, kast met cv-opstelling en wastafel en toegang tot de bergvliering.
Waarom u hier wilt wonen
Deze woning combineert het beste van twee werelden: de charme van een karakteristiek huis met glas-in-lood details en originele elementen, én het comfort van modern woonplezier. De royale ruimtes, zonnige tuin en uitstekende ligging maken dit een ideaal familiehuis. Met voorzieningen, scholen, winkels en uitvalswegen binnen handbereik én het station op loopafstand, woont u hier bijzonder centraal en toch rustig.
We nodigen u van harte uit voor een bezichtiging!
Kenmerken
| Bouwjaar | 1932 |
|---|---|
| Bouwvorm | bestaande bouw |
| Woonoppervlakte | 189 |
| Aantal kamers | 6 |
Overdracht
| Status | Verkocht |
|---|---|
| Prijs | € 1.150.000 Kosten koper |
| Aanvaarding | in overleg |
Bouw vorm
| Bouwjaar | 1932 |
|---|---|
| Bouwvorm | bestaande bouw |
Indeling
| Woonoppervlakte | 189 |
|---|---|
| Inhoud | 706 |
| Aantal kamers | 6 |
| Slaapkamers | 5 |
| Etages | 5 |
Tuin
| Tuin | Achtertuin, Voortuin, Zijtuin |
|---|---|
| Hoofdtuin oppervlakte | 143 |
| Hoofdtuin positie | West |
| Aantal bergingen | 1 |
Parking
| Garage soort | Geen garage |
|---|
In de buurt
Wij kennen werkelijk iedere straat en elke hoek van Hilversum. Benieuwd wat een buurt je te bieden heeft? We kunnen je er alles over vertellen!








