Terug naar resultatenWillibrorduslaan 152
Willibrorduslaan 152
1216 PE HILVERSUM
€ 535.000 k.k.
Omschrijving
Wonen met potentie in een rustige, groene wijk – Willibrorduslaan 152, Hilversum
Een huis met ruimte, licht en mogelijkheden! In de geliefde, kindvriendelijke wijk Kerkelanden in Hilversum bieden wij deze drive-in woning aan. Een woning die volop potentie heeft om getransformeerd te worden tot een eigentijdse, comfortabele gezinswoning.
De rustige straat biedt volop parkeergelegenheid en de groene omgeving maakt het hier prettig wonen voor jong en oud.
Indeling:
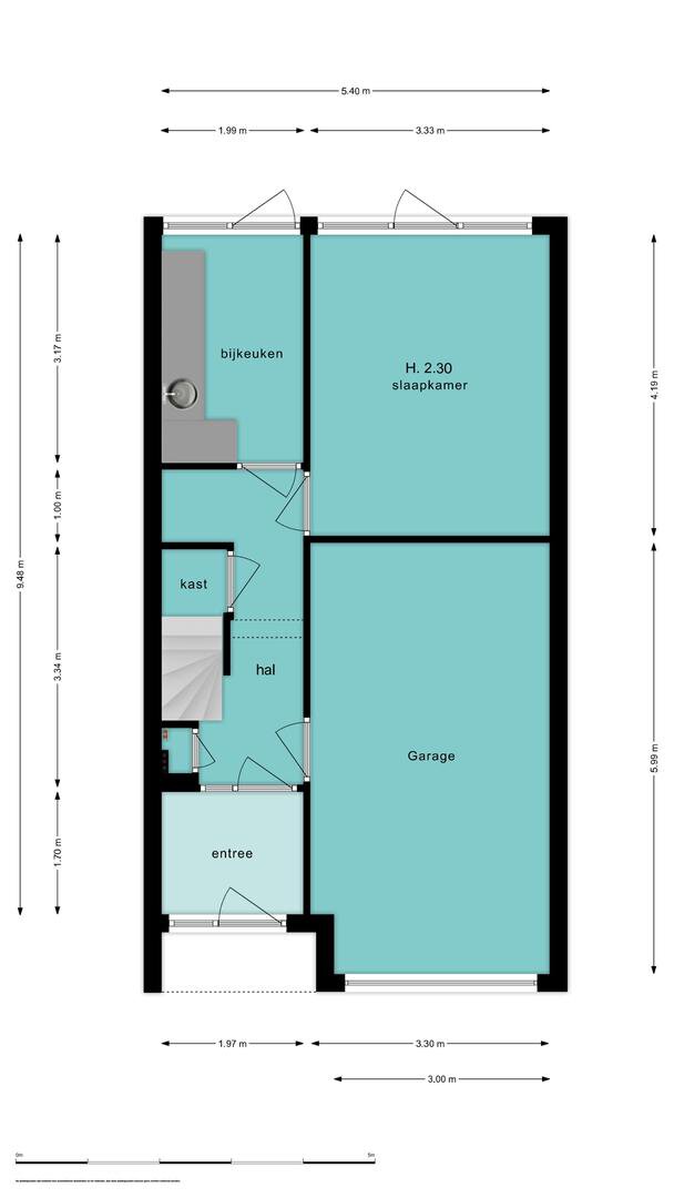
Begane grond
Via de entree en vestibule kom je in de hal met trapopgang, meterkast, bergkast en toegang tot de inpandige garage. De tuinkamer aan de achterzijde biedt toegang tot de zonnige tuin met houten berging. Ideaal voor een werkplek, hobbyruimte of speelkamer! Daarnaast is er een bijkeuken met aansluitingen voor wasmachine en droger, eveneens met toegang tot de tuin.
Eerste verdieping
Een royale, lichte woonkamer met een speelse split-level indeling en eikenhouten vloer. Aan zowel de voor- als achterzijde vind je een balkon, wat zorgt voor een prettige lichtinval en buitenruimte. De open keuken is eenvoudig maar functioneel en voorzien van inbouwapparatuur.
Tweede verdieping
Op deze verdieping bevinden zich drie slaapkamers van verschillende afmetingen, waarvan één met een ruime inloopkast. De badkamer beschikt over een inloopdouche, toilet en wastafel. Ook is er een aparte stookruimte.
Pluspunten:
- rustige, kindvriendelijke buurt;
- drive-in woning met garage;
- tuinkamer en zonnige tuin;
- veel lichtinval door grote raampartijen;
- mogelijkheden tot modernisering naar eigen smaak;
- nabij winkels, scholen, natuur en uitvalswegen.
Neem contact met ons op voor een bezichtiging!
+ Meer omschrijving
- Minder omschrijving
Een huis met ruimte, licht en mogelijkheden! In de geliefde, kindvriendelijke wijk Kerkelanden in Hilversum bieden wij deze drive-in woning aan. Een woning die volop potentie heeft om getransformeerd te worden tot een eigentijdse, comfortabele gezinswoning.
De rustige straat biedt volop parkeergelegenheid en de groene omgeving maakt het hier prettig wonen voor jong en oud.
Indeling:
Begane grond
Via de entree en vestibule kom je in de hal met trapopgang, meterkast, bergkast en toegang tot de inpandige garage. De tuinkamer aan de achterzijde biedt toegang tot de zonnige tuin met houten berging. Ideaal voor een werkplek, hobbyruimte of speelkamer! Daarnaast is er een bijkeuken met aansluitingen voor wasmachine en droger, eveneens met toegang tot de tuin.
Eerste verdieping
Een royale, lichte woonkamer met een speelse split-level indeling en eikenhouten vloer. Aan zowel de voor- als achterzijde vind je een balkon, wat zorgt voor een prettige lichtinval en buitenruimte. De open keuken is eenvoudig maar functioneel en voorzien van inbouwapparatuur.
Tweede verdieping
Op deze verdieping bevinden zich drie slaapkamers van verschillende afmetingen, waarvan één met een ruime inloopkast. De badkamer beschikt over een inloopdouche, toilet en wastafel. Ook is er een aparte stookruimte.
Pluspunten:
- rustige, kindvriendelijke buurt;
- drive-in woning met garage;
- tuinkamer en zonnige tuin;
- veel lichtinval door grote raampartijen;
- mogelijkheden tot modernisering naar eigen smaak;
- nabij winkels, scholen, natuur en uitvalswegen.
Neem contact met ons op voor een bezichtiging!
Kenmerken
| Bouwjaar | 1974 |
|---|---|
| Bouwvorm | bestaande bouw |
| Woonoppervlakte | 143 |
| Aantal kamers | 5 |
Overdracht
| Status | Verkocht |
|---|---|
| Prijs | € 535.000 Kosten koper |
| Aanvaarding | in overleg |
Bouw vorm
| Bouwjaar | 1974 |
|---|---|
| Bouwvorm | bestaande bouw |
Indeling
| Woonoppervlakte | 143 |
|---|---|
| Inhoud | 543 |
| Aantal kamers | 5 |
| Slaapkamers | 4 |
| Etages | 3 |
Tuin
| Tuin | Achtertuin |
|---|---|
| Hoofdtuin oppervlakte | 72 |
| Hoofdtuin positie | Zuidoost |
| Aantal bergingen | 1 |
Parking
| Garage soort | Inpandig |
|---|
In de buurt
Wij kennen werkelijk iedere straat en elke hoek van Hilversum. Benieuwd wat een buurt je te bieden heeft? We kunnen je er alles over vertellen!





