Terug naar resultatenZuidermeent 7
Zuidermeent 7
1218 GW HILVERSUM
€ 385.000 k.k.
Omschrijving
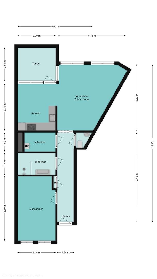
Op de begane grond van een modern appartementengebouw ligt dit 2-kamer-appartement van 71 m² met terras, een eigen parkeerplaats op afgesloten parkeerterrein en berging op de begane grond.
Het betreft een verzorgd appartementencomplex uit 2010, voorzien van liftinstallatie op een zeer rustige locatie zonder overburen.
Locatie
De woning is gelegen in een rustige, groene wijk aan de rand van Hilversum en Bussum. Deze buurt – de Meent – staat bekend om de mooie groene en rustige omgeving met de stad in de directe nabijheid gelegen, goede parkeermogelijkheden en de aanwezigheid van diverse voorzieningen. Zo zijn winkelcentrum “De Meenterf” met een supermarkt op 2 minuten loopafstand, sportverenigingen en een gezondheidscentrum op korte afstand bereikbaar. Voor natuurliefhebbers liggen de Bussumerheide en het Naardermeer in de directe nabijheid.
Indeling
Entree, hal met modern toilet met wasbakje, ruime inpandige berging met aansluiting voor de wasmachine, droger en c.v.-installatie (2025). Een ruime en lichte woonkamer met laminaatvloer en toegang tot het heerlijke terras. De moderne open keuken is voorzien van een afwasmachine, koelkast, vriezer en combi-oven. Er is voldoende ruimte voor een eettafel in deze keuken. Moderne badkamer met een inloopdouche, dubbele wastafelmeubel en handdoeken radiator. De slaapkamer is voorzien van een ruime kledingkast.
Bijzonderheden:
-volledige geïsoleerde bouw (2010) op rustige locatie;
-woonoppervlak: 71 m²;
-eigen parkeerplaats op afgesloten binnen terrein met elektrisch bedienbaar hek;
-gezonde en actieve VvE;
-complex voorzien van liftinstallatie;
-servicekosten € 119,- per maand;
-energielabel A.
Nieuwsgierig geworden? Bel gerust. Wij plannen graag een bezichtiging met je in!
+ Meer omschrijving
- Minder omschrijving
Het betreft een verzorgd appartementencomplex uit 2010, voorzien van liftinstallatie op een zeer rustige locatie zonder overburen.
Locatie
De woning is gelegen in een rustige, groene wijk aan de rand van Hilversum en Bussum. Deze buurt – de Meent – staat bekend om de mooie groene en rustige omgeving met de stad in de directe nabijheid gelegen, goede parkeermogelijkheden en de aanwezigheid van diverse voorzieningen. Zo zijn winkelcentrum “De Meenterf” met een supermarkt op 2 minuten loopafstand, sportverenigingen en een gezondheidscentrum op korte afstand bereikbaar. Voor natuurliefhebbers liggen de Bussumerheide en het Naardermeer in de directe nabijheid.
Indeling
Entree, hal met modern toilet met wasbakje, ruime inpandige berging met aansluiting voor de wasmachine, droger en c.v.-installatie (2025). Een ruime en lichte woonkamer met laminaatvloer en toegang tot het heerlijke terras. De moderne open keuken is voorzien van een afwasmachine, koelkast, vriezer en combi-oven. Er is voldoende ruimte voor een eettafel in deze keuken. Moderne badkamer met een inloopdouche, dubbele wastafelmeubel en handdoeken radiator. De slaapkamer is voorzien van een ruime kledingkast.
Bijzonderheden:
-volledige geïsoleerde bouw (2010) op rustige locatie;
-woonoppervlak: 71 m²;
-eigen parkeerplaats op afgesloten binnen terrein met elektrisch bedienbaar hek;
-gezonde en actieve VvE;
-complex voorzien van liftinstallatie;
-servicekosten € 119,- per maand;
-energielabel A.
Nieuwsgierig geworden? Bel gerust. Wij plannen graag een bezichtiging met je in!
Kenmerken
| Bouwjaar | 2010 |
|---|---|
| Bouwvorm | bestaande bouw |
| Woonoppervlakte | 71 |
| Aantal kamers | 2 |
Overdracht
| Status | Verkocht |
|---|---|
| Prijs | € 385.000 Kosten koper |
| Aanvaarding | in overleg |
Bouw vorm
| Bouwjaar | 2010 |
|---|---|
| Bouwvorm | bestaande bouw |
Indeling
| Woonoppervlakte | 71 |
|---|---|
| Inhoud | 233 |
| Aantal kamers | 2 |
| Slaapkamers | 1 |
| Etages | 1 |
Tuin
| Tuin | Zonneterras |
|---|---|
| Hoofdtuin oppervlakte | 8 |
| Hoofdtuin positie | Zuidoost |
| Aantal bergingen | 1 |
Parking
| Garage soort | Geen garage |
|---|
In de buurt
Wij kennen werkelijk iedere straat en elke hoek van Hilversum. Benieuwd wat een buurt je te bieden heeft? We kunnen je er alles over vertellen!




