Terug naar resultaten3e Oosterstraat 58
3e Oosterstraat 58
1211 LN HILVERSUM
€ 395.000 k.k.
Omschrijving
Zeer verzorgd en verbouwd huis met 3 slaapkamers op de verdieping en een extra slaap- of werkkamer op de begane grond.
De woning ligt aan de rand van het centrum van Hilversum en op loopafstand van de gezellige winkelstraat Gijsbrecht van Amstelstraat, met in de nabije omgeving (internationale)scholen, kinderopvang, winkels en sportclubs, net als horeca en de prachtige Zuiderheide. Bewoners kunnen met vergunning in de straat parkeren. Het centraal station ligt op 5 fietsminuten afstand.
Parkeren kan voor de deur met een parkeervergunning.
Indeling: entree met hal, toilet alsmede een doucheruimte, meterkast en bergruimte met c.v.-installatie.
De moderne (woon)keuken is voorzien van diverse inbouwapparatuur (o.a. afwasmachine, combi oven/magnetron, inductiekookplaat) en een koel-/vriescombinatie.
Grenzend aan de keuken is een extra kamer welke kan worden gebruikt als eetkamer, slaapkamer of kantoorkamer.
De gehele begane grond is voorzien van een pvc vloer.
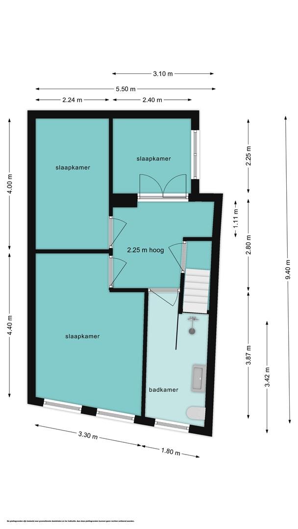
Verdieping: overloop, royale slaapkamer met airconditioning aan de voorzijde, 2e slaapkamer met lichtkoepel en een 3e kleinere slaapkamer bereikbaar via openslaande deuren vanaf de overloop.
De moderne badkamer is voorzien van een ruime inloopdouche, wastafel met meubel en toilet.
Deze niet alledaagse woning is zeker een bezichtiging waard!
Bijzonderheden:
- Voorzien van elektrische verwarmingselementen;
- C.v.-ketel (Remeha, 2022);
- Geheel voorzien van dubbele (HR)beglazing;
- De dakbedekking is vernieuwd in 2024;
- Notaris: Horst & Van de Graaff Notarissen;
- Woonoppervlakte 85 m².
+ Meer omschrijving
- Minder omschrijving
De woning ligt aan de rand van het centrum van Hilversum en op loopafstand van de gezellige winkelstraat Gijsbrecht van Amstelstraat, met in de nabije omgeving (internationale)scholen, kinderopvang, winkels en sportclubs, net als horeca en de prachtige Zuiderheide. Bewoners kunnen met vergunning in de straat parkeren. Het centraal station ligt op 5 fietsminuten afstand.
Parkeren kan voor de deur met een parkeervergunning.
Indeling: entree met hal, toilet alsmede een doucheruimte, meterkast en bergruimte met c.v.-installatie.
De moderne (woon)keuken is voorzien van diverse inbouwapparatuur (o.a. afwasmachine, combi oven/magnetron, inductiekookplaat) en een koel-/vriescombinatie.
Grenzend aan de keuken is een extra kamer welke kan worden gebruikt als eetkamer, slaapkamer of kantoorkamer.
De gehele begane grond is voorzien van een pvc vloer.
Verdieping: overloop, royale slaapkamer met airconditioning aan de voorzijde, 2e slaapkamer met lichtkoepel en een 3e kleinere slaapkamer bereikbaar via openslaande deuren vanaf de overloop.
De moderne badkamer is voorzien van een ruime inloopdouche, wastafel met meubel en toilet.
Deze niet alledaagse woning is zeker een bezichtiging waard!
Bijzonderheden:
- Voorzien van elektrische verwarmingselementen;
- C.v.-ketel (Remeha, 2022);
- Geheel voorzien van dubbele (HR)beglazing;
- De dakbedekking is vernieuwd in 2024;
- Notaris: Horst & Van de Graaff Notarissen;
- Woonoppervlakte 85 m².
Kenmerken
| Bouwjaar | 1905 |
|---|---|
| Bouwvorm | bestaande bouw |
| Woonoppervlakte | 85 |
| Aantal kamers | 4 |
Overdracht
| Status | Verkocht onder voorbehoud |
|---|---|
| Prijs | € 395.000 Kosten koper |
| Aanvaarding | in overleg |
Bouw vorm
| Bouwjaar | 1905 |
|---|---|
| Bouwvorm | bestaande bouw |
Indeling
| Woonoppervlakte | 85 |
|---|---|
| Inhoud | 256 |
| Aantal kamers | 4 |
| Slaapkamers | 4 |
| Etages | 2 |
Tuin
| Tuin | Geen tuin |
|---|
Parking
| Garage soort | Geen garage |
|---|
In de buurt
Wij kennen werkelijk iedere straat en elke hoek van Hilversum. Benieuwd wat een buurt je te bieden heeft? We kunnen je er alles over vertellen!




