Terug naar resultatenBeetslaan 13
Beetslaan 13
1215 AK HILVERSUM
€ 895.000 k.k.
Omschrijving
Een huis om op slag verliefd op te worden!
Op een prachtige groene locatie in Hilversum-Zuid, in het geliefde, gezellige en kindvriendelijke Schrijverskwartier, ligt deze verrassende uitgebouwde hoekwoning. Deze in 2020 verbouwde woning beschikt over een voortuin met fietsenberging, een ruime zonnige en besloten zij- en achtertuin op het zuiden én een vrijstaande stenen berging. Deze charmante woning uit 1924 bevindt zich in een rustige laan met eenrichtingsverkeer en parkeergelegenheid direct voor de deur. De ligging is ideaal: op korte afstand van stadspark De Oude Haven en het Corverbos. Daarnaast zijn scholen, het centrum en het levendige winkelgebied De Gijsbrecht eenvoudig per fiets of lopend bereikbaar.
Indeling
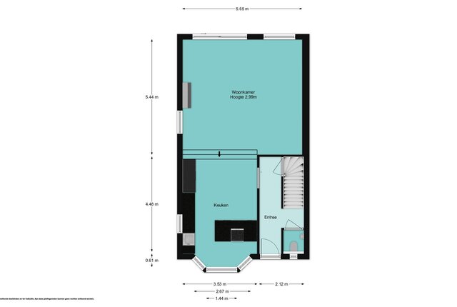
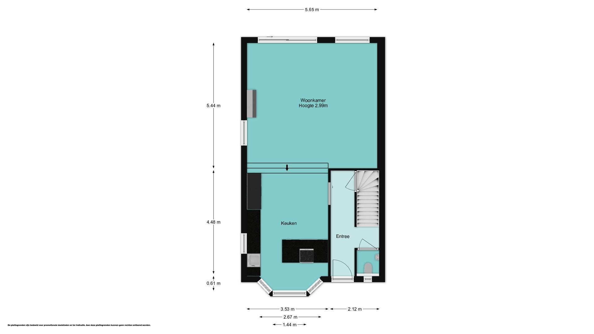
Begane grond: entree, hal, toegang tot de kelder, modern hangend toilet met fonteintje en een praktische kelder. De open keuken is voorzien van diverse inbouwapparatuur, waaronder een inductiekookplaat, afzuigkap, combi-oven/magnetron, tweede oven, koel-/vriescombi en vaatwasser. De tuingerichte, woonkamer is heerlijk licht en ruim, voorzien van een gasgestookte openhaard en een schuifpui naar het zonnige terras en de achtertuin. De woonkamer heeft een fraaie pvc vloer.
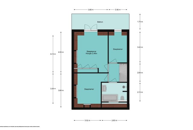
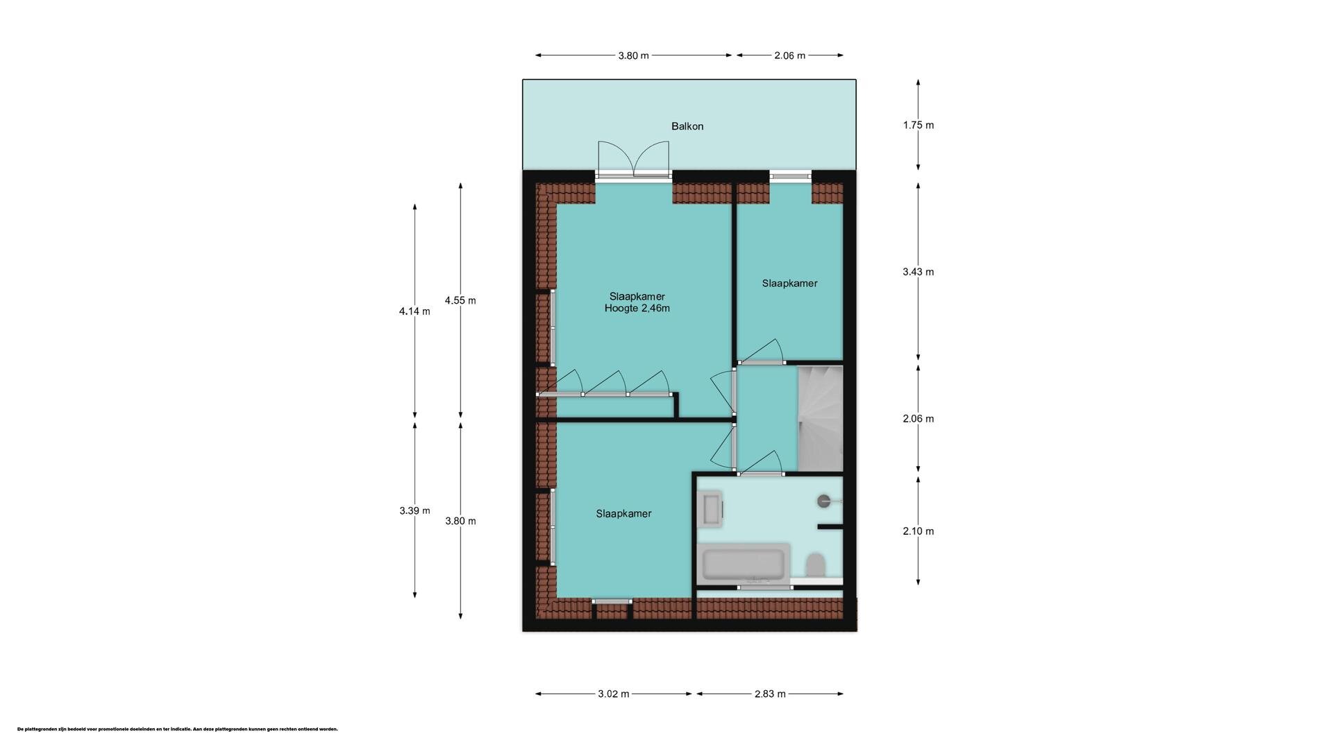
Eerste verdieping: overloop, drie slaapkamers van verschillende afmetingen. Eén slaapkamer heeft openslaande deuren naar een dakterras. De moderne badkamer (2022) beschikt over een ligbad, inloopdouche, hangend toilet, wastafelmeubel en vloerverwarming.
Tweede verdieping: via vaste trap bereikbare, volledig geïsoleerde zolderverdieping met dakkapel en Velux dakraam. Hier bevinden zich de wasmachine- en drogeraansluiting en extra bergruimte. De zolder biedt mogelijkheden voor een vierde slaapkamer.
Buitenruimte
De zonnige achtertuin ligt op het zuiden en beschikt over een achterom. De achtertuin ligt heel vrij en de overkapte buitenkeuken maakt het feest compleet.
Bijzonderheden:
• Bouwjaar 1924
• Perceeloppervlakte 286 m2
• Woonoppervlakte 119 m²
• Begane grond is voorzien van vloerverwarming (m.u.v. toilet)
• Energielabel D
• Zonnige achtertuin op het zuiden
• Moderne complete keuken uit 2020.
• Pannendak vernieuwd en geïsoleerd in 2025
• Vrijstaande stenen berging met elektra
• Gelegen nabij kinderspeelplaats
• Groene en rustige woonomgeving
• Volledig voorzien van dubbele beglazing en dakisolatie
• Goede bereikbaarheid van en richting Utrecht, Amersfoort en Amsterdam
Kortom: een sfeervol en comfortabel gezinshuis op een toplocatie in een groene, rustige en kinderrijke buurt.
+ Meer omschrijving
- Minder omschrijving
Op een prachtige groene locatie in Hilversum-Zuid, in het geliefde, gezellige en kindvriendelijke Schrijverskwartier, ligt deze verrassende uitgebouwde hoekwoning. Deze in 2020 verbouwde woning beschikt over een voortuin met fietsenberging, een ruime zonnige en besloten zij- en achtertuin op het zuiden én een vrijstaande stenen berging. Deze charmante woning uit 1924 bevindt zich in een rustige laan met eenrichtingsverkeer en parkeergelegenheid direct voor de deur. De ligging is ideaal: op korte afstand van stadspark De Oude Haven en het Corverbos. Daarnaast zijn scholen, het centrum en het levendige winkelgebied De Gijsbrecht eenvoudig per fiets of lopend bereikbaar.
Indeling
Begane grond: entree, hal, toegang tot de kelder, modern hangend toilet met fonteintje en een praktische kelder. De open keuken is voorzien van diverse inbouwapparatuur, waaronder een inductiekookplaat, afzuigkap, combi-oven/magnetron, tweede oven, koel-/vriescombi en vaatwasser. De tuingerichte, woonkamer is heerlijk licht en ruim, voorzien van een gasgestookte openhaard en een schuifpui naar het zonnige terras en de achtertuin. De woonkamer heeft een fraaie pvc vloer.
Eerste verdieping: overloop, drie slaapkamers van verschillende afmetingen. Eén slaapkamer heeft openslaande deuren naar een dakterras. De moderne badkamer (2022) beschikt over een ligbad, inloopdouche, hangend toilet, wastafelmeubel en vloerverwarming.
Tweede verdieping: via vaste trap bereikbare, volledig geïsoleerde zolderverdieping met dakkapel en Velux dakraam. Hier bevinden zich de wasmachine- en drogeraansluiting en extra bergruimte. De zolder biedt mogelijkheden voor een vierde slaapkamer.
Buitenruimte
De zonnige achtertuin ligt op het zuiden en beschikt over een achterom. De achtertuin ligt heel vrij en de overkapte buitenkeuken maakt het feest compleet.
Bijzonderheden:
• Bouwjaar 1924
• Perceeloppervlakte 286 m2
• Woonoppervlakte 119 m²
• Begane grond is voorzien van vloerverwarming (m.u.v. toilet)
• Energielabel D
• Zonnige achtertuin op het zuiden
• Moderne complete keuken uit 2020.
• Pannendak vernieuwd en geïsoleerd in 2025
• Vrijstaande stenen berging met elektra
• Gelegen nabij kinderspeelplaats
• Groene en rustige woonomgeving
• Volledig voorzien van dubbele beglazing en dakisolatie
• Goede bereikbaarheid van en richting Utrecht, Amersfoort en Amsterdam
Kortom: een sfeervol en comfortabel gezinshuis op een toplocatie in een groene, rustige en kinderrijke buurt.
Kenmerken
| Bouwjaar | 1924 |
|---|---|
| Bouwvorm | bestaande bouw |
| Woonoppervlakte | 119 |
| Aantal kamers | 5 |
Overdracht
| Status | Onder bod |
|---|---|
| Prijs | € 895.000 Kosten koper |
| Aanvaarding | in overleg |
Bouw vorm
| Bouwjaar | 1924 |
|---|---|
| Bouwvorm | bestaande bouw |
Indeling
| Woonoppervlakte | 119 |
|---|---|
| Inhoud | 468 |
| Aantal kamers | 5 |
| Slaapkamers | 3 |
| Etages | 4 |
Tuin
| Tuin | Tuin rondom |
|---|---|
| Aantal bergingen | 1 |
Parking
| Garage soort | Geen garage |
|---|
In de buurt
Wij kennen werkelijk iedere straat en elke hoek van Hilversum. Benieuwd wat een buurt je te bieden heeft? We kunnen je er alles over vertellen!



Plan een bezichtiging
voor: Beetslaan 13
Bel ons op 035 625 20 70 of WhatsApp via 0356252070 voor direct contact. Of laat jouw gegevens achter en wij nemen zo snel mogelijk contact met je op.




