Terug naar resultatenBegoniastraat 32
Begoniastraat 32
1214 CW HILVERSUM
€ 499.500 k.k.
Omschrijving
Sfeervolle en instapklare hoekwoning gelegen in de populaire Bloemenbuurt!
In de rustige en gewilde Bloemenbuurt ligt deze zeer goed onderhouden hoekwoning met een heerlijke lichtinval en een stijlvolle afwerking. De woning is tot in detail verzorgd en direct klaar om te betrekken. Deze karakteristieke gezinswoning is gelegen op loopafstand van de gezelligste straat van Hilversum Zuid “De Gijsbrecht”, 5 minuten fietsen van de Hoorneboegse Heide (natuur!), en 5 minuten fietsen naar het centrum van Hilversum met grote winkels, veel restaurantjes en NS intercity station naar Amsterdam. De locatie is ideaal te noemen!
Begane grond
Via de hal kom je in de lichte woonkamer met grote ramen, hoge plafonds en een nette houten vloer. De indeling biedt ruimte voor een comfortabele zithoek aan de voorzijde en een eethoek aan de tuinzijde. De moderne keuken is recent vernieuwd en voorzien van moderne inbouwapparatuur. Via de keuken bereikt u de bijkeuken met wasmachine-/droger aansluiting. De trap en toilet zijn bereikbaar via een tussenhal vanuit de woonkamer.
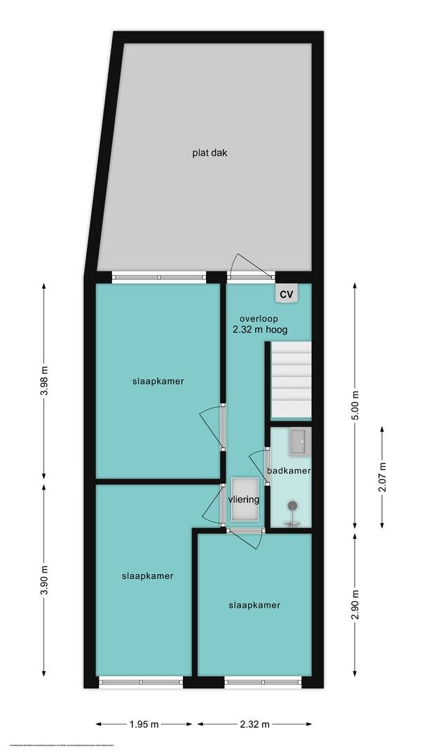
Eerste verdieping
Op de eerste verdieping bereik je de via de centrale overloop alle slaapkamers en het potentiële dakterras. Er is een hoofdslaapkamer met voldoende kastruimte en een 2e en 3e goed bemeten slaapkamer, de badkamer is keurig onderhouden en is voorzien van een inloopdouche en wastafel.
Vliering:
Moderne en geïsoleerde bergvliering met legio bergruimte en elektra.
Bijzonderheden:
- instapklare hoekwoning;
- moderne keuken en badkamer;
- eiken houten vloerdelen;
- vernieuwd pannendak inclusief vernieuwde isolatie en hoekpannen;
- volledig voorzien van dakisolatie en dubbele beglazing;
- C.V. ketel 2020 in eigendom;
- dakgoten en hemelwaterafvoeren vernieuwd in zink;
- rustige, centrale ligging in de Bloemenbuurt;
- de achtergelegen bergingen behoren niet bij de woning. Deze bergingen zijn bestemd voor opslag en niet voor bedrijfsmatige doeleinden.
Een zeer sfeervol gezinshuis op zeer centrale en kindvriendelijke locatie!
+ Meer omschrijving
- Minder omschrijving
In de rustige en gewilde Bloemenbuurt ligt deze zeer goed onderhouden hoekwoning met een heerlijke lichtinval en een stijlvolle afwerking. De woning is tot in detail verzorgd en direct klaar om te betrekken. Deze karakteristieke gezinswoning is gelegen op loopafstand van de gezelligste straat van Hilversum Zuid “De Gijsbrecht”, 5 minuten fietsen van de Hoorneboegse Heide (natuur!), en 5 minuten fietsen naar het centrum van Hilversum met grote winkels, veel restaurantjes en NS intercity station naar Amsterdam. De locatie is ideaal te noemen!
Begane grond
Via de hal kom je in de lichte woonkamer met grote ramen, hoge plafonds en een nette houten vloer. De indeling biedt ruimte voor een comfortabele zithoek aan de voorzijde en een eethoek aan de tuinzijde. De moderne keuken is recent vernieuwd en voorzien van moderne inbouwapparatuur. Via de keuken bereikt u de bijkeuken met wasmachine-/droger aansluiting. De trap en toilet zijn bereikbaar via een tussenhal vanuit de woonkamer.
Eerste verdieping
Op de eerste verdieping bereik je de via de centrale overloop alle slaapkamers en het potentiële dakterras. Er is een hoofdslaapkamer met voldoende kastruimte en een 2e en 3e goed bemeten slaapkamer, de badkamer is keurig onderhouden en is voorzien van een inloopdouche en wastafel.
Vliering:
Moderne en geïsoleerde bergvliering met legio bergruimte en elektra.
Bijzonderheden:
- instapklare hoekwoning;
- moderne keuken en badkamer;
- eiken houten vloerdelen;
- vernieuwd pannendak inclusief vernieuwde isolatie en hoekpannen;
- volledig voorzien van dakisolatie en dubbele beglazing;
- C.V. ketel 2020 in eigendom;
- dakgoten en hemelwaterafvoeren vernieuwd in zink;
- rustige, centrale ligging in de Bloemenbuurt;
- de achtergelegen bergingen behoren niet bij de woning. Deze bergingen zijn bestemd voor opslag en niet voor bedrijfsmatige doeleinden.
Een zeer sfeervol gezinshuis op zeer centrale en kindvriendelijke locatie!
Kenmerken
| Bouwjaar | 1906 |
|---|---|
| Bouwvorm | bestaande bouw |
| Woonoppervlakte | 90 |
| Aantal kamers | 4 |
Overdracht
| Status | Beschikbaar |
|---|---|
| Prijs | € 499.500 Kosten koper |
| Aanvaarding | in overleg |
Bouw vorm
| Bouwjaar | 1906 |
|---|---|
| Bouwvorm | bestaande bouw |
Indeling
| Woonoppervlakte | 90 |
|---|---|
| Inhoud | 355 |
| Aantal kamers | 4 |
| Slaapkamers | 3 |
| Etages | 3 |
Tuin
| Tuin | Achtertuin, Voortuin |
|---|---|
| Hoofdtuin oppervlakte | 20 |
| Hoofdtuin positie | Noordoost |
Parking
| Garage soort | Geen garage |
|---|
In de buurt
Wij kennen werkelijk iedere straat en elke hoek van Hilversum. Benieuwd wat een buurt je te bieden heeft? We kunnen je er alles over vertellen!



Plan een bezichtiging
voor: Begoniastraat 32
Bel ons op 035 625 20 70 of WhatsApp via 0356252070 voor direct contact. Of laat jouw gegevens achter en wij nemen zo snel mogelijk contact met je op.


