Terug naar resultatenComeniushof 70
Comeniushof 70
1216 HG HILVERSUM
€ 489.000 k.k.
Omschrijving
In een rustig hofje in de wijk Kerkelanden staat deze netjes onderhouden middenwoning met een voortuin en ruime achtertuin op het zuid-oosten. Er is voldoende parkeergelegenheid aan de voorzijde van de woning.
Locatie:
De woning is gelegen in de wijk Kerkelanden, een rustige en kindvriendelijke woonomgeving met een compleet voorzieningenniveau. Winkelcentrum Kerkelanden, scholen, sportvoorzieningen en openbaar vervoer bevinden zich op korte afstand. Daarnaast zijn de uitvalswegen richting Amsterdam en Utrecht goed bereikbaar. Een praktische ligging waar dagelijks gemak en bereikbaarheid samenkomen.
Indeling:
Entree, hal met garderobe en toilet, lichte woon-/eetkamer met trapkast, open keuken voorzien van diverse apparatuur waaronder afwasmachine, koelkast, vriezer en inductiekookplaat. De ruime achtertuin ligt op het Zuid-Oosten en heeft een vrijstaande stenen schuur en een achterom.
Eerste verdieping:
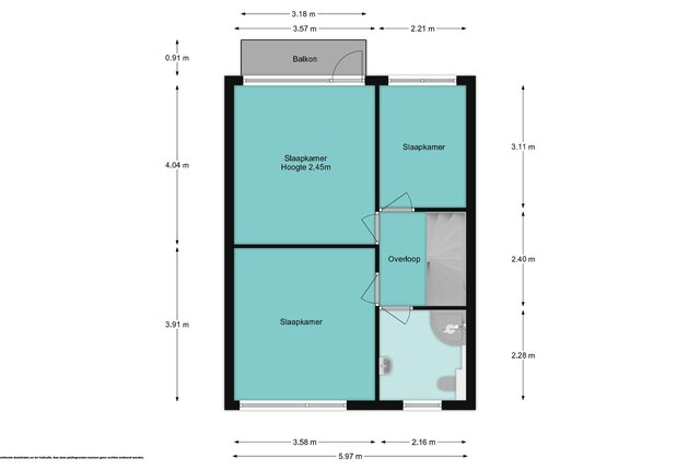
Overloop, 2 ruime slaapkamers (één met toegang tot het balkon), kleinere slaapkamer, badkamer met douche, toilet, wastafelmeubel en vloerverwarming.
Tweede verdieping:
Ruime overloop met bergruimte en aparte ruimte waar de wasmachine-/droger aansluitingen zijn en de c.v.-installatie is. Ruime slaapkamer met dakkapel en wastafel.
Kenmerken:
- woonoppervlakte 120 m²;
- energielabel C;
- voorzien van centrale verwarming;
- grotendeels voorzien van dubbele beglazing;
- voorzien van elektrisch bedienbare zonneschermen;
- voldoende parkeergelegenheid.
+ Meer omschrijving
- Minder omschrijving
Locatie:
De woning is gelegen in de wijk Kerkelanden, een rustige en kindvriendelijke woonomgeving met een compleet voorzieningenniveau. Winkelcentrum Kerkelanden, scholen, sportvoorzieningen en openbaar vervoer bevinden zich op korte afstand. Daarnaast zijn de uitvalswegen richting Amsterdam en Utrecht goed bereikbaar. Een praktische ligging waar dagelijks gemak en bereikbaarheid samenkomen.
Indeling:
Entree, hal met garderobe en toilet, lichte woon-/eetkamer met trapkast, open keuken voorzien van diverse apparatuur waaronder afwasmachine, koelkast, vriezer en inductiekookplaat. De ruime achtertuin ligt op het Zuid-Oosten en heeft een vrijstaande stenen schuur en een achterom.
Eerste verdieping:
Overloop, 2 ruime slaapkamers (één met toegang tot het balkon), kleinere slaapkamer, badkamer met douche, toilet, wastafelmeubel en vloerverwarming.
Tweede verdieping:
Ruime overloop met bergruimte en aparte ruimte waar de wasmachine-/droger aansluitingen zijn en de c.v.-installatie is. Ruime slaapkamer met dakkapel en wastafel.
Kenmerken:
- woonoppervlakte 120 m²;
- energielabel C;
- voorzien van centrale verwarming;
- grotendeels voorzien van dubbele beglazing;
- voorzien van elektrisch bedienbare zonneschermen;
- voldoende parkeergelegenheid.
Kenmerken
| Bouwjaar | 1971 |
|---|---|
| Bouwvorm | bestaande bouw |
| Woonoppervlakte | 120 |
| Aantal kamers | 5 |
Overdracht
| Status | Beschikbaar |
|---|---|
| Prijs | € 489.000 Kosten koper |
| Aanvaarding | in overleg |
Bouw vorm
| Bouwjaar | 1971 |
|---|---|
| Bouwvorm | bestaande bouw |
Indeling
| Woonoppervlakte | 120 |
|---|---|
| Inhoud | 413 |
| Aantal kamers | 5 |
| Slaapkamers | 4 |
| Etages | 3 |
Tuin
| Tuin | Achtertuin, Voortuin |
|---|---|
| Hoofdtuin oppervlakte | 66 |
| Hoofdtuin positie | Zuidoost |
| Aantal bergingen | 1 |
Parking
| Garage soort | Geen garage |
|---|
In de buurt
Wij kennen werkelijk iedere straat en elke hoek van Hilversum. Benieuwd wat een buurt je te bieden heeft? We kunnen je er alles over vertellen!



Plan een bezichtiging
voor: Comeniushof 70
Bel ons op 035 625 20 70 of WhatsApp via 0356252070 voor direct contact. Of laat jouw gegevens achter en wij nemen zo snel mogelijk contact met je op.



