Terug naar resultatenCouperusweg 1 A
Couperusweg 1 A
1217 TA HILVERSUM
€ 625.000 k.k.
Omschrijving
Royale bovenwoning in statig pand (1899) aan het stadspark bij de Oude Haven
Wonen in karakter, met de ruimte en het comfort van nu. Deze royale bovenwoning maakt deel uit van een statig pand uit 1899 en is gelegen op een unieke locatie aan het stadspark bij de Oude Haven. Hier combineert u historische allure met hedendaags wooncomfort, midden in het groen én op loopafstand van alle voorzieningen.
Met een woonoppervlakte van maar liefst 113 m², verdeeld over twee volwaardige verdiepingen, biedt deze woning een verrassend ruime en praktische indeling. De lichte leefverdieping kenmerkt zich door hoge plafonds en grote raampartijen, die zorgen voor een prettige lichtinval en een ruimtelijk gevoel. De authentieke uitstraling van het pand vormt een fraai contrast met het moderne afwerkingsniveau.
De woning beschikt over twee badkamers, wat het geheel uitermate geschikt maakt voor gezinnen en thuiswerkers.
De ligging is bijzonder aantrekkelijk: op korte loopafstand bevinden zich zowel het groen van het Corversbos als het levendige centrum van Hilversum en winkelstraat De Gijsbrecht. Hierdoor geniet u van rust en natuur, terwijl winkels, horeca, scholen en openbaar vervoer binnen handbereik zijn.
Op de begane grond beschikt de woning over een eigen berging – ideaal voor fietsen, opslag of sportuitrusting.
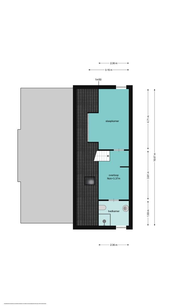
Indeling: eigen voordeur op de begane grond, trapopgang, overloop, royale woonkamer, voorzien van een open haard, hoge plafonds, houten vloeren en balkon. Hier kan je genieten van het prachtige uitzicht over het stadspark "De Oude Haven". De open woonkeuken is uitgerust met diverse (Miele) inbouwapparatuur en biedt veel ruimte om te koken en te genieten van heerlijke maaltijden. Daarnaast bevinden zich de 1e verdieping twee ruime slaapkamers, een moderne badkamer (2021) met toilet, inloopdouche en een wastafelmeubel en is er een nog een aparte was-/stookruimte.
2e Verdieping: de zolderverdieping is bereikbaar via een vaste trap en beschikt over een ruime overloop met een dakraam en veel bergruimte. De slaapkamer op deze verdieping heeft een dakkapel, wat zorgt voor een mooie lichtinval. De tweede moderne badkamer (2021) is eveneens voorzien van een inloopdouche, wastafel en toilet.
Bijzonderheden:
- Servicekosten € 375,- per maand.
- Heeft de status beschermd stadsgezicht
- Berging begane grond voorzien van elektra
Kortom: een ruime en sfeervolle bovenwoning met twee badkamers, gelegen op een toplocatie waar historie, comfort en bereikbaarheid samenkomen.
Interesse? Neem contact op voor een bezichtiging en ervaar zelf de unieke combinatie van grandeur en woonkwaliteit.
+ Meer omschrijving
- Minder omschrijving
Wonen in karakter, met de ruimte en het comfort van nu. Deze royale bovenwoning maakt deel uit van een statig pand uit 1899 en is gelegen op een unieke locatie aan het stadspark bij de Oude Haven. Hier combineert u historische allure met hedendaags wooncomfort, midden in het groen én op loopafstand van alle voorzieningen.
Met een woonoppervlakte van maar liefst 113 m², verdeeld over twee volwaardige verdiepingen, biedt deze woning een verrassend ruime en praktische indeling. De lichte leefverdieping kenmerkt zich door hoge plafonds en grote raampartijen, die zorgen voor een prettige lichtinval en een ruimtelijk gevoel. De authentieke uitstraling van het pand vormt een fraai contrast met het moderne afwerkingsniveau.
De woning beschikt over twee badkamers, wat het geheel uitermate geschikt maakt voor gezinnen en thuiswerkers.
De ligging is bijzonder aantrekkelijk: op korte loopafstand bevinden zich zowel het groen van het Corversbos als het levendige centrum van Hilversum en winkelstraat De Gijsbrecht. Hierdoor geniet u van rust en natuur, terwijl winkels, horeca, scholen en openbaar vervoer binnen handbereik zijn.
Op de begane grond beschikt de woning over een eigen berging – ideaal voor fietsen, opslag of sportuitrusting.
Indeling: eigen voordeur op de begane grond, trapopgang, overloop, royale woonkamer, voorzien van een open haard, hoge plafonds, houten vloeren en balkon. Hier kan je genieten van het prachtige uitzicht over het stadspark "De Oude Haven". De open woonkeuken is uitgerust met diverse (Miele) inbouwapparatuur en biedt veel ruimte om te koken en te genieten van heerlijke maaltijden. Daarnaast bevinden zich de 1e verdieping twee ruime slaapkamers, een moderne badkamer (2021) met toilet, inloopdouche en een wastafelmeubel en is er een nog een aparte was-/stookruimte.
2e Verdieping: de zolderverdieping is bereikbaar via een vaste trap en beschikt over een ruime overloop met een dakraam en veel bergruimte. De slaapkamer op deze verdieping heeft een dakkapel, wat zorgt voor een mooie lichtinval. De tweede moderne badkamer (2021) is eveneens voorzien van een inloopdouche, wastafel en toilet.
Bijzonderheden:
- Servicekosten € 375,- per maand.
- Heeft de status beschermd stadsgezicht
- Berging begane grond voorzien van elektra
Kortom: een ruime en sfeervolle bovenwoning met twee badkamers, gelegen op een toplocatie waar historie, comfort en bereikbaarheid samenkomen.
Interesse? Neem contact op voor een bezichtiging en ervaar zelf de unieke combinatie van grandeur en woonkwaliteit.
Kenmerken
| Bouwjaar | 1899 |
|---|---|
| Bouwvorm | bestaande bouw |
| Woonoppervlakte | 113 |
| Aantal kamers | 4 |
Overdracht
| Status | Beschikbaar |
|---|---|
| Prijs | € 625.000 Kosten koper |
| Aanvaarding | in overleg |
Bouw vorm
| Bouwjaar | 1899 |
|---|---|
| Bouwvorm | bestaande bouw |
Indeling
| Woonoppervlakte | 113 |
|---|---|
| Inhoud | 401 |
| Aantal kamers | 4 |
| Slaapkamers | 3 |
| Etages | 2 |
Tuin
| Tuin | Geen tuin |
|---|---|
| Aantal bergingen | 1 |
Parking
| Garage soort | Geen garage |
|---|
In de buurt
Wij kennen werkelijk iedere straat en elke hoek van Hilversum. Benieuwd wat een buurt je te bieden heeft? We kunnen je er alles over vertellen!



Plan een bezichtiging
voor: Couperusweg 1 A
Bel ons op 035 625 20 70 of WhatsApp via 0356252070 voor direct contact. Of laat jouw gegevens achter en wij nemen zo snel mogelijk contact met je op.



