Terug naar resultatenDe Loodsen 6
De Loodsen 6
1221 SE HILVERSUM
€ 1.050.000 k.k.
Omschrijving
English text below
Ruimte, licht en luxe: royale gezinsvilla (210 m²) met 5 slaapkamers, 2 badkamers, zonnige tuin op het zuiden en 2 ondergrondse privé parkeerplaatsen in hartje Villa Industria.
Deze karakteristieke middenvilla, type Loods, biedt drie volwaardige woonlagen vol licht, ruimte en comfort. De woning combineert een moderne afwerking met een sfeervolle uitstraling, ideaal voor gezinnen die ruimte zoeken op een centrale, kindvriendelijke plek.
Begane grond: ruime woonkamer en luxe woonkeuken
Aan de voorzijde bevindt zich de lichte woonkamer. Via schuifdeuren kom je in de royale, uitgebouwde woonkeuken met kookeiland en zitplaatsen. De keuken is luxe uitgevoerd met o.a. keramische kookplaat, dubbele combi-oven, grote koelkast, vriezer, vaatwasser en Quooker. Openslaande deuren geven toegang tot de recent aangelegde, onderhoudsarme tuin op het zuiden.
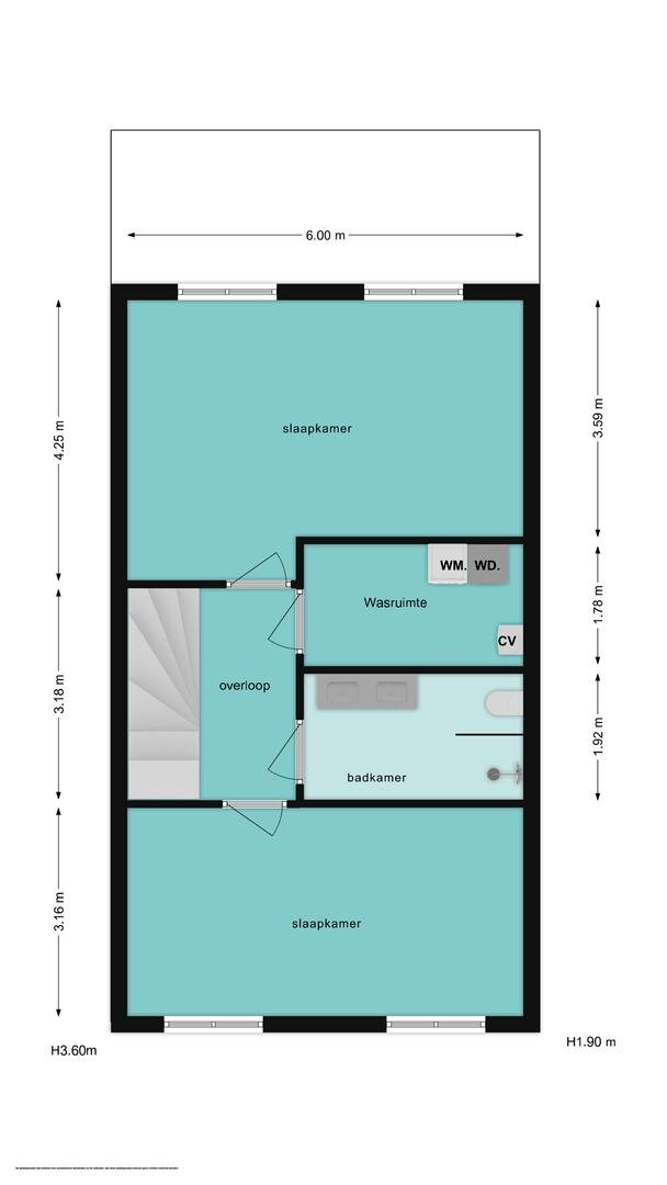
Eerste verdieping met 3 slaapkamers en complete badkamer
De ouderslaapkamer (ca. 19 m²) beschikt over maatwerkkasten. De moderne badkamer is voorzien van ligbad, inloopdouche, dubbel wastafelmeubel, handdoekradiator en toilet. Daarnaast zijn er twee slaapkamers van ca. 10 en 14 m². Alle kamers hebben laminaatvloer met individuele vloerverwarming.
Tweede verdieping met 2 extra slaapkamers, 2e badkamer en wasruimte
Hier vind je nog twee ruime slaapkamers (ca. 25 en 19 m²). Eén kamer is momenteel ingericht als kantoorruimte en gym. De tweede badkamer biedt een inloopdouche, dubbel wastafelmeubel, handdoekradiator en toilet. Er is tevens een aparte wasruimte met cv-ketel (Remeha Calenta 2016) en mechanische ventilatie.
Kindvriendelijke en centrale locatie
Villa Industria is geliefd: rustig, autoluw en zeer kindvriendelijk. Alles ligt dichtbij: (internationale) scholen, winkelcentrum, supermarkt, natuur, sport- en gezondheidsfaciliteiten, zwembad, station en het centrum.
Pluspunten op een rij:
• 210 m² woonoppervlak;
• 5 slaapkamers, 2 badkamers, 3 toiletten;
• 2 privé parkeerplaatsen in afgesloten parkeerkelder;
• Zonnige, onderhoudsarme tuin op het zuiden met berging;
• Energiezuinig (energielabel A+), volledig geïsoleerd en onderhoudsarm;
• Vloerverwarming met thermostaat per kamer;
• Drie volwaardige verdiepingen met veel lichtinval;
• Centrale ligging nabij natuur, centrum, scholen en uitvalswegen;
Kortom: een instapklare gezinswoning met ruimte voor het hele gezin, luxe comfort en een warme uitstraling.
Bijzonderheden:
• Bouwjaar: 2016;
• Perceeloppervlakte: 167 m²;
• Servicekosten parkeerkelder: € 90,91 per maand (incl. beheer VvE).
English version .-
Space, light and luxury: spacious family villa (210 m²) with 5 bedrooms, 2 bathrooms, sunny south-facing garden and 2 private underground parking spaces in the heart of Villa Industria.
This characteristic townhouse (type “Loods”) offers three full floors of light, space and comfort. The home combines a modern finish with a warm, atmospheric design, ideal for families looking for space in a central and child-friendly location.
Ground floor: spacious living room and luxury kitchen-diner
At the front you’ll find the bright living room. Sliding doors lead into the large, extended kitchen-diner with island and seating. The kitchen is fully equipped with ceramic hob, two combi-ovens, large fridge, freezer, dishwasher and Quooker. French doors at the rear open onto the newly landscaped, low-maintenance south-facing garden.
First floor with 3 bedrooms and full bathroom
The master bedroom (approx. 19 m²) includes custom built-in wardrobes. The modern bathroom has a bathtub, walk-in shower, double washbasin unit, towel radiator and toilet. Two further bedrooms (approx. 10 and 14 m²) are located at the rear. All rooms feature laminate flooring and individually controlled underfloor heating.
Second floor with 2 additional bedrooms, 2nd bathroom and utility room
This level offers two further spacious bedrooms (approx. 25 and 19 m²). One is currently used as a home office and gym. The second bathroom includes a walk-in shower, double washbasin unit, towel radiator and toilet. There is also a separate utility room with central heating system (Remeha Calenta 2016) and mechanical ventilation.
Family-friendly and central location
Villa Industria is highly sought after: quiet, low-traffic and very child-friendly. Everything is nearby: (international) schools, shopping centre, supermarket, nature, sports and health facilities, swimming pool, train station and the city centre.
Key features at a glance:
• 210 m² living space
• 5 bedrooms, 2 bathrooms, 3 toilets
• 2 private parking spaces in secure underground garage
• Sunny, low-maintenance south-facing garden with shed
• Energy-efficient (energy label A+), fully insulated and low-maintenance
• Underfloor heating with thermostat in each room
• Three full floors with abundant natural light
• Central location near nature, city centre, (international) schools and main roads
In short: a move-in-ready family home with space for the whole family, modern comfort and a warm atmosphere.
Details:
• Year built: 2016;
• Plot size: 167 m²;
• Service costs for underground parking: € 90.91 per month (incl. VvE/HOA management).
+ Meer omschrijving
- Minder omschrijving
Ruimte, licht en luxe: royale gezinsvilla (210 m²) met 5 slaapkamers, 2 badkamers, zonnige tuin op het zuiden en 2 ondergrondse privé parkeerplaatsen in hartje Villa Industria.
Deze karakteristieke middenvilla, type Loods, biedt drie volwaardige woonlagen vol licht, ruimte en comfort. De woning combineert een moderne afwerking met een sfeervolle uitstraling, ideaal voor gezinnen die ruimte zoeken op een centrale, kindvriendelijke plek.
Begane grond: ruime woonkamer en luxe woonkeuken
Aan de voorzijde bevindt zich de lichte woonkamer. Via schuifdeuren kom je in de royale, uitgebouwde woonkeuken met kookeiland en zitplaatsen. De keuken is luxe uitgevoerd met o.a. keramische kookplaat, dubbele combi-oven, grote koelkast, vriezer, vaatwasser en Quooker. Openslaande deuren geven toegang tot de recent aangelegde, onderhoudsarme tuin op het zuiden.
Eerste verdieping met 3 slaapkamers en complete badkamer
De ouderslaapkamer (ca. 19 m²) beschikt over maatwerkkasten. De moderne badkamer is voorzien van ligbad, inloopdouche, dubbel wastafelmeubel, handdoekradiator en toilet. Daarnaast zijn er twee slaapkamers van ca. 10 en 14 m². Alle kamers hebben laminaatvloer met individuele vloerverwarming.
Tweede verdieping met 2 extra slaapkamers, 2e badkamer en wasruimte
Hier vind je nog twee ruime slaapkamers (ca. 25 en 19 m²). Eén kamer is momenteel ingericht als kantoorruimte en gym. De tweede badkamer biedt een inloopdouche, dubbel wastafelmeubel, handdoekradiator en toilet. Er is tevens een aparte wasruimte met cv-ketel (Remeha Calenta 2016) en mechanische ventilatie.
Kindvriendelijke en centrale locatie
Villa Industria is geliefd: rustig, autoluw en zeer kindvriendelijk. Alles ligt dichtbij: (internationale) scholen, winkelcentrum, supermarkt, natuur, sport- en gezondheidsfaciliteiten, zwembad, station en het centrum.
Pluspunten op een rij:
• 210 m² woonoppervlak;
• 5 slaapkamers, 2 badkamers, 3 toiletten;
• 2 privé parkeerplaatsen in afgesloten parkeerkelder;
• Zonnige, onderhoudsarme tuin op het zuiden met berging;
• Energiezuinig (energielabel A+), volledig geïsoleerd en onderhoudsarm;
• Vloerverwarming met thermostaat per kamer;
• Drie volwaardige verdiepingen met veel lichtinval;
• Centrale ligging nabij natuur, centrum, scholen en uitvalswegen;
Kortom: een instapklare gezinswoning met ruimte voor het hele gezin, luxe comfort en een warme uitstraling.
Bijzonderheden:
• Bouwjaar: 2016;
• Perceeloppervlakte: 167 m²;
• Servicekosten parkeerkelder: € 90,91 per maand (incl. beheer VvE).
English version .-
Space, light and luxury: spacious family villa (210 m²) with 5 bedrooms, 2 bathrooms, sunny south-facing garden and 2 private underground parking spaces in the heart of Villa Industria.
This characteristic townhouse (type “Loods”) offers three full floors of light, space and comfort. The home combines a modern finish with a warm, atmospheric design, ideal for families looking for space in a central and child-friendly location.
Ground floor: spacious living room and luxury kitchen-diner
At the front you’ll find the bright living room. Sliding doors lead into the large, extended kitchen-diner with island and seating. The kitchen is fully equipped with ceramic hob, two combi-ovens, large fridge, freezer, dishwasher and Quooker. French doors at the rear open onto the newly landscaped, low-maintenance south-facing garden.
First floor with 3 bedrooms and full bathroom
The master bedroom (approx. 19 m²) includes custom built-in wardrobes. The modern bathroom has a bathtub, walk-in shower, double washbasin unit, towel radiator and toilet. Two further bedrooms (approx. 10 and 14 m²) are located at the rear. All rooms feature laminate flooring and individually controlled underfloor heating.
Second floor with 2 additional bedrooms, 2nd bathroom and utility room
This level offers two further spacious bedrooms (approx. 25 and 19 m²). One is currently used as a home office and gym. The second bathroom includes a walk-in shower, double washbasin unit, towel radiator and toilet. There is also a separate utility room with central heating system (Remeha Calenta 2016) and mechanical ventilation.
Family-friendly and central location
Villa Industria is highly sought after: quiet, low-traffic and very child-friendly. Everything is nearby: (international) schools, shopping centre, supermarket, nature, sports and health facilities, swimming pool, train station and the city centre.
Key features at a glance:
• 210 m² living space
• 5 bedrooms, 2 bathrooms, 3 toilets
• 2 private parking spaces in secure underground garage
• Sunny, low-maintenance south-facing garden with shed
• Energy-efficient (energy label A+), fully insulated and low-maintenance
• Underfloor heating with thermostat in each room
• Three full floors with abundant natural light
• Central location near nature, city centre, (international) schools and main roads
In short: a move-in-ready family home with space for the whole family, modern comfort and a warm atmosphere.
Details:
• Year built: 2016;
• Plot size: 167 m²;
• Service costs for underground parking: € 90.91 per month (incl. VvE/HOA management).
Kenmerken
| Bouwjaar | 2016 |
|---|---|
| Bouwvorm | bestaande bouw |
| Woonoppervlakte | 210 |
| Aantal kamers | 6 |
Overdracht
| Status | Verkocht |
|---|---|
| Prijs | € 1.050.000 Kosten koper excl. € 90,91 servicekosten |
| Aanvaarding | in overleg |
Bouw vorm
| Bouwjaar | 2016 |
|---|---|
| Bouwvorm | bestaande bouw |
Indeling
| Woonoppervlakte | 210 |
|---|---|
| Inhoud | 807 |
| Aantal kamers | 6 |
| Slaapkamers | 5 |
| Etages | 3 |
Tuin
| Tuin | Achtertuin, Voortuin |
|---|---|
| Hoofdtuin oppervlakte | 72 |
| Hoofdtuin positie | Zuid |
| Aantal bergingen | 1 |
Parking
| Garage soort | Parkeerplaats |
|---|
In de buurt
Wij kennen werkelijk iedere straat en elke hoek van Hilversum. Benieuwd wat een buurt je te bieden heeft? We kunnen je er alles over vertellen!







