Terug naar resultatenEricastraat 25
Ericastraat 25
1214 EJ HILVERSUM
€ 595.000 k.k.
Omschrijving
Sfeervol, stijlvol en instapklaar wonen met karakter in het hart van Hilversum!
Welkom aan de Ericastraat: een charmante, rustige en kindvriendelijke straat in het geliefde Hilversum Zuid vol karakteristieke Hilversumse huisjes, op slechts een paar stappen van de levendige Gijsbrecht van Amstelstraat met zijn boetiekjes, koffietentjes en speciaalzaken. Loop je de poort uit, dan sta je zó bij de Franse bakker voor vers brood en croissants. Bovendien woon je hier centraal in Hilversum, op loopafstand van scholen, speeltuinen, sportclubs, het station Sportpark, de Hoorneboegse Hei en het Corversbos. Achter de klassieke gevel uit 1905 schuilt een verrassend modern, volledig gerenoveerd, instapklaar familiehuis met dakopbouw.
Sfeervol wonen met moderne luxe
Binnen word je verwelkomd door een lichte, open uitgebouwde leefruimte met vloerverwarming over de gehele begane grond en een prachtige moderne leefkeuken met kookeiland, het vormt het hart van het huis. Ideaal om te koken, te borrelen of gezellig samen te komen met familie en vrienden. Met oog voor detail, kwaliteit en comfort èn met behoud van het karakter dat dit huis zijn unieke sfeer geeft. De openslaande deuren brengen je direct naar de zonnige tuin, waar je in alle rust kunt genieten van de dag. Via een trap bereik je de praktische opbergkelder; ideaal voor voorraad, koffers of seizoensspullen, extra bergruimte die in elk huis van pas komt.
Op de eerste verdieping vind je een ruime master bedroom en een tweede slaapkamer die ideaal is als babykamer, werkkamer of inloopkast. De ruime moderne badkamer straalt hotel-luxe uit, met een inloopdouche, ligbad en een dubbele wastafel met stijlvolle afwerking.
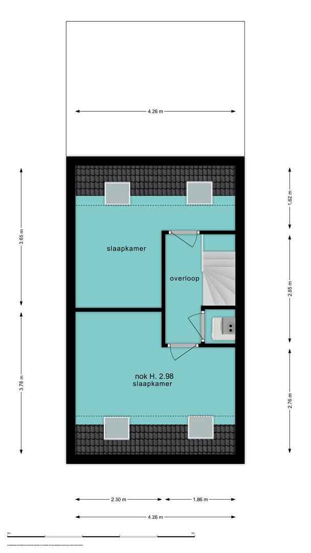
De tweede verdieping is verrassend ruim, met twee grote slaapkamers onder de hoge plafonds met prachtige houten balken, een heerlijke verdieping voor kinderen of logees. Daarnaast is er een aparte ruimte voor de wasmachine/droger en c.v.-installatie.
Duurzaam, comfortabel en klaar voor de toekomst
Het huis is volledig geïsoleerd, voorzien van HR++ en triple glas en beschikt over energielabel B. Dankzij de recente renovatie en de gerenoveerde gevel (2025) hoef je de komende jaren niets meer te doen, alleen nog maar genieten. Met een woonoppervlakte van 106 m² biedt dit huis de perfecte balans tussen karakter, ruimte en modern wooncomfort.
Samenvattend:
- woonoppervlakte: 106 m²;
- bouwjaar: 1905, volledig gerenoveerd in 2022–2023;
- energielabel B;
- vloerverwarming op de gehele begane grond en in de badkamer;
- moderne keuken met kookeiland;
- trap naar praktische opbergkelder;
- 4 slaapkamers;
- ruime badkamer met ligbad en inloopdouche;
- houten balken en karakteristieke details behouden;
- kindvriendelijke straat met gezellige sfeer;
- toplocatie nabij de Gijsbrecht van Amstelstraat, de Hoorneboegse Hei en het Corversbos.
Een unieke kans om modern comfort te combineren met authentieke charme, midden in een van de leukste en meest geliefde straatjes van Hilversum!
+ Meer omschrijving
- Minder omschrijving
Welkom aan de Ericastraat: een charmante, rustige en kindvriendelijke straat in het geliefde Hilversum Zuid vol karakteristieke Hilversumse huisjes, op slechts een paar stappen van de levendige Gijsbrecht van Amstelstraat met zijn boetiekjes, koffietentjes en speciaalzaken. Loop je de poort uit, dan sta je zó bij de Franse bakker voor vers brood en croissants. Bovendien woon je hier centraal in Hilversum, op loopafstand van scholen, speeltuinen, sportclubs, het station Sportpark, de Hoorneboegse Hei en het Corversbos. Achter de klassieke gevel uit 1905 schuilt een verrassend modern, volledig gerenoveerd, instapklaar familiehuis met dakopbouw.
Sfeervol wonen met moderne luxe
Binnen word je verwelkomd door een lichte, open uitgebouwde leefruimte met vloerverwarming over de gehele begane grond en een prachtige moderne leefkeuken met kookeiland, het vormt het hart van het huis. Ideaal om te koken, te borrelen of gezellig samen te komen met familie en vrienden. Met oog voor detail, kwaliteit en comfort èn met behoud van het karakter dat dit huis zijn unieke sfeer geeft. De openslaande deuren brengen je direct naar de zonnige tuin, waar je in alle rust kunt genieten van de dag. Via een trap bereik je de praktische opbergkelder; ideaal voor voorraad, koffers of seizoensspullen, extra bergruimte die in elk huis van pas komt.
Op de eerste verdieping vind je een ruime master bedroom en een tweede slaapkamer die ideaal is als babykamer, werkkamer of inloopkast. De ruime moderne badkamer straalt hotel-luxe uit, met een inloopdouche, ligbad en een dubbele wastafel met stijlvolle afwerking.
De tweede verdieping is verrassend ruim, met twee grote slaapkamers onder de hoge plafonds met prachtige houten balken, een heerlijke verdieping voor kinderen of logees. Daarnaast is er een aparte ruimte voor de wasmachine/droger en c.v.-installatie.
Duurzaam, comfortabel en klaar voor de toekomst
Het huis is volledig geïsoleerd, voorzien van HR++ en triple glas en beschikt over energielabel B. Dankzij de recente renovatie en de gerenoveerde gevel (2025) hoef je de komende jaren niets meer te doen, alleen nog maar genieten. Met een woonoppervlakte van 106 m² biedt dit huis de perfecte balans tussen karakter, ruimte en modern wooncomfort.
Samenvattend:
- woonoppervlakte: 106 m²;
- bouwjaar: 1905, volledig gerenoveerd in 2022–2023;
- energielabel B;
- vloerverwarming op de gehele begane grond en in de badkamer;
- moderne keuken met kookeiland;
- trap naar praktische opbergkelder;
- 4 slaapkamers;
- ruime badkamer met ligbad en inloopdouche;
- houten balken en karakteristieke details behouden;
- kindvriendelijke straat met gezellige sfeer;
- toplocatie nabij de Gijsbrecht van Amstelstraat, de Hoorneboegse Hei en het Corversbos.
Een unieke kans om modern comfort te combineren met authentieke charme, midden in een van de leukste en meest geliefde straatjes van Hilversum!
Kenmerken
| Bouwjaar | 1905 |
|---|---|
| Bouwvorm | bestaande bouw |
| Woonoppervlakte | 106 |
| Aantal kamers | 5 |
Overdracht
| Status | Beschikbaar |
|---|---|
| Prijs | € 595.000 Kosten koper |
| Aanvaarding | in overleg |
Bouw vorm
| Bouwjaar | 1905 |
|---|---|
| Bouwvorm | bestaande bouw |
Indeling
| Woonoppervlakte | 106 |
|---|---|
| Inhoud | 382 |
| Aantal kamers | 5 |
| Slaapkamers | 4 |
| Etages | 4 |
Tuin
| Tuin | Achtertuin, Voortuin |
|---|---|
| Hoofdtuin oppervlakte | 36 |
| Hoofdtuin positie | Oost |
| Aantal bergingen | 1 |
Parking
| Garage soort | Geen garage |
|---|
In de buurt
Wij kennen werkelijk iedere straat en elke hoek van Hilversum. Benieuwd wat een buurt je te bieden heeft? We kunnen je er alles over vertellen!



Plan een bezichtiging
voor: Ericastraat 25
Bel ons op 035 625 20 70 of WhatsApp via 0356252070 voor direct contact. Of laat jouw gegevens achter en wij nemen zo snel mogelijk contact met je op.




