Terug naar resultatenFuchsiastraat 46
Fuchsiastraat 46
1214 GK HILVERSUM
€ 539.000 k.k.
Omschrijving
In een rustige straat in het kindvriendelijke Bloemenkwartier in Hilversum Zuid, aan plantsoen gelegen uitgebouwde middenwoning met heerlijke, ruim 15 meter diepe en 8 meter brede achtertuin op het zuiden! Deze zonnige achtertuin beschikt over een achterom, een houten berging en overkapping met houtkachel waar u heerlijk kunt vertoeven.
De woning is gelegen op loopafstand van de geliefde Gijsbrecht van Amstelstraat – bekend om haar gezellige winkels, ambachtelijke speciaalzaken en leuke boetieks. Geniet van een vers croissantje van de Franse bakker, loop even binnen bij het Olijvenhuis of haal iets lekkers bij de Hema – alles ligt letterlijk op loopafstand. Daarnaast zijn fraaie natuurgebieden zoals de Hoorneboegse heide, diverse scholen, openbaar vervoer en uitvalswegen richting Amsterdam en Utrecht dichtbij.
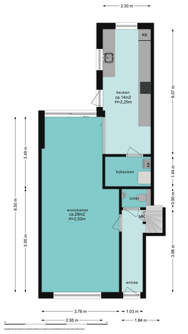
Indeling: entree / hal met trapopgang, meterkast en vergrote toilet met fonteintje. Ruime en lichte woon- / eetkamer met uitbouw aan de achterzijde, voorzien van houten vloer en schuifpui naar de heerlijke vrije achtertuin. Middels schuifdeur toegang naar de royale, uitgebouwde keuken welke is voorzien van 5-pits gasfornuis en dubbele oven, afzuigkap, combimagnetron, koelkast, vriezer en vaatwasser. Vanuit de keuken middels achterdeur toegang tot de tuin en deur naar de bijkeuken met aansluiting wasapparatuur en c.v.-opstelling.
1e verdieping: overloop, moderne badkamer aan de voorzijde met vloerverwarming, inloopdouche, wastafelmeubel en 2e toilet. Ruime slaapkamer met dakkapel aan de achterzijde met schuifkastenwand. 2e slaapkamer aan voorzijde met dakkapel.
2e verdieping: via vaste trap bereikbaar, overloop met daglicht door dakkapel, knusse 3e slaapkamer met dakkapel over de volle breedte ideaal als kinder- of werkkamer.
Kortom; een heerlijk huis met een verrassend ruime tuin in het geliefde Hilversum Zuid!
Bijzonderheden:
- Gebruiksoppervlakte wonen 97 m²;
- Externe bergruimte 14 m²;
- Overkapping 14 m²;
- Royale achtertuin op het zuiden;
- Geheel v.v. dubbele beglazing, dakisolatie;
- Keurig afgewerkt en onderhouden;
- Centrale ligging nabij voorzieningen;
- Beschermd stads- / dorpsgezicht;
- Energielabel C.
+ Meer omschrijving
- Minder omschrijving
De woning is gelegen op loopafstand van de geliefde Gijsbrecht van Amstelstraat – bekend om haar gezellige winkels, ambachtelijke speciaalzaken en leuke boetieks. Geniet van een vers croissantje van de Franse bakker, loop even binnen bij het Olijvenhuis of haal iets lekkers bij de Hema – alles ligt letterlijk op loopafstand. Daarnaast zijn fraaie natuurgebieden zoals de Hoorneboegse heide, diverse scholen, openbaar vervoer en uitvalswegen richting Amsterdam en Utrecht dichtbij.
Indeling: entree / hal met trapopgang, meterkast en vergrote toilet met fonteintje. Ruime en lichte woon- / eetkamer met uitbouw aan de achterzijde, voorzien van houten vloer en schuifpui naar de heerlijke vrije achtertuin. Middels schuifdeur toegang naar de royale, uitgebouwde keuken welke is voorzien van 5-pits gasfornuis en dubbele oven, afzuigkap, combimagnetron, koelkast, vriezer en vaatwasser. Vanuit de keuken middels achterdeur toegang tot de tuin en deur naar de bijkeuken met aansluiting wasapparatuur en c.v.-opstelling.
1e verdieping: overloop, moderne badkamer aan de voorzijde met vloerverwarming, inloopdouche, wastafelmeubel en 2e toilet. Ruime slaapkamer met dakkapel aan de achterzijde met schuifkastenwand. 2e slaapkamer aan voorzijde met dakkapel.
2e verdieping: via vaste trap bereikbaar, overloop met daglicht door dakkapel, knusse 3e slaapkamer met dakkapel over de volle breedte ideaal als kinder- of werkkamer.
Kortom; een heerlijk huis met een verrassend ruime tuin in het geliefde Hilversum Zuid!
Bijzonderheden:
- Gebruiksoppervlakte wonen 97 m²;
- Externe bergruimte 14 m²;
- Overkapping 14 m²;
- Royale achtertuin op het zuiden;
- Geheel v.v. dubbele beglazing, dakisolatie;
- Keurig afgewerkt en onderhouden;
- Centrale ligging nabij voorzieningen;
- Beschermd stads- / dorpsgezicht;
- Energielabel C.
Kenmerken
| Bouwjaar | 1923 |
|---|---|
| Bouwvorm | bestaande bouw |
| Woonoppervlakte | 97 |
| Aantal kamers | 4 |
Overdracht
| Status | Onder bod |
|---|---|
| Prijs | € 539.000 Kosten koper |
| Aanvaarding | in overleg |
Bouw vorm
| Bouwjaar | 1923 |
|---|---|
| Bouwvorm | bestaande bouw |
Indeling
| Woonoppervlakte | 97 |
|---|---|
| Inhoud | 318 |
| Aantal kamers | 4 |
| Slaapkamers | 3 |
| Etages | 3 |
Tuin
| Tuin | Achtertuin, Voortuin |
|---|---|
| Hoofdtuin oppervlakte | 120 |
| Hoofdtuin positie | Zuid |
| Aantal bergingen | 1 |
Parking
| Garage soort | Geen garage |
|---|
In de buurt
Wij kennen werkelijk iedere straat en elke hoek van Hilversum. Benieuwd wat een buurt je te bieden heeft? We kunnen je er alles over vertellen!



Plan een bezichtiging
voor: Fuchsiastraat 46
Bel ons op 035 625 20 70 of WhatsApp via 0356252070 voor direct contact. Of laat jouw gegevens achter en wij nemen zo snel mogelijk contact met je op.



