Terug naar resultatenHazenstraat 8
Hazenstraat 8
1216 AX HILVERSUM
€ 675.000 k.k.
Omschrijving
In een rustige, kindvriendelijke straat in jaren ’30 woonomgeving in Hilversum Zuid, bieden wij aan een instapklare en uitgebouwde middenwoning uit 1937 gelegen in het populaire “Rode Dorp” met ruime leefkeuken, riante badkamer en 4 slaapkamers.
De woning is gelegen op loopafstand van Stadspark de Oude Haven, natuurgebied Corversbos, een speeltuintje, Albert Heijn, sportvelden, winkelgebied “Gijsbrecht van Amstel”, scholen en openbaar vervoer. Ook het gezellige centrum van Hilversum (met NS station op 5 minuten fietsen) en uitvalswegen zijn op korte afstand.
Indeling:
De begane grond heeft een charmante woonkamer met originele en suite met met glas-in lood deuren en een parketvloer. De uitgebouwde woonkeuken is voorzien van moderne apparatuur en een brede lichtstraat, waardoor er veel lichtinval ontstaat. De openslaande deuren bieden toegang tot de zonnige tuin. Via de tussenhal bereik je het moderne toilet, de
berg / meterkast met moderne groepen en de trapopgang naar de verdieping.
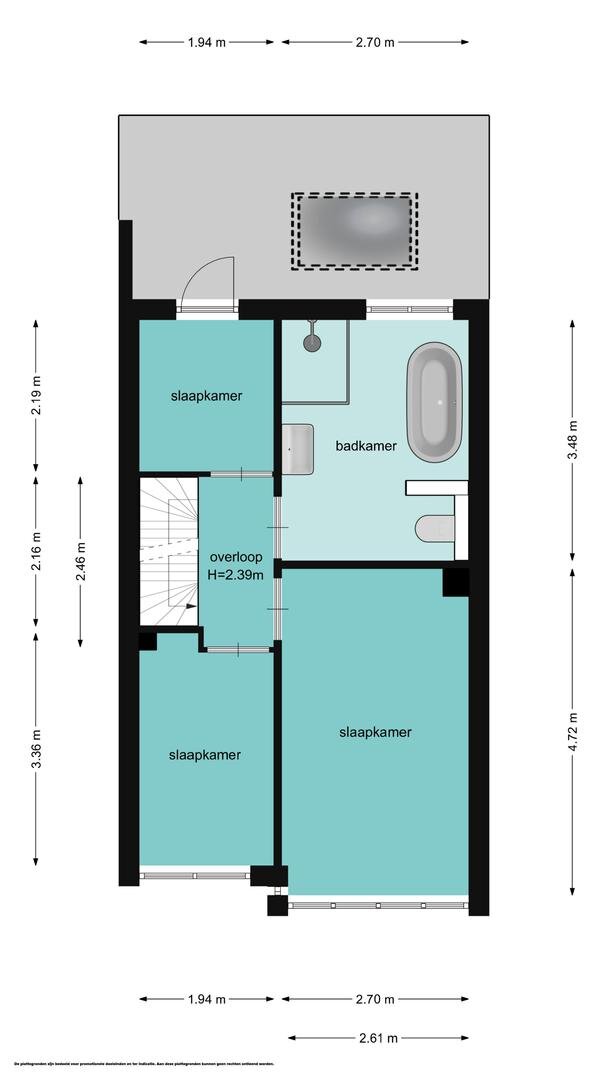
Verdieping:
Overloop met een parketvloer, drie verschillende slaapkamers, een balkon en een riante badkamer met een vrijstaand bad, inloop regendouche, wastafelmeubel, toilet en handdoekradiator.
De tweede verdieping heeft een fraaie zolderkamer met twee grote dakkapellen (geplaatst in 2021), een airco-unit, ruime inbouwkasten en wasmachine/droger-aansluting.
Een zeer aantrekkelijke gezinswoning, uitstekend onderhouden en gemoderniseerd, gunstig gelegen nabij voorzieningen en groene ruimtes. De ideale plek voor een gezin dat op zoek is naar een comfortabele, moderne en sfeervolle woning die uitstekend is onderhouden.
Bijzonderheden:
- instapklaar gezinshuis op gewilde locatie met fijne tuin!;
- grote dakkappellen aan voor- en achterzijde 2e verdieping;
- pannendak inclusief dakisolatie zijn volledig vernieuwd in 2021;
- airconditioning zolder 2021;
- volledig voorzien van HR++ glas;
- Corversbos op enkele minuten loopafstand;
- c.v. ketel Nefit 2009.
+ Meer omschrijving
- Minder omschrijving
De woning is gelegen op loopafstand van Stadspark de Oude Haven, natuurgebied Corversbos, een speeltuintje, Albert Heijn, sportvelden, winkelgebied “Gijsbrecht van Amstel”, scholen en openbaar vervoer. Ook het gezellige centrum van Hilversum (met NS station op 5 minuten fietsen) en uitvalswegen zijn op korte afstand.
Indeling:
De begane grond heeft een charmante woonkamer met originele en suite met met glas-in lood deuren en een parketvloer. De uitgebouwde woonkeuken is voorzien van moderne apparatuur en een brede lichtstraat, waardoor er veel lichtinval ontstaat. De openslaande deuren bieden toegang tot de zonnige tuin. Via de tussenhal bereik je het moderne toilet, de
berg / meterkast met moderne groepen en de trapopgang naar de verdieping.
Verdieping:
Overloop met een parketvloer, drie verschillende slaapkamers, een balkon en een riante badkamer met een vrijstaand bad, inloop regendouche, wastafelmeubel, toilet en handdoekradiator.
De tweede verdieping heeft een fraaie zolderkamer met twee grote dakkapellen (geplaatst in 2021), een airco-unit, ruime inbouwkasten en wasmachine/droger-aansluting.
Een zeer aantrekkelijke gezinswoning, uitstekend onderhouden en gemoderniseerd, gunstig gelegen nabij voorzieningen en groene ruimtes. De ideale plek voor een gezin dat op zoek is naar een comfortabele, moderne en sfeervolle woning die uitstekend is onderhouden.
Bijzonderheden:
- instapklaar gezinshuis op gewilde locatie met fijne tuin!;
- grote dakkappellen aan voor- en achterzijde 2e verdieping;
- pannendak inclusief dakisolatie zijn volledig vernieuwd in 2021;
- airconditioning zolder 2021;
- volledig voorzien van HR++ glas;
- Corversbos op enkele minuten loopafstand;
- c.v. ketel Nefit 2009.
Kenmerken
| Bouwjaar | 1937 |
|---|---|
| Bouwvorm | bestaande bouw |
| Woonoppervlakte | 117 |
| Aantal kamers | 5 |
Overdracht
| Status | Verkocht onder voorbehoud |
|---|---|
| Prijs | € 675.000 Kosten koper |
| Aanvaarding | in overleg |
Bouw vorm
| Bouwjaar | 1937 |
|---|---|
| Bouwvorm | bestaande bouw |
Indeling
| Woonoppervlakte | 117 |
|---|---|
| Inhoud | 406 |
| Aantal kamers | 5 |
| Slaapkamers | 4 |
| Etages | 3 |
Tuin
| Tuin | Achtertuin, Voortuin |
|---|---|
| Hoofdtuin oppervlakte | 50 |
| Hoofdtuin positie | Oost |
| Aantal bergingen | 1 |
Parking
| Garage soort | Geen garage |
|---|
In de buurt
Wij kennen werkelijk iedere straat en elke hoek van Hilversum. Benieuwd wat een buurt je te bieden heeft? We kunnen je er alles over vertellen!






