Terug naar resultatenHilvertsweg 157
Hilvertsweg 157
1214 JC HILVERSUM
€ 399.500 k.k.
Omschrijving
Royale levensloop bestendige woning op geliefde locatie in Hilversum-Zuid!
Op zoek naar ruimte, sfeer en een top locatie? Deze royale tussenwoning aan de Hilvertsweg in Hilversum combineert het allemaal! Met maar liefst 133 m² woonoppervlak, drie grote slaapkamers, twee badkamers en talloze indelingsmogelijkheden is dit een buitenkans voor wie royaal wil wonen op een plek waar alles binnen handbereik is.
Wonen op een gezellige plek in Hilversum
De woning ligt op een levendige, geliefde locatie vlak bij de populaire Gijsbrecht van Amstelstraat – dé winkelstraat van Hilversum met boetieks, speciaalzaken, koffietentjes en gezellige terrassen. Ook scholen, sportvoorzieningen, parken en openbaar vervoer bevinden zich in de nabije omgeving. Je woont hier in een prettige, sociale buurt waar alles op loop- of fietsafstand bereikbaar is.
Indeling
Begane grond
- Entree met hal, meterkast en trapopgang;
- Zeer royale woon-/eetkamer met L-vormige keuken;
- Trapkast en toegang tot de kelder via een luik;
- Toilet;
- Royale slaapkamer op de begane grond;
- Badkamer met douche en wastafel.
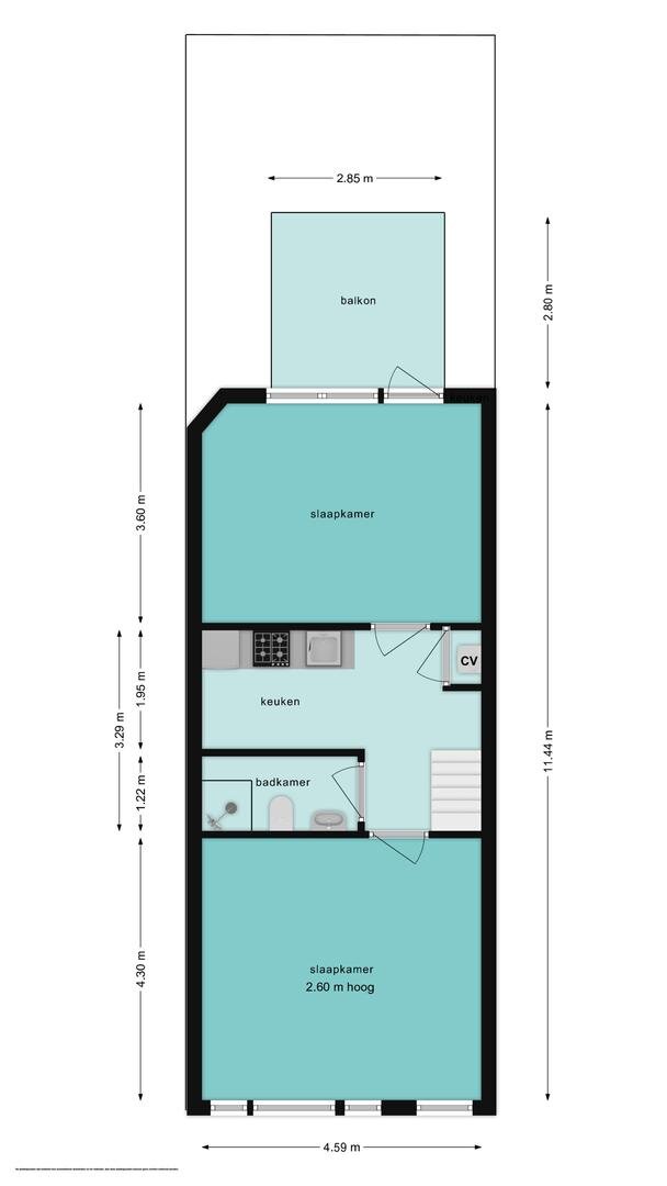
Eerste verdieping
- Overloop met extra keukenblokje;
- Kast met CV-opstelling;
- Twee zeer ruime slaapkamers, waarvan één met toegang tot een royaal dakterras;
- Tweede badkamer met toilet, douche en wastafel.
Waarom deze woning bijzonder is?
- 133 m² woonoppervlak: ruimte genoeg voor een gezin, thuiswerken of hobby’s;
- Drie grote slaapkamers, eventueel eenvoudig op te delen in meerdere kamers;
- Twee complete badkamers – ideaal voor gezinsbewoning of dubbele bewoning, cq kangoeroewoning;
- Ruim dakterras voor relaxen in de buitenlucht;
- Gewilde woonomgeving nabij winkels, horeca en voorzieningen;
- Notaris: Grafhorst te Utrecht.
Conclusie: Deze royale woning biedt enorm veel mogelijkheden en ligt op een fijne, sfeervolle locatie in Hilversum
+ Meer omschrijving
- Minder omschrijving
Op zoek naar ruimte, sfeer en een top locatie? Deze royale tussenwoning aan de Hilvertsweg in Hilversum combineert het allemaal! Met maar liefst 133 m² woonoppervlak, drie grote slaapkamers, twee badkamers en talloze indelingsmogelijkheden is dit een buitenkans voor wie royaal wil wonen op een plek waar alles binnen handbereik is.
Wonen op een gezellige plek in Hilversum
De woning ligt op een levendige, geliefde locatie vlak bij de populaire Gijsbrecht van Amstelstraat – dé winkelstraat van Hilversum met boetieks, speciaalzaken, koffietentjes en gezellige terrassen. Ook scholen, sportvoorzieningen, parken en openbaar vervoer bevinden zich in de nabije omgeving. Je woont hier in een prettige, sociale buurt waar alles op loop- of fietsafstand bereikbaar is.
Indeling
Begane grond
- Entree met hal, meterkast en trapopgang;
- Zeer royale woon-/eetkamer met L-vormige keuken;
- Trapkast en toegang tot de kelder via een luik;
- Toilet;
- Royale slaapkamer op de begane grond;
- Badkamer met douche en wastafel.
Eerste verdieping
- Overloop met extra keukenblokje;
- Kast met CV-opstelling;
- Twee zeer ruime slaapkamers, waarvan één met toegang tot een royaal dakterras;
- Tweede badkamer met toilet, douche en wastafel.
Waarom deze woning bijzonder is?
- 133 m² woonoppervlak: ruimte genoeg voor een gezin, thuiswerken of hobby’s;
- Drie grote slaapkamers, eventueel eenvoudig op te delen in meerdere kamers;
- Twee complete badkamers – ideaal voor gezinsbewoning of dubbele bewoning, cq kangoeroewoning;
- Ruim dakterras voor relaxen in de buitenlucht;
- Gewilde woonomgeving nabij winkels, horeca en voorzieningen;
- Notaris: Grafhorst te Utrecht.
Conclusie: Deze royale woning biedt enorm veel mogelijkheden en ligt op een fijne, sfeervolle locatie in Hilversum
Kenmerken
| Bouwjaar | 1925 |
|---|---|
| Bouwvorm | bestaande bouw |
| Woonoppervlakte | 133 |
| Aantal kamers | 4 |
Overdracht
| Status | Beschikbaar |
|---|---|
| Prijs | € 399.500 Kosten koper |
| Aanvaarding | in overleg |
Bouw vorm
| Bouwjaar | 1925 |
|---|---|
| Bouwvorm | bestaande bouw |
Indeling
| Woonoppervlakte | 133 |
|---|---|
| Inhoud | 506 |
| Aantal kamers | 4 |
| Slaapkamers | 3 |
| Etages | 3 |
Tuin
| Tuin | Voortuin |
|---|---|
| Hoofdtuin | 5 |
Parking
| Garage soort | Geen garage |
|---|
In de buurt
Wij kennen werkelijk iedere straat en elke hoek van Hilversum. Benieuwd wat een buurt je te bieden heeft? We kunnen je er alles over vertellen!



Plan een bezichtiging
voor: Hilvertsweg 157
Bel ons op 035 625 20 70 of WhatsApp via 0356252070 voor direct contact. Of laat jouw gegevens achter en wij nemen zo snel mogelijk contact met je op.


