Terug naar resultatenHilvertsweg 92
Hilvertsweg 92
1214 JK HILVERSUM
€ 565.000 k.k.
Omschrijving
Op een gewilde locatie in Hilversum-Zuid, om de hoek van de gezellige winkelstraat ‘De Gijsbrecht’, bieden wij aan deze uitgebouwde tussenwoning met tuin en grote schuur. Het huis is luxe verbouwd en beschikt o.a. over een lichte open keuken, airconditioning, vloerverwarming en volledig moderne elektra en leidingwerk. De woning ligt tevens op 5 minuten fietsen van het centrum en de Hoorneboegse heide. Ook uitvalswegen richting Amsterdam en Utrecht bevinden zich in de nabijheid. Zowel met de trein als auto bent u binnen 20-30 minuten in hartje Utrecht of Amsterdam.
INDELING
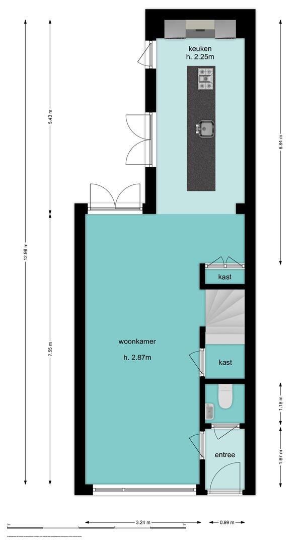
Begane grond: entree, hal met recent vernieuwd modern toilet v.v. fontein, zeer aansprekende ruime woon-/eetkamer met hoge plafonds en aan de voorzijde glas in lood en shutters, vaste kast met moderne groepenkast en bergruimte, de openslaande deuren bieden toegang tot de tuin die gelegen is op de avondzon met een fijne afgewerkte berging voorzien van wasmachine- en- drogeraansluiting en een tweede fietsenberging. Aan de achterzijde is de woning uitgebouwd; met open keuken voorzien van kook-/spoeleiland voorzien van bar, vaatwasser, gaskookplaat, afzuigkap en legio lades. De achterwand biedt plaats aan een koelkast, vriezer, combioven/magnetron en een sfeervolle gashaard met afstandsbediening. Onder de keuken is een ruime kelder aanwezig met bergruimte en close in boiler.
Verdieping: overloop, 1e slaapkamer met ingebouwde kastenwand aan de voorzijde en recent vernieuwde badkamer met inloopdouche, wastafelmeubel, toilet en vloerverwarming. Aan de achterzijde een tweede ruime slaapkamer met kastenwand en een tweede badkamer met douche, toilet en wastafelmeubel, eveneens voorzien van spiegel met wandkranen.
Beide slaapkamers zijn voorzien van een airconditioning!
TUIN
De achtertuin is zowel via de openslaande deuren als via de keukendeur toegankelijk. In de onderhoudsvriendelijk aangelegde achtertuin is plaats voor een eettafel en een loungebank. Achterin de tuin staat een dubbele stenen schuur met bergruimte v.v. aansluitingen voor de wasmachine en droger en een tweede schuur voor fietsen en kliko’s. Vanuit deze schuur is het achtergelegen parkeerterrein met recht van overpad bereikbaar.
Bijzonderheden:
- Instapklaar en op een zeer leuke en gewilde locatie;
- Airconditioning in beide slaapkamers;
- Vloerverwarming begane grond;
- Gunstige locatie nabij winkels, scholen, uitvalswegen en natuurgebied;
- Gedeelte platte dakbedekking voorzijde vervangen 2024;
- Pannendak nagelopen in 2021 en gerepareerd en herschikt waar nodig;
- Volledig voorzien van dubbele beglazing;
- C.V. ketel Remeha Tzerra CW5 2023.
+ Meer omschrijving
- Minder omschrijving
INDELING
Begane grond: entree, hal met recent vernieuwd modern toilet v.v. fontein, zeer aansprekende ruime woon-/eetkamer met hoge plafonds en aan de voorzijde glas in lood en shutters, vaste kast met moderne groepenkast en bergruimte, de openslaande deuren bieden toegang tot de tuin die gelegen is op de avondzon met een fijne afgewerkte berging voorzien van wasmachine- en- drogeraansluiting en een tweede fietsenberging. Aan de achterzijde is de woning uitgebouwd; met open keuken voorzien van kook-/spoeleiland voorzien van bar, vaatwasser, gaskookplaat, afzuigkap en legio lades. De achterwand biedt plaats aan een koelkast, vriezer, combioven/magnetron en een sfeervolle gashaard met afstandsbediening. Onder de keuken is een ruime kelder aanwezig met bergruimte en close in boiler.
Verdieping: overloop, 1e slaapkamer met ingebouwde kastenwand aan de voorzijde en recent vernieuwde badkamer met inloopdouche, wastafelmeubel, toilet en vloerverwarming. Aan de achterzijde een tweede ruime slaapkamer met kastenwand en een tweede badkamer met douche, toilet en wastafelmeubel, eveneens voorzien van spiegel met wandkranen.
Beide slaapkamers zijn voorzien van een airconditioning!
TUIN
De achtertuin is zowel via de openslaande deuren als via de keukendeur toegankelijk. In de onderhoudsvriendelijk aangelegde achtertuin is plaats voor een eettafel en een loungebank. Achterin de tuin staat een dubbele stenen schuur met bergruimte v.v. aansluitingen voor de wasmachine en droger en een tweede schuur voor fietsen en kliko’s. Vanuit deze schuur is het achtergelegen parkeerterrein met recht van overpad bereikbaar.
Bijzonderheden:
- Instapklaar en op een zeer leuke en gewilde locatie;
- Airconditioning in beide slaapkamers;
- Vloerverwarming begane grond;
- Gunstige locatie nabij winkels, scholen, uitvalswegen en natuurgebied;
- Gedeelte platte dakbedekking voorzijde vervangen 2024;
- Pannendak nagelopen in 2021 en gerepareerd en herschikt waar nodig;
- Volledig voorzien van dubbele beglazing;
- C.V. ketel Remeha Tzerra CW5 2023.
Kenmerken
| Bouwjaar | 1904 |
|---|---|
| Bouwvorm | bestaande bouw |
| Woonoppervlakte | 81 |
| Aantal kamers | 3 |
Overdracht
| Status | Onder bod |
|---|---|
| Prijs | € 565.000 Kosten koper |
| Aanvaarding | in overleg |
Bouw vorm
| Bouwjaar | 1904 |
|---|---|
| Bouwvorm | bestaande bouw |
Indeling
| Woonoppervlakte | 81 |
|---|---|
| Inhoud | 342 |
| Aantal kamers | 3 |
| Slaapkamers | 2 |
| Etages | 4 |
Tuin
| Tuin | Achtertuin, Voortuin |
|---|---|
| Hoofdtuin oppervlakte | 38 |
| Hoofdtuin positie | West |
| Aantal bergingen | 2 |
Parking
| Garage soort | Geen garage |
|---|
In de buurt
Wij kennen werkelijk iedere straat en elke hoek van Hilversum. Benieuwd wat een buurt je te bieden heeft? We kunnen je er alles over vertellen!



Plan een bezichtiging
voor: Hilvertsweg 92
Bel ons op 035 625 20 70 of WhatsApp via 0356252070 voor direct contact. Of laat jouw gegevens achter en wij nemen zo snel mogelijk contact met je op.




