Terug naar resultatenJacob van Heemskerckstraat 10
Jacob van Heemskerckstraat 10
1212 CD HILVERSUM
€ 550.000 k.k.
Omschrijving
Aan een plein met groenstrook met vrij uitzicht in de nabijheid van bos, uitvalswegen en Station Sportpark gelegen, verrassend ruime hoekwoning (141 m²) met direct achter de woning gelegen garage en aparte berging. Deze keurige
hoekwoning heeft naast een ruime (10x10 m) op het zuidoosten gelegen achtertuin ook een zij- en voortuin en beschikt over 4 slaapkamers en een ruime onder de gehele woning gelegen multifunctioneel souterrain dat volop
mogelijkheden biedt.
Indeling: Entree/hal met meterkast en toilet, trapopgang en toegang tot het souterrain. Ruime en lichte woon- / eetkamer met open haard, zijraam voorzien van elektrisch uitvalscherm als zonwering en deur naar de achtertuin. De dichte keuken is voorzien van diverse inbouwapparatuur en een deur naar de achtertuin.
Souterrain: Vanuit de hal toegang tot het stahoge en multifunctionele souterrain met hal, separate berging met c.v.-opstelling, en royale hobby- / werkruimte van circa 29 m² met een hoogte van 2,09 meter. Deze ruimte zou uitermate geschikt kunnen zijn als gym, thuisbioscoop, kantoor / salon aan huis etc.
1e Verdieping: Overloop, 3 in grootte variërende slaapkamers waarvan de hoofdslaapkamer aan de achterzijde met airconditioning, slaapkamer aan de voorzijde met toegang tot balkon en de kleine slaapkamer aan de achterzijde met
vaste kast. De compacte, geheel betegelde badkamer is gesitueerd aan de voorzijde en voorzien van toilet, inloopdouche, wastafelmeubel met lade en aansluiting wasapparatuur.
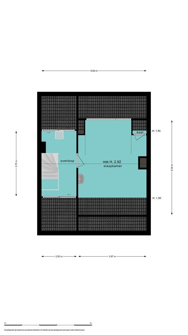
2e Verdieping: Voorzolder met dakraam en bergruimte achter knieschotten, goed bemeten 4e slaapkamer met dakkapel aan de achterzijde, bergruimte achter knieschot en wastafel.
Deze ruime en complete hoekwoning met garage heeft alles om na de benodigde aanpassingen als een heerlijk gezins(t)huis dienst te doen!
Bijzonderheden:
- Gebruiksoppervlak 141 m²;
- Overige inpandige ruimte (hal en berging souterrain) 15 m²;
- Externe bergruimte 25 m² (incl. garage);
- Garage maakt deel uit van een coöperatieve vereniging;
- Elektrische zonwering/terrasoverkapping inclusief heaters over de gehele breedte begane grond achterzijde. Ook aan de voorzijde is een elektrisch uitvalscherm als zonwering;
- Elektrische screens 1e verdieping achterzijde;
- Geheel voorzien van dubbele beglazing;
- Energielabel D.
+ Meer omschrijving
- Minder omschrijving
hoekwoning heeft naast een ruime (10x10 m) op het zuidoosten gelegen achtertuin ook een zij- en voortuin en beschikt over 4 slaapkamers en een ruime onder de gehele woning gelegen multifunctioneel souterrain dat volop
mogelijkheden biedt.
Indeling: Entree/hal met meterkast en toilet, trapopgang en toegang tot het souterrain. Ruime en lichte woon- / eetkamer met open haard, zijraam voorzien van elektrisch uitvalscherm als zonwering en deur naar de achtertuin. De dichte keuken is voorzien van diverse inbouwapparatuur en een deur naar de achtertuin.
Souterrain: Vanuit de hal toegang tot het stahoge en multifunctionele souterrain met hal, separate berging met c.v.-opstelling, en royale hobby- / werkruimte van circa 29 m² met een hoogte van 2,09 meter. Deze ruimte zou uitermate geschikt kunnen zijn als gym, thuisbioscoop, kantoor / salon aan huis etc.
1e Verdieping: Overloop, 3 in grootte variërende slaapkamers waarvan de hoofdslaapkamer aan de achterzijde met airconditioning, slaapkamer aan de voorzijde met toegang tot balkon en de kleine slaapkamer aan de achterzijde met
vaste kast. De compacte, geheel betegelde badkamer is gesitueerd aan de voorzijde en voorzien van toilet, inloopdouche, wastafelmeubel met lade en aansluiting wasapparatuur.
2e Verdieping: Voorzolder met dakraam en bergruimte achter knieschotten, goed bemeten 4e slaapkamer met dakkapel aan de achterzijde, bergruimte achter knieschot en wastafel.
Deze ruime en complete hoekwoning met garage heeft alles om na de benodigde aanpassingen als een heerlijk gezins(t)huis dienst te doen!
Bijzonderheden:
- Gebruiksoppervlak 141 m²;
- Overige inpandige ruimte (hal en berging souterrain) 15 m²;
- Externe bergruimte 25 m² (incl. garage);
- Garage maakt deel uit van een coöperatieve vereniging;
- Elektrische zonwering/terrasoverkapping inclusief heaters over de gehele breedte begane grond achterzijde. Ook aan de voorzijde is een elektrisch uitvalscherm als zonwering;
- Elektrische screens 1e verdieping achterzijde;
- Geheel voorzien van dubbele beglazing;
- Energielabel D.
Kenmerken
| Bouwjaar | 1962 |
|---|---|
| Bouwvorm | bestaande bouw |
| Woonoppervlakte | 141 |
| Aantal kamers | 6 |
Overdracht
| Status | Onder bod |
|---|---|
| Prijs | € 550.000 Kosten koper |
| Aanvaarding | in overleg |
Bouw vorm
| Bouwjaar | 1962 |
|---|---|
| Bouwvorm | bestaande bouw |
Indeling
| Woonoppervlakte | 141 |
|---|---|
| Inhoud | 456 |
| Aantal kamers | 6 |
| Slaapkamers | 4 |
| Etages | 4 |
Tuin
| Tuin | Achtertuin, Voortuin, Zijtuin |
|---|---|
| Hoofdtuin oppervlakte | 100 |
| Hoofdtuin positie | Zuidoost |
| Aantal bergingen | 1 |
Parking
| Garage soort | Vrijstaand steen |
|---|
In de buurt
Wij kennen werkelijk iedere straat en elke hoek van Hilversum. Benieuwd wat een buurt je te bieden heeft? We kunnen je er alles over vertellen!



Plan een bezichtiging
voor: Jacob van Heemskerckstraat 10
Bel ons op 035 625 20 70 of WhatsApp via 0356252070 voor direct contact. Of laat jouw gegevens achter en wij nemen zo snel mogelijk contact met je op.




