Terug naar resultatenKamerlingh Onnesweg 122
Kamerlingh Onnesweg 122
1223 JM HILVERSUM
€ 785.000 k.k.
Omschrijving
Karaktervolle jaren ’30 hoekwoning met garage, oprit en zonnige tuin.
Aan de rustige ventweg van de Kamerlingh Onnesweg ligt deze charmante jaren ’30 hoekwoning met garage, oprit en een besloten, zonnige achtertuin. Een heerlijke plek waar het karakter van de jaren dertig samenkomt met het comfort van nu. Hier woont u rustig, maar toch op korte afstand van alle voorzieningen die het leven gemakkelijk en plezierig maken.
De woning ligt op loopafstand van de Zuiderheide, een uitgestrekt natuurgebied waar u heerlijk kunt wandelen en fietsen. Ook het gezellige centrum van Hilversum en het Centraal Station met uitstekende treinverbindingen naar Amsterdam en Utrecht bevinden zich op slechts enkele minuten afstand. Met de auto rijdt u bovendien zo de uitvalswegen op – een ideale ligging dus!
Indeling
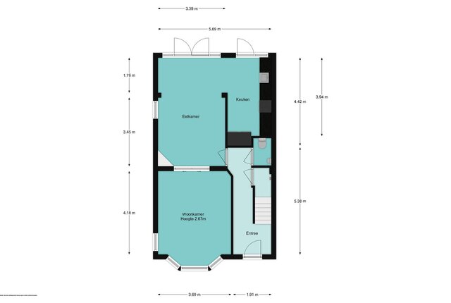
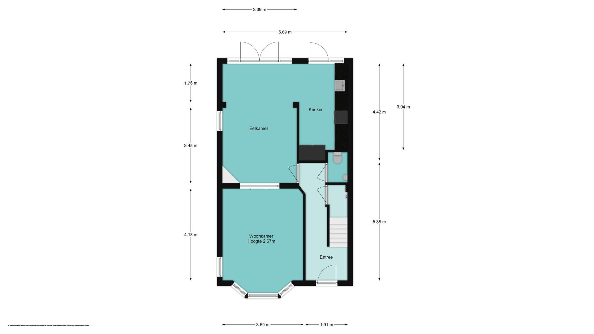
Via de entree komt u in de hal met trapopgang, trapkast met meterkast en een toilet met fontein. De royale, uitgebouwde woonkamer en suite met karakteristieke erker, glas-in-lood schuifdeuren en openslaande deuren naar de tuin biedt volop sfeer en licht. De semi-open keuken is recent vernieuwd en voorzien van moderne inbouwapparatuur – een prettige plek om te koken en te genieten.
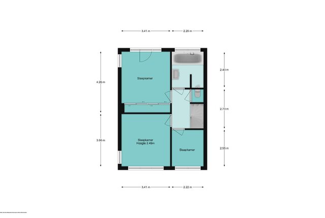
Op de eerste verdieping bevinden zich drie goed bemeten slaapkamers, waarvan één met een ruime inbouwkast. De badkamer beschikt over een bad, douche en wastafelmeubel. Daarnaast is er een separaat toilet op deze verdieping aanwezig.
De tweede verdieping verrast met een grote open ruimte met twee dakkapellen, airconditioning en een opengewerkte kap, wat zorgt voor een heerlijk ruimtelijk gevoel. Achter de knieschotten is volop bergruimte aanwezig. Momenteel is deze verdieping in gebruik als één multifunctionele ruimte, maar hier zijn eenvoudig twee slaapkamers en een extra badkamer te realiseren.
Buiten vindt u een besloten, zonnige achtertuin met veel privacy, een garage en een eigen oprit – praktisch én comfortabel.
Duurzaamheid en comfort
De woning is voorzien van Tonzon vloerisolatie en in 2024 zijn er 11 zonnepanelen geplaatst, wat bijdraagt aan een lagere energierekening en een duurzamer wooncomfort. Bovendien is in 2025 een nieuwe cv-ketel geïnstalleerd, wat zorgt voor efficiënte verwarming en betrouwbaarheid in de komende jaren.
Pluspunten op een rij:
- Karakteristieke jaren ’30 hoekwoning;
- Rustige ligging aan ventweg;
- Oprit en garage;
- Zonnige, besloten achtertuin;
- Uitgebouwde woonkamer en suite met erker en glas-in-looddetails;
- Vernieuwde keuken met inbouwapparatuur;
- Drie slaapkamers en een ruime zolder met dakkapellen;
- Airconditioning op de zolderverdieping
- Tonzon vloerisolatie;
- 11 zonnepanelen geplaatst in 2024;
- Nieuwe cv-ketel geplaatst in 2025;
- Loopafstand van natuurgebied de Zuiderheide;
- Dicht bij station, centrum en uitvalswegen.
Een echt Hilversums jaren ’30 huis waar karakter, comfort en locatie perfect samenkomen. Hier kunt u direct genieten van het goede leven!
+ Meer omschrijving
- Minder omschrijving
Aan de rustige ventweg van de Kamerlingh Onnesweg ligt deze charmante jaren ’30 hoekwoning met garage, oprit en een besloten, zonnige achtertuin. Een heerlijke plek waar het karakter van de jaren dertig samenkomt met het comfort van nu. Hier woont u rustig, maar toch op korte afstand van alle voorzieningen die het leven gemakkelijk en plezierig maken.
De woning ligt op loopafstand van de Zuiderheide, een uitgestrekt natuurgebied waar u heerlijk kunt wandelen en fietsen. Ook het gezellige centrum van Hilversum en het Centraal Station met uitstekende treinverbindingen naar Amsterdam en Utrecht bevinden zich op slechts enkele minuten afstand. Met de auto rijdt u bovendien zo de uitvalswegen op – een ideale ligging dus!
Indeling
Via de entree komt u in de hal met trapopgang, trapkast met meterkast en een toilet met fontein. De royale, uitgebouwde woonkamer en suite met karakteristieke erker, glas-in-lood schuifdeuren en openslaande deuren naar de tuin biedt volop sfeer en licht. De semi-open keuken is recent vernieuwd en voorzien van moderne inbouwapparatuur – een prettige plek om te koken en te genieten.
Op de eerste verdieping bevinden zich drie goed bemeten slaapkamers, waarvan één met een ruime inbouwkast. De badkamer beschikt over een bad, douche en wastafelmeubel. Daarnaast is er een separaat toilet op deze verdieping aanwezig.
De tweede verdieping verrast met een grote open ruimte met twee dakkapellen, airconditioning en een opengewerkte kap, wat zorgt voor een heerlijk ruimtelijk gevoel. Achter de knieschotten is volop bergruimte aanwezig. Momenteel is deze verdieping in gebruik als één multifunctionele ruimte, maar hier zijn eenvoudig twee slaapkamers en een extra badkamer te realiseren.
Buiten vindt u een besloten, zonnige achtertuin met veel privacy, een garage en een eigen oprit – praktisch én comfortabel.
Duurzaamheid en comfort
De woning is voorzien van Tonzon vloerisolatie en in 2024 zijn er 11 zonnepanelen geplaatst, wat bijdraagt aan een lagere energierekening en een duurzamer wooncomfort. Bovendien is in 2025 een nieuwe cv-ketel geïnstalleerd, wat zorgt voor efficiënte verwarming en betrouwbaarheid in de komende jaren.
Pluspunten op een rij:
- Karakteristieke jaren ’30 hoekwoning;
- Rustige ligging aan ventweg;
- Oprit en garage;
- Zonnige, besloten achtertuin;
- Uitgebouwde woonkamer en suite met erker en glas-in-looddetails;
- Vernieuwde keuken met inbouwapparatuur;
- Drie slaapkamers en een ruime zolder met dakkapellen;
- Airconditioning op de zolderverdieping
- Tonzon vloerisolatie;
- 11 zonnepanelen geplaatst in 2024;
- Nieuwe cv-ketel geplaatst in 2025;
- Loopafstand van natuurgebied de Zuiderheide;
- Dicht bij station, centrum en uitvalswegen.
Een echt Hilversums jaren ’30 huis waar karakter, comfort en locatie perfect samenkomen. Hier kunt u direct genieten van het goede leven!
Kenmerken
| Bouwjaar | 1933 |
|---|---|
| Bouwvorm | bestaande bouw |
| Woonoppervlakte | 128 |
| Aantal kamers | 5 |
Overdracht
| Status | Beschikbaar |
|---|---|
| Prijs | € 785.000 Kosten koper |
| Aanvaarding | in overleg |
Bouw vorm
| Bouwjaar | 1933 |
|---|---|
| Bouwvorm | bestaande bouw |
Indeling
| Woonoppervlakte | 128 |
|---|---|
| Inhoud | 447 |
| Aantal kamers | 5 |
| Slaapkamers | 3 |
| Etages | 3 |
Tuin
| Tuin | Achtertuin, Voortuin |
|---|---|
| Hoofdtuin oppervlakte | 30 |
| Hoofdtuin positie | Zuidoost |
Parking
| Garage soort | Vrijstaand steen |
|---|
In de buurt
Wij kennen werkelijk iedere straat en elke hoek van Hilversum. Benieuwd wat een buurt je te bieden heeft? We kunnen je er alles over vertellen!



Plan een bezichtiging
voor: Kamerlingh Onnesweg 122
Bel ons op 035 625 20 70 of WhatsApp via 0356252070 voor direct contact. Of laat jouw gegevens achter en wij nemen zo snel mogelijk contact met je op.



