Terug naar resultatenKamerlingh Onnesweg 140
Kamerlingh Onnesweg 140
1223 JN HILVERSUM
€ 635.000 k.k.
Omschrijving
Karakteristieke, goed bemeten middenwoning uit de jaren dertig met een voor- en zonnige achtertuin op het zuidoosten voorzien van een berging en achterom. Deze woning met 5 slaapkamers is rustig gelegen aan de ventweg van de Kamerlingh Onnesweg in een gewilde, kindvriendelijke buurt nabij diverse (internationale) scholen, de uitvalswegen naar o.a. Amsterdam en Utrecht, het Gooisch Natuurreservaat en het centrum van Hilversum met vele voorzieningen zoals restaurants, bioscoop, bus- en treinstation op fietsafstand.
Indeling: vestibule met fraaie originele wandtegels, garderobe en meterkast. Hal met trapopgang, trapkast en toilet. Woon-/eetkamer en-suite met erker aan de voorzijde, glas-in-lood details, 2 originele natuurstenen schouwen, en openslaande deuren naar de achtertuin. Open en complete keuken in U-opstelling met granieten aanrechtblad en inbouwapparatuur. De begane grond verdieping is voorzien van een fraaie houten vloerafwerking.
1e verdieping: overloop, ruime badkamer aan de voorzijde met 2e toilet, douche, wastafelmeubel, ligbad en handdoekradiator. Hoofdslaapkamer aan de voorzijde (circa 16 m2), 2e goed bemeten kamer aan de achterzijde (circa 10 m2) met vaste kast, 3e kleinere kamer (circa 5 m2) tevens aan de achterzijde. Ook deze verdieping is voorzien van een parket vloer.
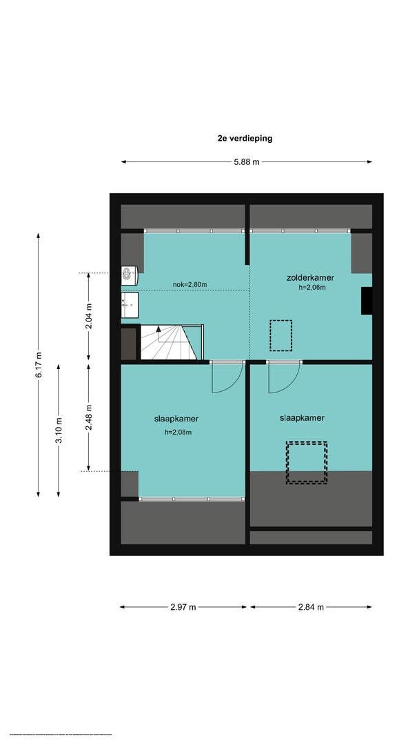
2e verdieping: ruime voorzolder met dakkapel aan de achterzijde, aansluiting wasapparatuur, wastafelmeubel, c.v.-opstelling (Nefit Proline 2016) en vlizotrap naar bergvliering. 2 zolderkamers aan de voorzijde waarvan 1 met dakkapel en 1 met dakraam. Deze ruime zolderverdieping biedt volop mogelijkheden tot indeling met meerdere slaapkamers en/of 2e badkamer.
Kortom, een heerlijk instap-klaar huis met 5 slaapkamer, boordevol karakter gelegen in een zeer gewilde wijk!
Bijzonderheden:
- Gebruiksoppervlakte wonen 126 m²;
- Perceeloppervlak 150 m2;
- 5 slaapkamers;
- Goede voor- en achtertuin;
- Snelle ontsluiting naar Amersfoort, Utrecht en Amsterdam;
- Natuurreservaat Zuiderheide bijna als achtertuin;
- Gevel- en dakisolatie, dubbele beglazing en 2 zonnepanelen;
- Energielabel B.
+ Meer omschrijving
- Minder omschrijving
Indeling: vestibule met fraaie originele wandtegels, garderobe en meterkast. Hal met trapopgang, trapkast en toilet. Woon-/eetkamer en-suite met erker aan de voorzijde, glas-in-lood details, 2 originele natuurstenen schouwen, en openslaande deuren naar de achtertuin. Open en complete keuken in U-opstelling met granieten aanrechtblad en inbouwapparatuur. De begane grond verdieping is voorzien van een fraaie houten vloerafwerking.
1e verdieping: overloop, ruime badkamer aan de voorzijde met 2e toilet, douche, wastafelmeubel, ligbad en handdoekradiator. Hoofdslaapkamer aan de voorzijde (circa 16 m2), 2e goed bemeten kamer aan de achterzijde (circa 10 m2) met vaste kast, 3e kleinere kamer (circa 5 m2) tevens aan de achterzijde. Ook deze verdieping is voorzien van een parket vloer.
2e verdieping: ruime voorzolder met dakkapel aan de achterzijde, aansluiting wasapparatuur, wastafelmeubel, c.v.-opstelling (Nefit Proline 2016) en vlizotrap naar bergvliering. 2 zolderkamers aan de voorzijde waarvan 1 met dakkapel en 1 met dakraam. Deze ruime zolderverdieping biedt volop mogelijkheden tot indeling met meerdere slaapkamers en/of 2e badkamer.
Kortom, een heerlijk instap-klaar huis met 5 slaapkamer, boordevol karakter gelegen in een zeer gewilde wijk!
Bijzonderheden:
- Gebruiksoppervlakte wonen 126 m²;
- Perceeloppervlak 150 m2;
- 5 slaapkamers;
- Goede voor- en achtertuin;
- Snelle ontsluiting naar Amersfoort, Utrecht en Amsterdam;
- Natuurreservaat Zuiderheide bijna als achtertuin;
- Gevel- en dakisolatie, dubbele beglazing en 2 zonnepanelen;
- Energielabel B.
Kenmerken
| Bouwjaar | 1933 |
|---|---|
| Bouwvorm | bestaande bouw |
| Woonoppervlakte | 126 |
| Aantal kamers | 7 |
Overdracht
| Status | Verkocht onder voorbehoud |
|---|---|
| Prijs | € 635.000 Kosten koper |
| Aanvaarding | in overleg |
Bouw vorm
| Bouwjaar | 1933 |
|---|---|
| Bouwvorm | bestaande bouw |
Indeling
| Woonoppervlakte | 126 |
|---|---|
| Inhoud | 427 |
| Aantal kamers | 7 |
| Slaapkamers | 5 |
| Etages | 3 |
Tuin
| Tuin | Achtertuin, Voortuin |
|---|---|
| Hoofdtuin oppervlakte | 54 |
| Hoofdtuin positie | Zuidoost |
| Aantal bergingen | 1 |
Parking
| Garage soort | Geen garage |
|---|
In de buurt
Wij kennen werkelijk iedere straat en elke hoek van Hilversum. Benieuwd wat een buurt je te bieden heeft? We kunnen je er alles over vertellen!






