Terug naar resultatenKoningshof 1 G
Koningshof 1 G
1211 MG HILVERSUM
€ 275.000 k.k.
Omschrijving
Aan de rand van het centrum en op slechts vijf minuten van de gezellige Gijsbrecht van Amstelstraat ligt deze leuke jaren ‘30 starterswoning. De woning beschikt over vrij uitzicht over de straat, een eigen balkon, is volledig voorzien van dubbele beglazing, heeft energielabel C en beschikt over een privéberging. Een mooie kans om te wonen op een ideale en levendige locatie!
Indeling:
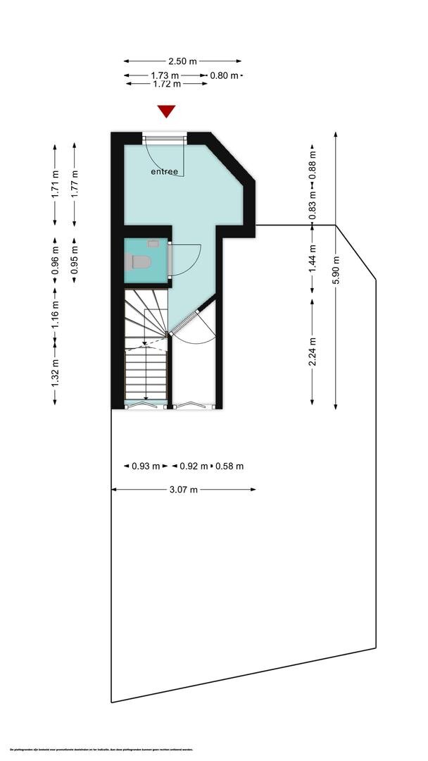
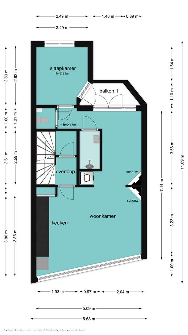
Entree, vestibule met meterkast (voorzien van tussenmeters), centrale overloop, lichte voormalige kamer en suite die is ingericht als woon- en eetkamer met open keuken. De keuken is voorzien van een koelkast, gaskookplaat en vaatwasser. In de woonruimte bevindt zich tevens een separate aansluiting voor de wasmachine. Via de openslaande deuren bereikt u het balkon.
De woning beschikt verder over een badkamer met douche en wastafel, een separaat toilet en een slaapkamer met veel natuurlijke lichtinval. De slaapkamer is voorzien van een nieuw kunststof kozijn en een deur naar het balkon.
Bijzonderheden:
- Centrale ligging op gezellige locatie;
- Diverse winkels met o.a. een Albert Heijn en diverse leuke restaurantjes om de hoek;
- Volledig voorzien van dubbele beglazing;
- Energielabel C;
- VVE aanwezig;
- Servicekosten € 225,- per maand (inclusief voorschot stookkosten € 150,- p.m.)
+ Meer omschrijving
- Minder omschrijving
Indeling:
Entree, vestibule met meterkast (voorzien van tussenmeters), centrale overloop, lichte voormalige kamer en suite die is ingericht als woon- en eetkamer met open keuken. De keuken is voorzien van een koelkast, gaskookplaat en vaatwasser. In de woonruimte bevindt zich tevens een separate aansluiting voor de wasmachine. Via de openslaande deuren bereikt u het balkon.
De woning beschikt verder over een badkamer met douche en wastafel, een separaat toilet en een slaapkamer met veel natuurlijke lichtinval. De slaapkamer is voorzien van een nieuw kunststof kozijn en een deur naar het balkon.
Bijzonderheden:
- Centrale ligging op gezellige locatie;
- Diverse winkels met o.a. een Albert Heijn en diverse leuke restaurantjes om de hoek;
- Volledig voorzien van dubbele beglazing;
- Energielabel C;
- VVE aanwezig;
- Servicekosten € 225,- per maand (inclusief voorschot stookkosten € 150,- p.m.)
Kenmerken
| Bouwjaar | 1932 |
|---|---|
| Bouwvorm | bestaande bouw |
| Woonoppervlakte | 45 |
| Aantal kamers | 2 |
Overdracht
| Status | Verkocht onder voorbehoud |
|---|---|
| Prijs | € 275.000 Kosten koper |
| Aanvaarding | in overleg |
Bouw vorm
| Bouwjaar | 1932 |
|---|---|
| Bouwvorm | bestaande bouw |
Indeling
| Woonoppervlakte | 45 |
|---|---|
| Inhoud | 164 |
| Aantal kamers | 2 |
| Slaapkamers | 1 |
| Etages | 1 |
Tuin
| Tuin | Geen tuin |
|---|---|
| Aantal bergingen | 1 |
Parking
| Garage soort | Geen garage |
|---|
In de buurt
Wij kennen werkelijk iedere straat en elke hoek van Hilversum. Benieuwd wat een buurt je te bieden heeft? We kunnen je er alles over vertellen!




