Terug naar resultatenKoningsstraat 146
Koningsstraat 146
1211 NS HILVERSUM
€ 369.500 k.k.
Omschrijving
Heb je 2 rechterhanden en wil je graag je eigen wensen in een woning aanbrengen?
Kom dan snel kijken bij deze middenwoning met achtertuin, ruim balkon en stenen schuur aan de Koningsstraat 146.
De woning ligt aan de rand van het centrum van Hilversum en op loopafstand van de gezellige winkelstraat Gijsbrecht van Amstelstraat. De Koningsstraat ligt op een centrale locatie, met in de nabije omgeving (internationale)scholen, kinderopvang, winkels en sportclubs, net als horeca en de prachtige Zuiderheide. Bewoners kunnen met vergunning in de straat parkeren. Het centraal station ligt op 5 fietsminuten afstand.
Indeling: entree met garderobe, woonkamer met open haard en houten vloer, trapopgang naar de verdieping.
De keuken is eenvoudig uitgevoerd met gaskookplaat, een wasmachine-aansluiting en de c.v.-opstelling. Tevens is vanuit hier toegang tot de kelderruimte.
De achtertuin met stenen schuur is besloten en is via een achterom bereikbaar via de 3e Oosterstraat.
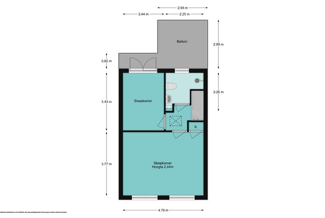
Verdieping: overloop, royale slaapkamer met vaste kast aan de voorzijde. 2e kleinere slaapkamer met openslaande deuren naar het balkon aan de achterzijde.
De badkamer is voorzien van een douche, wastafel en toilet.
De vliering is deels bevloerd en kan worden gebruikt als bergruimte.
Bijzonderheden:
- Grotendeels voorzien van dubbele beglazing;
- Energielabel F, door het plaatsen van bijvoorbeeld een nieuwe c.v.-ketel kan dit waarschijnlijk een D-label worden;
- Woonoppervlakte 77 m²;
- Notaris Van Limburg Stirum: Koninginneweg 2, Hilversum.
+ Meer omschrijving
- Minder omschrijving
Kom dan snel kijken bij deze middenwoning met achtertuin, ruim balkon en stenen schuur aan de Koningsstraat 146.
De woning ligt aan de rand van het centrum van Hilversum en op loopafstand van de gezellige winkelstraat Gijsbrecht van Amstelstraat. De Koningsstraat ligt op een centrale locatie, met in de nabije omgeving (internationale)scholen, kinderopvang, winkels en sportclubs, net als horeca en de prachtige Zuiderheide. Bewoners kunnen met vergunning in de straat parkeren. Het centraal station ligt op 5 fietsminuten afstand.
Indeling: entree met garderobe, woonkamer met open haard en houten vloer, trapopgang naar de verdieping.
De keuken is eenvoudig uitgevoerd met gaskookplaat, een wasmachine-aansluiting en de c.v.-opstelling. Tevens is vanuit hier toegang tot de kelderruimte.
De achtertuin met stenen schuur is besloten en is via een achterom bereikbaar via de 3e Oosterstraat.
Verdieping: overloop, royale slaapkamer met vaste kast aan de voorzijde. 2e kleinere slaapkamer met openslaande deuren naar het balkon aan de achterzijde.
De badkamer is voorzien van een douche, wastafel en toilet.
De vliering is deels bevloerd en kan worden gebruikt als bergruimte.
Bijzonderheden:
- Grotendeels voorzien van dubbele beglazing;
- Energielabel F, door het plaatsen van bijvoorbeeld een nieuwe c.v.-ketel kan dit waarschijnlijk een D-label worden;
- Woonoppervlakte 77 m²;
- Notaris Van Limburg Stirum: Koninginneweg 2, Hilversum.
Kenmerken
| Bouwjaar | 1896 |
|---|---|
| Bouwvorm | bestaande bouw |
| Woonoppervlakte | 77 |
| Aantal kamers | 3 |
Overdracht
| Status | Verkocht onder voorbehoud |
|---|---|
| Prijs | € 369.500 Kosten koper |
| Aanvaarding | in overleg |
Bouw vorm
| Bouwjaar | 1896 |
|---|---|
| Bouwvorm | bestaande bouw |
Indeling
| Woonoppervlakte | 77 |
|---|---|
| Inhoud | 291 |
| Aantal kamers | 3 |
| Slaapkamers | 2 |
| Etages | 4 |
Tuin
| Tuin | Patio atrium |
|---|---|
| Hoofdtuin oppervlakte | 23 |
| Hoofdtuin positie | Noordwest |
| Aantal bergingen | 1 |
Parking
| Garage soort | Geen garage |
|---|
In de buurt
Wij kennen werkelijk iedere straat en elke hoek van Hilversum. Benieuwd wat een buurt je te bieden heeft? We kunnen je er alles over vertellen!






