Terug naar resultatenKortenhoefsedijk 144
Kortenhoefsedijk 144
1241 LX KORTENHOEF
€ 995.000 k.k.
Omschrijving
Vrijstaand, levensloopbestendig en karakteristiek wonen maar wel met modern (bouwjaar 1996) comfort aan de pittoreske Kortenhoefsedijk.
Midden in het waterrijke en groene Kortenhoef, aan de prachtige Kortenhoefsedijk staat deze moderne vrijstaande woning. Een heerlijke plek waar comfort, rust en buitenleven samenkomen. De woning beschikt over een tuin rondom, een ruime oprit voor meerdere auto’s en een garage, geschikt voor opslag, als hobbyruimte en voor het stallen van fietsen. Met een slaap- en badkamer op de begane grond is deze woning ideaal voor wie (op termijn) gelijkvloers wil wonen, zonder concessies te hoeven doen aan praktische ruimte en tuin.
Indeling:
Entree/hal met meterkast, toilet met fonteintje en trapopgang naar de verdieping. Vanuit de hal is er toegang tot de lichte woon-/eetkamer, voorzien van een parketvloer, een gashaard en een serre aan de zijkant met openslaande deuren naar de tuin. Deze sfeervolle leefruimte heeft grote raampartijen, waardoor er veel daglicht binnenvalt, biedt goed zicht op de tuin en is open, maar toch goed indeelbaar in separate eet-, zit-, lees- en/of werkkamer. Aan de achterzijde is toegang tot de separate slaapkamer (circa 16 m2), met openslaande deuren naar de zijtuin en een deur naar de badkamer, uitgerust met douche, tweede toilet en wastafelmeubel.
De hal aan de voorzijde biedt tevens toegang tot de dichte keuken, voorzien van dubbele spoelbak, koelkast, gaskookplaat, afzuigkap en vaatwasser. Ook is er een deur naar de bijkeuken aanwezig, waar de wasmachine en droger opgesteld kunnen worden. Tevens is er een spoelbak en een ruimte met de cv-opstelling. Vanuit deze bijkeuken is er direct toegang via de zijdeur naar de oprit/tuin.
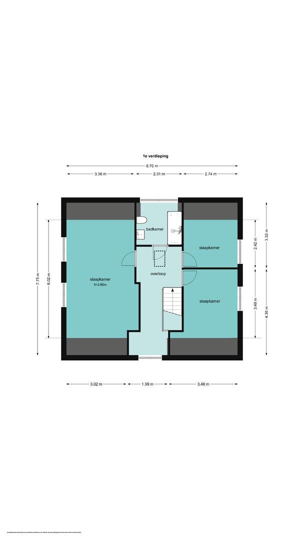
Verdieping:
De overloop biedt toegang tot drie slaapkamers, waaronder een royale slaapkamer (circa 25 m2), ideaal als hoofdslaapkamer en twee slaapkamers respectievelijk circa 12 m2 en 9 m2 groot, beide met voldoende licht en ruimte. De badkamer is uitgerust met een ligbad/douche, wastafel en derde toilet.
Hier wonen in Kortenhoef betekent landelijk wonen in een rustige omgeving, omringd door de Kortenhoefse- en Loosdrechtse plassen. Er zijn jachthavens in de buurt met watersport- en recreatiemogelijkheden. Daarnaast is de omgeving bosrijk; denk aan de ‘s-Gravelandse buitenplaatsen, waaronder Schaep en Burgh, Trompenburgh en Boekensteyn, met wandel- en fietsmogelijkheden. Het gezellige dorp Kortenhoef heeft een uitgebreid winkelcentrum met onder andere twee supermarkten, ook zijn er basisscholen, sportfaciliteiten en een speeltuin aanwezig. Hilversum ligt op fietsafstand en Amsterdam en Utrecht zijn binnen 30 minuten met de auto bereikbaar. Wilt u met het openbaar vervoer, dan is er een busverbinding vanaf winkelcentrum Kortenhoef naar Hilversum. Reist u met de trein, dan kunt u onder andere opstappen bij NS-station Hilversum of NS-station Bussum-Zuid (gratis parkeren).
Bijzonderheden:
- Gebruiksoppervlakte wonen 163 m2;
- Perceeloppervlak 562 m2;
- Levensloopbestendig;
- Oprit voor meerdere auto’s en garage;
- Tuin rondom;
- Bouwjaar 1996, goed onderhouden en geïsoleerd
- Energielabel C
+ Meer omschrijving
- Minder omschrijving
Midden in het waterrijke en groene Kortenhoef, aan de prachtige Kortenhoefsedijk staat deze moderne vrijstaande woning. Een heerlijke plek waar comfort, rust en buitenleven samenkomen. De woning beschikt over een tuin rondom, een ruime oprit voor meerdere auto’s en een garage, geschikt voor opslag, als hobbyruimte en voor het stallen van fietsen. Met een slaap- en badkamer op de begane grond is deze woning ideaal voor wie (op termijn) gelijkvloers wil wonen, zonder concessies te hoeven doen aan praktische ruimte en tuin.
Indeling:
Entree/hal met meterkast, toilet met fonteintje en trapopgang naar de verdieping. Vanuit de hal is er toegang tot de lichte woon-/eetkamer, voorzien van een parketvloer, een gashaard en een serre aan de zijkant met openslaande deuren naar de tuin. Deze sfeervolle leefruimte heeft grote raampartijen, waardoor er veel daglicht binnenvalt, biedt goed zicht op de tuin en is open, maar toch goed indeelbaar in separate eet-, zit-, lees- en/of werkkamer. Aan de achterzijde is toegang tot de separate slaapkamer (circa 16 m2), met openslaande deuren naar de zijtuin en een deur naar de badkamer, uitgerust met douche, tweede toilet en wastafelmeubel.
De hal aan de voorzijde biedt tevens toegang tot de dichte keuken, voorzien van dubbele spoelbak, koelkast, gaskookplaat, afzuigkap en vaatwasser. Ook is er een deur naar de bijkeuken aanwezig, waar de wasmachine en droger opgesteld kunnen worden. Tevens is er een spoelbak en een ruimte met de cv-opstelling. Vanuit deze bijkeuken is er direct toegang via de zijdeur naar de oprit/tuin.
Verdieping:
De overloop biedt toegang tot drie slaapkamers, waaronder een royale slaapkamer (circa 25 m2), ideaal als hoofdslaapkamer en twee slaapkamers respectievelijk circa 12 m2 en 9 m2 groot, beide met voldoende licht en ruimte. De badkamer is uitgerust met een ligbad/douche, wastafel en derde toilet.
Hier wonen in Kortenhoef betekent landelijk wonen in een rustige omgeving, omringd door de Kortenhoefse- en Loosdrechtse plassen. Er zijn jachthavens in de buurt met watersport- en recreatiemogelijkheden. Daarnaast is de omgeving bosrijk; denk aan de ‘s-Gravelandse buitenplaatsen, waaronder Schaep en Burgh, Trompenburgh en Boekensteyn, met wandel- en fietsmogelijkheden. Het gezellige dorp Kortenhoef heeft een uitgebreid winkelcentrum met onder andere twee supermarkten, ook zijn er basisscholen, sportfaciliteiten en een speeltuin aanwezig. Hilversum ligt op fietsafstand en Amsterdam en Utrecht zijn binnen 30 minuten met de auto bereikbaar. Wilt u met het openbaar vervoer, dan is er een busverbinding vanaf winkelcentrum Kortenhoef naar Hilversum. Reist u met de trein, dan kunt u onder andere opstappen bij NS-station Hilversum of NS-station Bussum-Zuid (gratis parkeren).
Bijzonderheden:
- Gebruiksoppervlakte wonen 163 m2;
- Perceeloppervlak 562 m2;
- Levensloopbestendig;
- Oprit voor meerdere auto’s en garage;
- Tuin rondom;
- Bouwjaar 1996, goed onderhouden en geïsoleerd
- Energielabel C
Kenmerken
| Bouwjaar | 1996 |
|---|---|
| Bouwvorm | bestaande bouw |
| Woonoppervlakte | 163 |
| Aantal kamers | 5 |
Overdracht
| Status | Beschikbaar |
|---|---|
| Prijs | € 995.000 Kosten koper |
| Aanvaarding | in overleg |
Bouw vorm
| Bouwjaar | 1996 |
|---|---|
| Bouwvorm | bestaande bouw |
Indeling
| Woonoppervlakte | 163 |
|---|---|
| Inhoud | 582 |
| Aantal kamers | 5 |
| Slaapkamers | 4 |
| Etages | 2 |
Tuin
| Tuin | Tuin rondom |
|---|
Parking
| Garage soort | Vrijstaand steen |
|---|
In de buurt
Wij kennen werkelijk iedere straat en elke hoek van Hilversum. Benieuwd wat een buurt je te bieden heeft? We kunnen je er alles over vertellen!



Plan een bezichtiging
voor: Kortenhoefsedijk 144
Bel ons op 035 625 20 70 of WhatsApp via 0356252070 voor direct contact. Of laat jouw gegevens achter en wij nemen zo snel mogelijk contact met je op.


