Terug naar resultatenMarco Polostraat 281 H
Marco Polostraat 281 H
1056 DN AMSTERDAM
€ 745.000 k.k.
Omschrijving
Sfeervolle en in 2023 gemoderniseerde benedenwoning met eigen entree en royale achtertuin met gastenverblijf en berging. De woning heeft 3 slaapkamers en 2 badkamers (waarvan 1 slaapkamer en 1 badkamer in het gastenverblijf), een werk/babykamer, een gezellige woonkeuken en gunstige erfpacht. De woning is gelegen aan de rustige Marco Polostraat, in de populaire wijk de Baarsjes in stadsdeel West. Een buurt die de laatste jaren erg in populariteit is gestegen, door de vele faciliteiten en de goede bereikbaarheid. Zo stikt het o.a. op de Jan Evertsenstraat van de vele leuke horecagelegenheden zoals White Label Coffee, de Biertuin, Le French Café, De Neef van Fred en Fort Negen. Diverse supermarkten en andere winkels voor de dagelijkse boodschappen bevinden zich ook om de hoek. Voor ontspanning biedt het Erasmuspark uitkomst dat op loopafstand ligt. Ook het openbaar vervoer is prima geregeld: tram 13 en bus 18 richting Amsterdam Centraal stoppen zo goed als voor de deur en bus 15 richting Station Zuid stopt om de hoek. Met de auto is de Ring A10 binnen enkele minuten bereikbaar.
Indeling
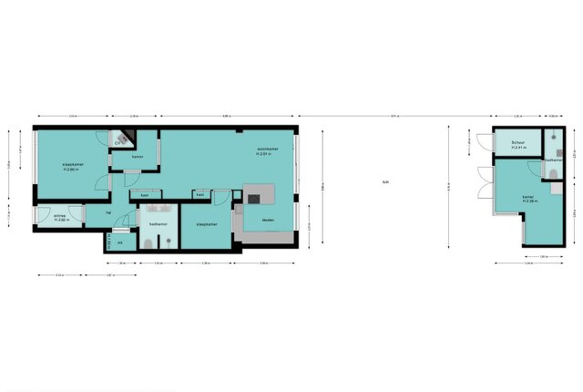
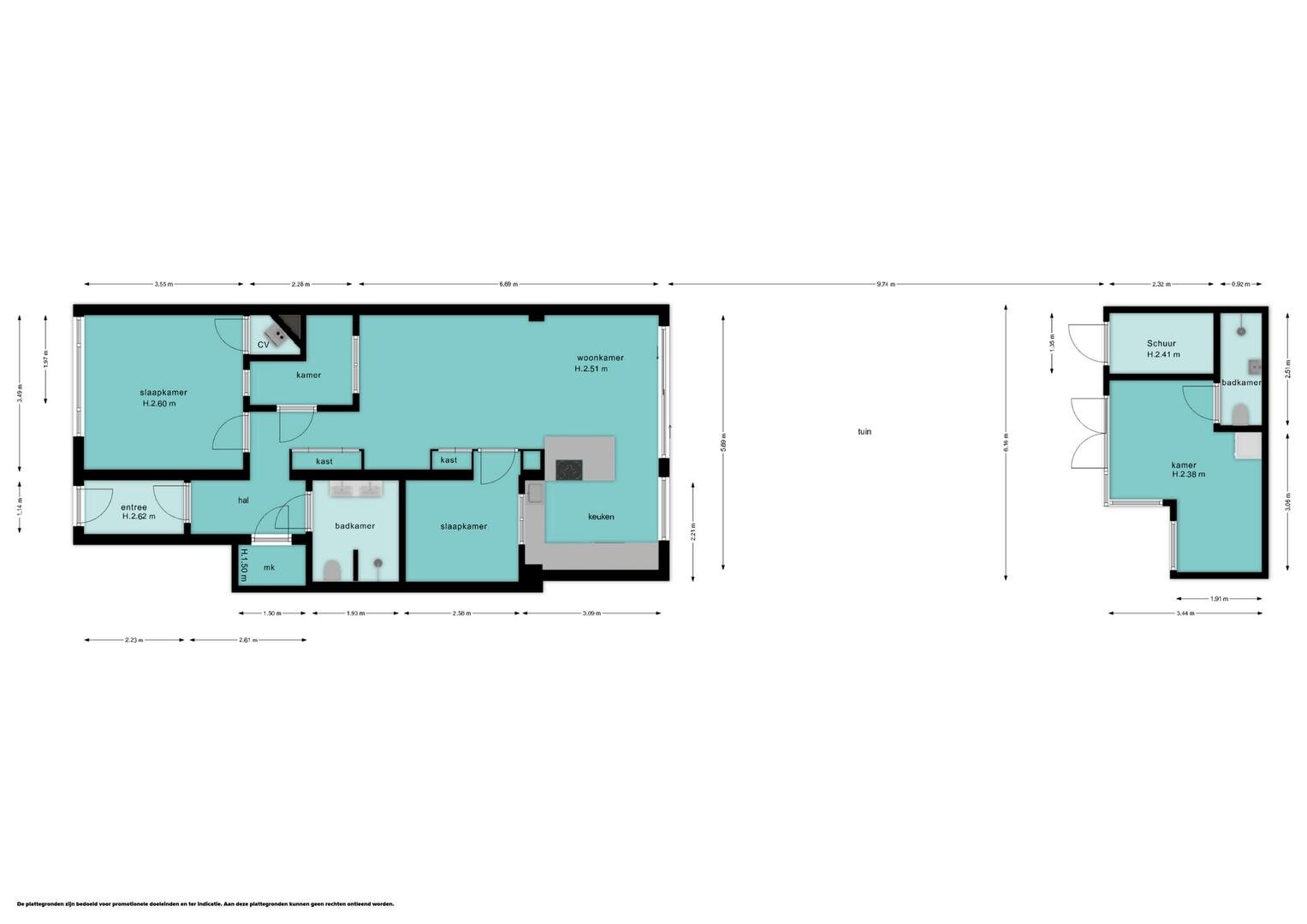
Tochtportaal met fraaie glas-in-lood-deur en ruimte voor de jassen. Hal met trapkast met meterkast en berging en toegang tot de moderne badkamer die is voorzien van een dubbel wastafelmeubel, inloopdouche en toilet. Royale woon-/eetkamer met een op maat gemaakte kastenwand en een schuifpui die toegang geeft tot de zonnige achtertuin van maar liefst 60m2. Moderne en tijdloze open keuken uitgerust met diverse hoogwaardige inbouwapparatuur, waaronder een grote koelkast en een aparte vriezer, een grote oven, een vaatwasmachine en een Quooker. Het kookeiland heeft een inductieplaat voorzien van interne afzuiging.
Vanuit de woonkamer zijn de overige kamers te bereiken. Aan de voorzijde bevindt zich de ouderslaapkamer met prachtige glas-in-lood-ramen. De 2e slaapkamer (met verborgen deur in de fraaie kastenwand) en de werkkamer (nu ingericht als babykamer) hebben beide via een raampartij een speelse doorkijk naar respectievelijk de keuken en de woonkamer. Door de gehele woning ligt vloerverwarming.
Het gastenverblijf is ongeveer 12 m² groot en biedt voldoende plaats voor een werkplek èn een logeermogelijkheid. De aansluitingen voor wasmachine en droger zijn hier ook gesitueerd. Daarnaast is er een vaste internetkabel getrokken vanaf de woning voor stabiel en snel internet. De badkamer is voorzien van een wastafel, toilet en douche. Aangrenzend bevindt zich de berging; ideaal voor gereedschap en tuinkussens.
Vereniging van Eigenaren ‘Marco Polostraat 281’ is een actieve en gezonde VvE in eigen beheer; er wordt jaarlijks vergaderd en het pand wordt netjes onderhouden. De maandelijkse bijdrage is €129,-.
Eigendomssituatie;
De woning is gelegen op gemeentelijke erfpachtgrond, waarbij het huidige tijdvak loopt tot en met juni 2050. Tot die tijd is de canon jaarlijks €453,31. De overstap naar eeuwigdurende erfpacht is gedaan en de canon bedraagt vanaf juli 2050 €824,58 (+ inflatie).
Bijzonderheden;
- Sfeervolle benedenwoning met royale tuin en gastenverblijf;
- Gelegen in de geliefde Baarsjes;
- Woonoppervlakte 84 m² (NEN gemeten);
- 3 slaapkamers, 1 werkkamer en 2 badkamers;
- Waarvan 1 slaapkamer en 1 badkamer in het fraaie gastenverblijf;
- Keuken en badkamer in 2023 volledig gerenoveerd
- Vloerverwarming door gehele woning
- Zonnige tuin van 60 m² op het westen
- Energielabel B
- Overstap naar eeuwigdurende erfpacht is onder gunstige voorwaarden gemaakt;
- Service kosten VvE € 129,- per maand;
- Parkeren via vergunningsstelsel, veel parkeergelegenheid in de directe omgeving;
- De koopovereenkomst wordt opgemaakt door een notaris in Amsterdam.
+ Meer omschrijving
- Minder omschrijving
Indeling
Tochtportaal met fraaie glas-in-lood-deur en ruimte voor de jassen. Hal met trapkast met meterkast en berging en toegang tot de moderne badkamer die is voorzien van een dubbel wastafelmeubel, inloopdouche en toilet. Royale woon-/eetkamer met een op maat gemaakte kastenwand en een schuifpui die toegang geeft tot de zonnige achtertuin van maar liefst 60m2. Moderne en tijdloze open keuken uitgerust met diverse hoogwaardige inbouwapparatuur, waaronder een grote koelkast en een aparte vriezer, een grote oven, een vaatwasmachine en een Quooker. Het kookeiland heeft een inductieplaat voorzien van interne afzuiging.
Vanuit de woonkamer zijn de overige kamers te bereiken. Aan de voorzijde bevindt zich de ouderslaapkamer met prachtige glas-in-lood-ramen. De 2e slaapkamer (met verborgen deur in de fraaie kastenwand) en de werkkamer (nu ingericht als babykamer) hebben beide via een raampartij een speelse doorkijk naar respectievelijk de keuken en de woonkamer. Door de gehele woning ligt vloerverwarming.
Het gastenverblijf is ongeveer 12 m² groot en biedt voldoende plaats voor een werkplek èn een logeermogelijkheid. De aansluitingen voor wasmachine en droger zijn hier ook gesitueerd. Daarnaast is er een vaste internetkabel getrokken vanaf de woning voor stabiel en snel internet. De badkamer is voorzien van een wastafel, toilet en douche. Aangrenzend bevindt zich de berging; ideaal voor gereedschap en tuinkussens.
Vereniging van Eigenaren ‘Marco Polostraat 281’ is een actieve en gezonde VvE in eigen beheer; er wordt jaarlijks vergaderd en het pand wordt netjes onderhouden. De maandelijkse bijdrage is €129,-.
Eigendomssituatie;
De woning is gelegen op gemeentelijke erfpachtgrond, waarbij het huidige tijdvak loopt tot en met juni 2050. Tot die tijd is de canon jaarlijks €453,31. De overstap naar eeuwigdurende erfpacht is gedaan en de canon bedraagt vanaf juli 2050 €824,58 (+ inflatie).
Bijzonderheden;
- Sfeervolle benedenwoning met royale tuin en gastenverblijf;
- Gelegen in de geliefde Baarsjes;
- Woonoppervlakte 84 m² (NEN gemeten);
- 3 slaapkamers, 1 werkkamer en 2 badkamers;
- Waarvan 1 slaapkamer en 1 badkamer in het fraaie gastenverblijf;
- Keuken en badkamer in 2023 volledig gerenoveerd
- Vloerverwarming door gehele woning
- Zonnige tuin van 60 m² op het westen
- Energielabel B
- Overstap naar eeuwigdurende erfpacht is onder gunstige voorwaarden gemaakt;
- Service kosten VvE € 129,- per maand;
- Parkeren via vergunningsstelsel, veel parkeergelegenheid in de directe omgeving;
- De koopovereenkomst wordt opgemaakt door een notaris in Amsterdam.
Kenmerken
| Bouwjaar | 1927 |
|---|---|
| Bouwvorm | bestaande bouw |
| Woonoppervlakte | 84 |
| Aantal kamers | 5 |
Overdracht
| Status | Onder bod |
|---|---|
| Prijs | € 745.000 Kosten koper |
| Aanvaarding | in overleg |
Bouw vorm
| Bouwjaar | 1927 |
|---|---|
| Bouwvorm | bestaande bouw |
Indeling
| Woonoppervlakte | 84 |
|---|---|
| Inhoud | 269 |
| Aantal kamers | 5 |
| Slaapkamers | 3 |
| Etages | 1 |
Tuin
| Tuin | Achtertuin |
|---|---|
| Hoofdtuin oppervlakte | 81 |
| Hoofdtuin positie | West |
| Aantal bergingen | 1 |
Parking
| Garage soort | Geen garage |
|---|
In de buurt
Wij kennen werkelijk iedere straat en elke hoek van Hilversum. Benieuwd wat een buurt je te bieden heeft? We kunnen je er alles over vertellen!



Plan een bezichtiging
voor: Marco Polostraat 281 H
Bel ons op 035 625 20 70 of WhatsApp via 0356252070 voor direct contact. Of laat jouw gegevens achter en wij nemen zo snel mogelijk contact met je op.
