Terug naar resultatenMaria Beshof 12
Maria Beshof 12
1221 AM HILVERSUM
€ 595.000 k.k.
Omschrijving
Op zoek naar een instapklare, trendy woning met energielabel A+ en 2 eigen parkeerplaatsen voor de deur? Dan is dit je kans!
Deze zeer verzorgde karakteristieke eengezinswoning ligt in een kindvriendelijk hofje en heeft een zonnige achtertuin met schuur!
Deze prachtige woning is in 2008 gebouwd, zijnde onderdeel van het nieuwbouwproject “Onkenhout”, bestaande uit 24 woningen welke zeer degelijk gebouwd zijn met onder andere zinken dakgoten, een mansarde kap met gebakken pannen, klassieke ramen en roeden die doen denken aan het verleden maar met alle technieken van de tegenwoordige tijd, perfect passend in de bestaande omgeving.
De woning is gelegen in de historische Geuzenbuurt in een zeer kindvriendelijke omgeving aan een autoluw inpandig gelegen hof, op loopafstand van openbare voorzieningen zoals NS Station Hilversum (Intercity), het bruisende centrum en de markt, winkelcentrum Seinhorst met diverse winkels zoals een grote Albert Heijn, bakker, slager, Etos, Gall & Gall, boekenwinkel, dierenspeciaalzaak en een kapper, scholen en diverse natuurgebieden, de dichtstbijzijnde uitvalswegen A1/A27 zijn binnen enkele minuten bereikbaar.
Indeling:
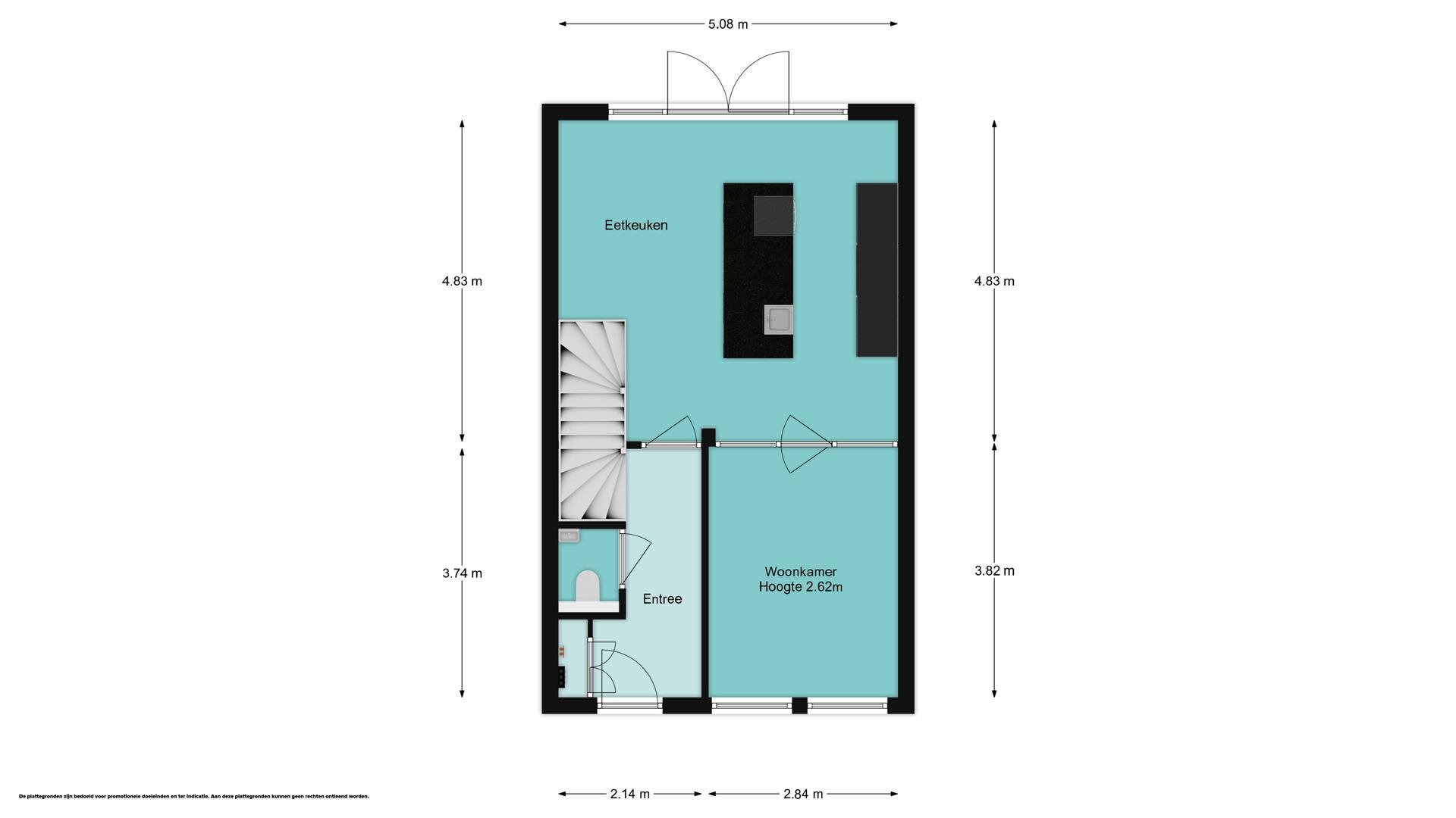
begane grond: entree, ruime hal met meterkast en garderobe, modern toilet met fonteintje, ruime en lichte tuingerichte woonkeuken met inbouwapparatuur, openslaande deuren naar de zonnige achtertuin met zonnescherm. Aan de voorzijde is de zitkamer gesitueerd en die is afsluitbaar van de woonkeuken middels stalen deur met glas.
Eerste verdieping:
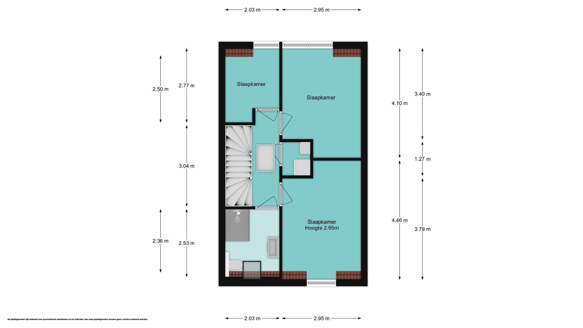
overloop, 3 in grootte variërende slaapkamers, moderne badkamer met douche, 2de toilet en dubbel badkamermeubel, een technische ruimte voor het mechanische ventilatiesysteem en ruimte voor wasmachine en droger. Via de vlizotrap bereikbare ruime bergvliering.
Aanvullende informatie:
- Optimaal thermisch en akoestisch geïsoleerd
- Gehele woning voorzien van nette wand-, vloer- en plafondafwerking
- Voorzien van zeer stille airconditioning
- 13 zonnepanelen
- mede eigendom van het mandelig terrein
- 2 eigen parkeerplaatsen
- servicekosten € 30 per maand.
+ Meer omschrijving
- Minder omschrijving
Deze zeer verzorgde karakteristieke eengezinswoning ligt in een kindvriendelijk hofje en heeft een zonnige achtertuin met schuur!
Deze prachtige woning is in 2008 gebouwd, zijnde onderdeel van het nieuwbouwproject “Onkenhout”, bestaande uit 24 woningen welke zeer degelijk gebouwd zijn met onder andere zinken dakgoten, een mansarde kap met gebakken pannen, klassieke ramen en roeden die doen denken aan het verleden maar met alle technieken van de tegenwoordige tijd, perfect passend in de bestaande omgeving.
De woning is gelegen in de historische Geuzenbuurt in een zeer kindvriendelijke omgeving aan een autoluw inpandig gelegen hof, op loopafstand van openbare voorzieningen zoals NS Station Hilversum (Intercity), het bruisende centrum en de markt, winkelcentrum Seinhorst met diverse winkels zoals een grote Albert Heijn, bakker, slager, Etos, Gall & Gall, boekenwinkel, dierenspeciaalzaak en een kapper, scholen en diverse natuurgebieden, de dichtstbijzijnde uitvalswegen A1/A27 zijn binnen enkele minuten bereikbaar.
Indeling:
begane grond: entree, ruime hal met meterkast en garderobe, modern toilet met fonteintje, ruime en lichte tuingerichte woonkeuken met inbouwapparatuur, openslaande deuren naar de zonnige achtertuin met zonnescherm. Aan de voorzijde is de zitkamer gesitueerd en die is afsluitbaar van de woonkeuken middels stalen deur met glas.
Eerste verdieping:
overloop, 3 in grootte variërende slaapkamers, moderne badkamer met douche, 2de toilet en dubbel badkamermeubel, een technische ruimte voor het mechanische ventilatiesysteem en ruimte voor wasmachine en droger. Via de vlizotrap bereikbare ruime bergvliering.
Aanvullende informatie:
- Optimaal thermisch en akoestisch geïsoleerd
- Gehele woning voorzien van nette wand-, vloer- en plafondafwerking
- Voorzien van zeer stille airconditioning
- 13 zonnepanelen
- mede eigendom van het mandelig terrein
- 2 eigen parkeerplaatsen
- servicekosten € 30 per maand.
Kenmerken
| Bouwjaar | 2008 |
|---|---|
| Bouwvorm | bestaande bouw |
| Woonoppervlakte | 87 |
| Aantal kamers | 4 |
Overdracht
| Status | Onder bod |
|---|---|
| Prijs | € 595.000 Kosten koper excl. € 30,00 servicekosten |
| Aanvaarding | in overleg |
Bouw vorm
| Bouwjaar | 2008 |
|---|---|
| Bouwvorm | bestaande bouw |
Indeling
| Woonoppervlakte | 87 |
|---|---|
| Inhoud | 321 |
| Aantal kamers | 4 |
| Slaapkamers | 3 |
| Etages | 2 |
Tuin
| Tuin | Achtertuin |
|---|---|
| Hoofdtuin oppervlakte | 35 |
| Hoofdtuin positie | Zuidoost |
| Aantal bergingen | 1 |
Parking
| Garage soort | Geen garage |
|---|
In de buurt
Wij kennen werkelijk iedere straat en elke hoek van Hilversum. Benieuwd wat een buurt je te bieden heeft? We kunnen je er alles over vertellen!



Plan een bezichtiging
voor: Maria Beshof 12
Bel ons op 035 625 20 70 of WhatsApp via 0356252070 voor direct contact. Of laat jouw gegevens achter en wij nemen zo snel mogelijk contact met je op.


