Terug naar resultatenMarterlaan 94
Marterlaan 94
1216 GA HILVERSUM
€ 500.000 k.k.
Omschrijving
In een rustige, kindvriendelijke straat in Hilversum Zuid, bieden wij aan deze te renoveren middenwoning gelegen op loopafstand van het bosje van Zeverijn, natuurgebied Corversbos, een speeltuintje en winkelcentrum Kerkelanden met o.a. een Lidl en Albert Heijn XL en openbaar vervoer. Sportvelden, winkelgebied “Gijsbrecht van Amstel”, scholen en uitvalswegen bevinden zich ook in de directe nabijheid.
Indeling:
Entree/hal, toilet met fonteintje, verdiepte kelderkast met meterkast, gesloten keuken met deur naar achtertuin, woon/eetkamer met visgraat parketvloer, vaste kast en deur naar de achtertuin. De tuin is tevens via een achterom te bereiken en heeft een stenen schuur.
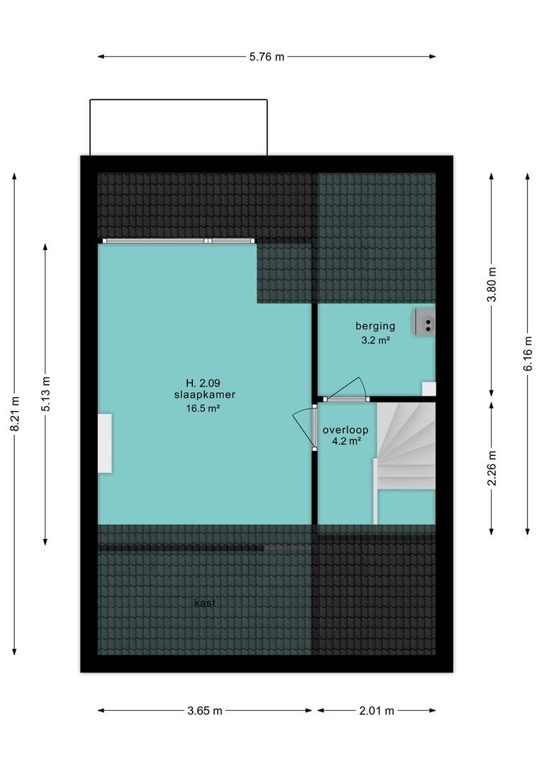
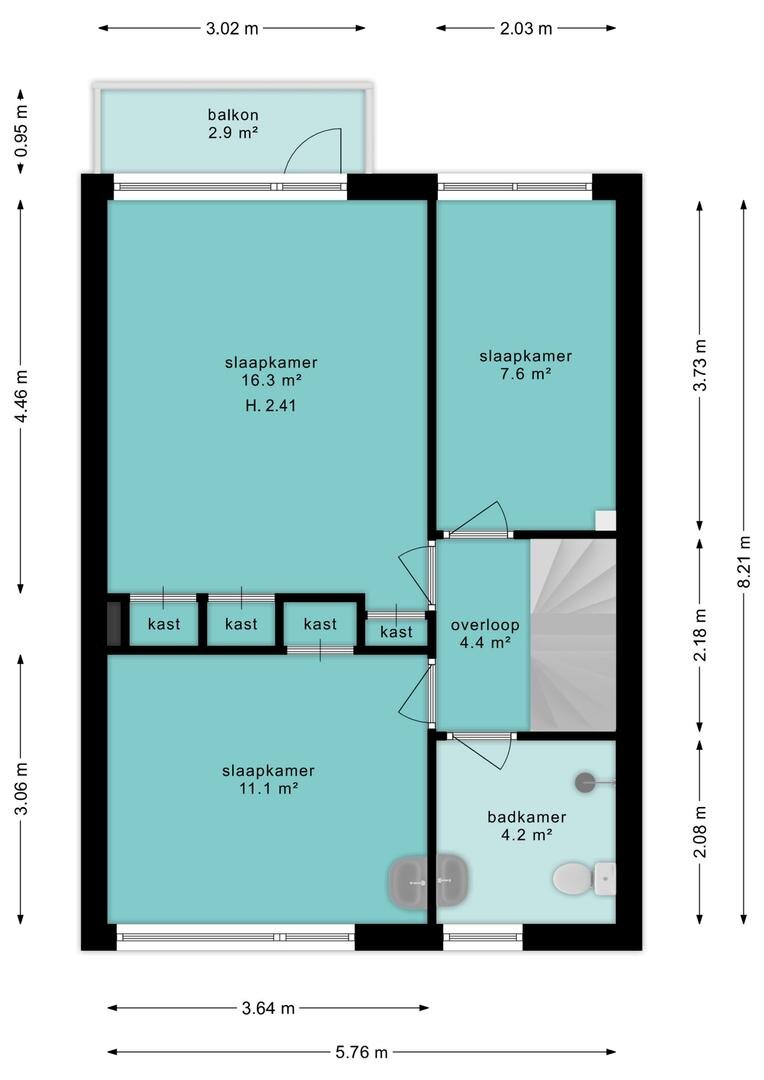
1e verdieping:
Overloop, ruime hoofdslaapkamer met vaste kasten en toegang tot het balkon, 2e goed bemeten slaapkamer met vaste kast en wastafel, 3e kleinere slaapkamer aan de achterzijde, (de kamers zijn circa 8, 11 en 16 m²), badkamer met douche, wastafel en toilet.
2e verdieping:
Middels een vaste trap is de zolder bereikbaar. Grote voorzolder met verlaagd plafond, 4e slaapkamer met dakkapel en bergruimte, separate en goede bergruimte met C.V. opstelling en wasmachine-/drogeraansluiting. Ideaal.
Bijzonderheden:
- centrale ligging nabij natuur, winkels en uitvalswegen;
- perceeloppervlak: 140 m²;
- gebruiksoppervlak (wonen): 119 m²;
- besloten achtertuin met schuur en achterom;
- in overleg is er eventueel een garage bij te koop (prijs op aanvraag).
+ Meer omschrijving
- Minder omschrijving
Indeling:
Entree/hal, toilet met fonteintje, verdiepte kelderkast met meterkast, gesloten keuken met deur naar achtertuin, woon/eetkamer met visgraat parketvloer, vaste kast en deur naar de achtertuin. De tuin is tevens via een achterom te bereiken en heeft een stenen schuur.
1e verdieping:
Overloop, ruime hoofdslaapkamer met vaste kasten en toegang tot het balkon, 2e goed bemeten slaapkamer met vaste kast en wastafel, 3e kleinere slaapkamer aan de achterzijde, (de kamers zijn circa 8, 11 en 16 m²), badkamer met douche, wastafel en toilet.
2e verdieping:
Middels een vaste trap is de zolder bereikbaar. Grote voorzolder met verlaagd plafond, 4e slaapkamer met dakkapel en bergruimte, separate en goede bergruimte met C.V. opstelling en wasmachine-/drogeraansluiting. Ideaal.
Bijzonderheden:
- centrale ligging nabij natuur, winkels en uitvalswegen;
- perceeloppervlak: 140 m²;
- gebruiksoppervlak (wonen): 119 m²;
- besloten achtertuin met schuur en achterom;
- in overleg is er eventueel een garage bij te koop (prijs op aanvraag).
Kenmerken
| Bouwjaar | 1960 |
|---|---|
| Bouwvorm | bestaande bouw |
| Woonoppervlakte | 119 |
| Aantal kamers | 5 |
Overdracht
| Status | Verkocht onder voorbehoud |
|---|---|
| Prijs | € 500.000 Kosten koper |
| Aanvaarding | in overleg |
Bouw vorm
| Bouwjaar | 1960 |
|---|---|
| Bouwvorm | bestaande bouw |
Indeling
| Woonoppervlakte | 119 |
|---|---|
| Inhoud | 410 |
| Aantal kamers | 5 |
| Slaapkamers | 4 |
| Etages | 4 |
Tuin
| Tuin | Achtertuin, Voortuin |
|---|---|
| Hoofdtuin oppervlakte | 60 |
| Hoofdtuin positie | Noordoost |
| Aantal bergingen | 1 |
Parking
| Garage soort | Geen garage |
|---|
In de buurt
Wij kennen werkelijk iedere straat en elke hoek van Hilversum. Benieuwd wat een buurt je te bieden heeft? We kunnen je er alles over vertellen!






