Terug naar resultatenNeuweg 80 B
Neuweg 80 B
1214 GW HILVERSUM
€ 525.000 k.k.
Omschrijving
Op een verscholen locatie aan de rand van de Bloemenbuurt van Hilversum-Zuid bieden wij aan dit gezinshuis van maar liefst 136 m² met plafonds van 2,83m, 3 slaapkamers en een patiotuin. Voor wie wat anders wil dan anders met veel vierkante meters aan woonoppervlak op een gewilde en centrale locatie, is dit een uitgelezen kans...
Deze gezinswoning ligt op loopafstand van het winkelgebied rondom de Gijsbrecht van Amstelstraat met onder andere de bakker, de slager en de Albert Heijn om de hoek. Tevens is de Hoorneboegse Heide en het centrum van Hilversum met verschillende voorzieningen zoals het trein-/busstation, de gezellige markt, supermarkten, bioscoop, winkels, restaurants en uitgaansgelegenheden zoals Foodhall Mout op loop-/fietsafstand bereikbaar. Hilversum zelf ligt centraal ten opzichte van onder andere Amsterdam, Amersfoort, Almere, Utrecht en de resterende dorpen van het Gooi.
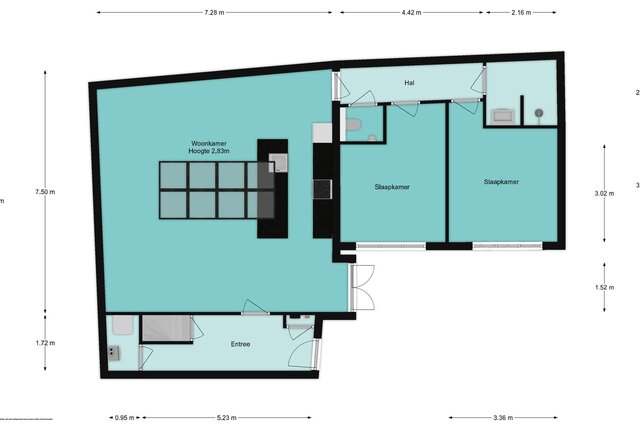
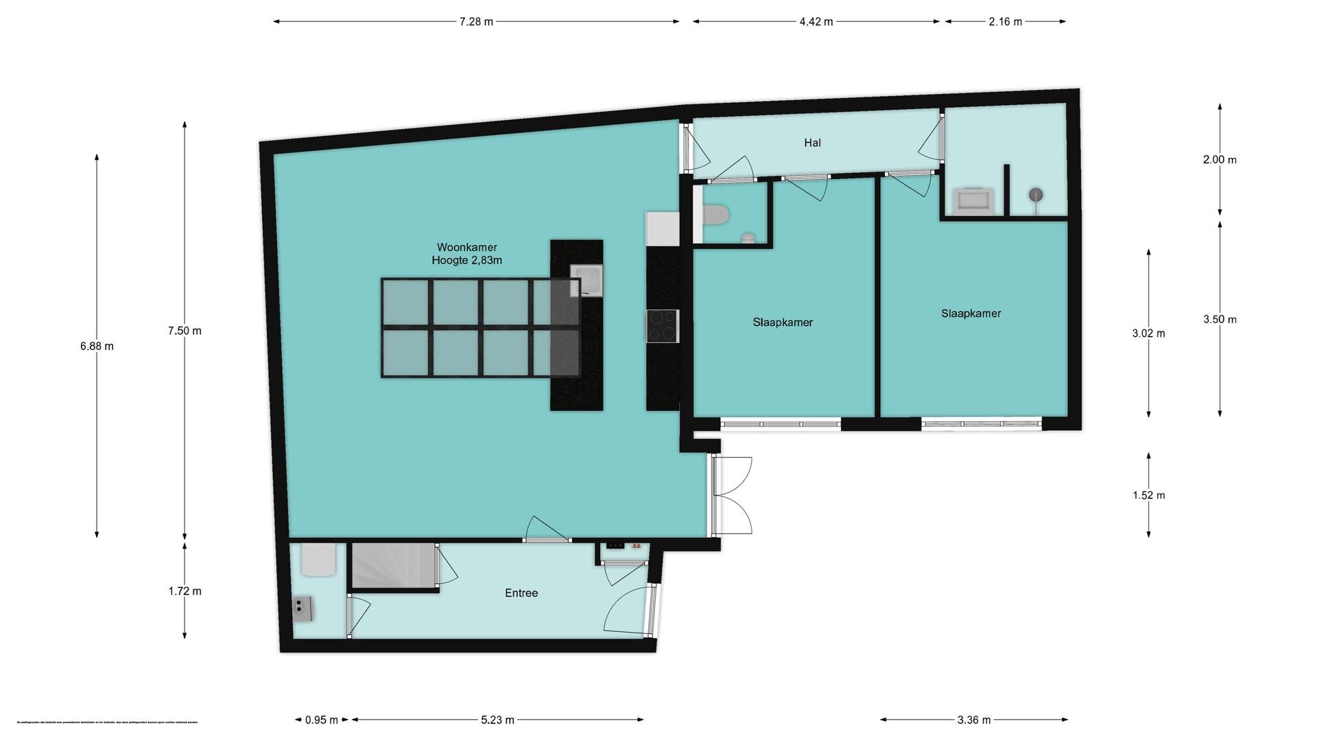
Indeling:
Via de Neuweg betreed je via de brede witte poortdeuren de gedeelde opgang met ruimte om de fiets te stallen. Deze opgang deelt u met de linker en rechter buren.
Begane grond
Entree, hal met meterkast, garderobe, separate wasruimte, toegang naar het souterrain, verrassend lichte woon-/eetkamer met open keuken en openslaande deuren naar de patiotuin. Door de giga lichtstraat is het altijd licht in het huis. Voor de warme dagen is er een automatisch zonnescherm en ook zelfs een airco unit. De open keuken is voorzien van diverse inbouwapparatuur en een gezellige bar om aan te eten of borrelen.
Via de woonkamer bereik je de hal met een separaat toilet met fonteintje, twee goed bemeten slaapkamers en een badkamer met ruime inloopdouche en wastafel.
Souterrain
Verbouwd in 2023, vaste trap naar het geïsoleerde en gerenoveerde souterrain met 2e toilet, riante slaapkamer met werkplek en een ruime bergkamer.
Bijzonderheden:
- ruim en licht woonhuis met veel mogelijkheden!
- ideaal voor diegene die zoekt naar gelijkvloers of onderhoudsarm wonen;
- hardhouten kozijnen;
- voorzien van HR++ dubbele beglazing, dakisolatie en gevelisolatie;
- c.v. ketel 2015 in eigendom en jaarlijks onderhouden;
- energielabel C;
- airconditioning 2017.
Bent u nieuwsgierig geworden? Kom gerust langs om de woning te bezichtigen!
+ Meer omschrijving
- Minder omschrijving
Deze gezinswoning ligt op loopafstand van het winkelgebied rondom de Gijsbrecht van Amstelstraat met onder andere de bakker, de slager en de Albert Heijn om de hoek. Tevens is de Hoorneboegse Heide en het centrum van Hilversum met verschillende voorzieningen zoals het trein-/busstation, de gezellige markt, supermarkten, bioscoop, winkels, restaurants en uitgaansgelegenheden zoals Foodhall Mout op loop-/fietsafstand bereikbaar. Hilversum zelf ligt centraal ten opzichte van onder andere Amsterdam, Amersfoort, Almere, Utrecht en de resterende dorpen van het Gooi.
Indeling:
Via de Neuweg betreed je via de brede witte poortdeuren de gedeelde opgang met ruimte om de fiets te stallen. Deze opgang deelt u met de linker en rechter buren.
Begane grond
Entree, hal met meterkast, garderobe, separate wasruimte, toegang naar het souterrain, verrassend lichte woon-/eetkamer met open keuken en openslaande deuren naar de patiotuin. Door de giga lichtstraat is het altijd licht in het huis. Voor de warme dagen is er een automatisch zonnescherm en ook zelfs een airco unit. De open keuken is voorzien van diverse inbouwapparatuur en een gezellige bar om aan te eten of borrelen.
Via de woonkamer bereik je de hal met een separaat toilet met fonteintje, twee goed bemeten slaapkamers en een badkamer met ruime inloopdouche en wastafel.
Souterrain
Verbouwd in 2023, vaste trap naar het geïsoleerde en gerenoveerde souterrain met 2e toilet, riante slaapkamer met werkplek en een ruime bergkamer.
Bijzonderheden:
- ruim en licht woonhuis met veel mogelijkheden!
- ideaal voor diegene die zoekt naar gelijkvloers of onderhoudsarm wonen;
- hardhouten kozijnen;
- voorzien van HR++ dubbele beglazing, dakisolatie en gevelisolatie;
- c.v. ketel 2015 in eigendom en jaarlijks onderhouden;
- energielabel C;
- airconditioning 2017.
Bent u nieuwsgierig geworden? Kom gerust langs om de woning te bezichtigen!
Kenmerken
| Bouwjaar | 1904 |
|---|---|
| Bouwvorm | bestaande bouw |
| Woonoppervlakte | 136 |
| Aantal kamers | 4 |
Overdracht
| Status | Beschikbaar |
|---|---|
| Prijs | € 525.000 Kosten koper |
| Aanvaarding | in overleg |
Bouw vorm
| Bouwjaar | 1904 |
|---|---|
| Bouwvorm | bestaande bouw |
Indeling
| Woonoppervlakte | 136 |
|---|---|
| Inhoud | 499 |
| Aantal kamers | 4 |
| Slaapkamers | 3 |
| Etages | 2 |
Tuin
| Tuin | Patio atrium |
|---|---|
| Hoofdtuin oppervlakte | 18 |
| Hoofdtuin positie | Zuidoost |
Parking
| Garage soort | Geen garage |
|---|
In de buurt
Wij kennen werkelijk iedere straat en elke hoek van Hilversum. Benieuwd wat een buurt je te bieden heeft? We kunnen je er alles over vertellen!



Plan een bezichtiging
voor: Neuweg 80 B
Bel ons op 035 625 20 70 of WhatsApp via 0356252070 voor direct contact. Of laat jouw gegevens achter en wij nemen zo snel mogelijk contact met je op.

