Terug naar resultatenPolluxstraat 18
Polluxstraat 18
1223 GB HILVERSUM
€ 600.000 k.k.
Omschrijving
Sfeervolle en uitgebouwde jaren ‘30 middenwoning in kindvriendelijke buurt, gelegen aan een van de leukste straten van de astronomische buurt, met zonnige besloten achtertuin en diverse originele stijlkenmerken zoals schouwen, brede dak-overstekken en fraaie paneeldeuren. Het huis bevindt zich op directe loop- en fietsafstand van supermarkten, het winkelcentrum Seinhorst, het NS Station, diverse basisscholen en het gezellige stadscentrum. Het natuurgebied de Zuiderheide ligt op loopafstand. De uitvalswegen richting Amsterdam (A1) en Utrecht (A27) zijn eveneens op zeer korte afstand gelegen.
Indeling
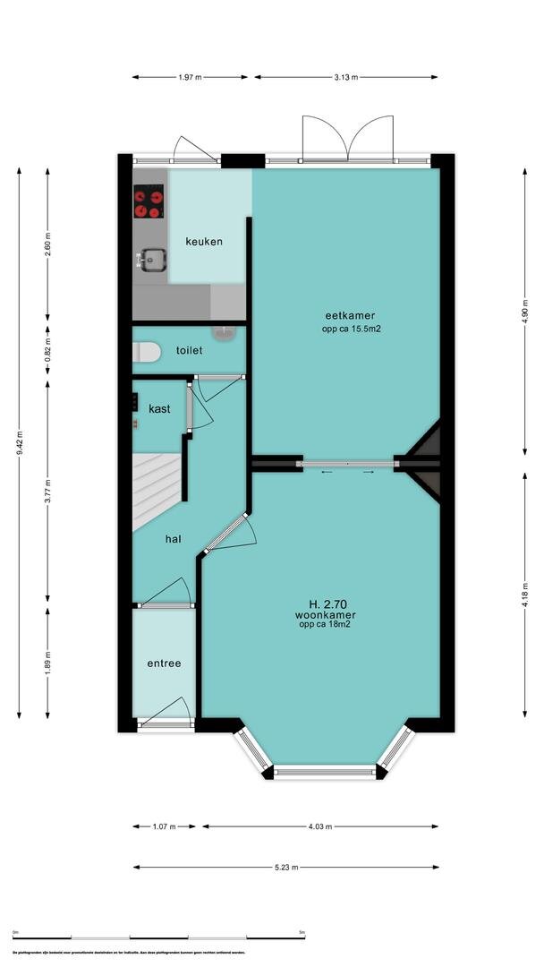
Begane grond: vestibule, gang, trap-/meterkast, toilet met fonteintje, ruime woonkamer en-suite met karakteristieke schuifdeuren, een erker, 2 schouwen en openslaande deuren naar de tuin, halfopen keuken voorzien van diverse inbouwapparatuur (inductiekookplaat, oven, vaatwasmachine, afzuigkap en koelkast en een deur naar de achtertuin (oost).
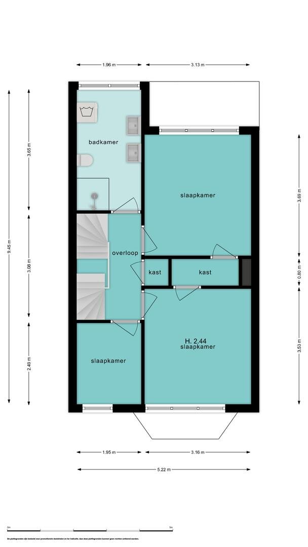
Eerste verdieping: overloop met inbouwkast, 1e grote slaapkamer aan de achterzijde met inbouwkast, uitgebouwde badkamer voorzien van douche, dubbele wastafel, toilet en wasmachine-aansluiting, 2e kleine slaap-/werkkamer aan de voorzijde, ruime 3e slaapkamer aan de voorzijde eveneens met inbouwkast.
Tweede verdieping te bereiken via vaste trap: overloop met vlizotrap naar de grote bergvliering, 4e royale slaapkamer met grote dakkapel aan de achterzijde, 5e slaapkamer aan de voorzijde voorzien van een vaste kast met C.V.-opstelling (Vaillant, bouwjaar 2019).
Bijzonderheden:
- Sfeervolle, uitgebouwde woning uit de jaren ’30;
- Geheel voorzien van dubbelglas;
- Dak- en spouwmuurisolatie;
- Energielabel C;
- Goed onderhouden en veel originele details;
- 5 slaapkamers;
- Ruime achtertuin met schuur en achterom;
- Ideale ligging in een prettige en kindvriendelijke jaren '30 wijk direct nabij de winkels, stadscentrum van Hilversum, NS Station, scholen, natuurgebieden en uitvalswegen naar de snelwegen.
+ Meer omschrijving
- Minder omschrijving
Indeling
Begane grond: vestibule, gang, trap-/meterkast, toilet met fonteintje, ruime woonkamer en-suite met karakteristieke schuifdeuren, een erker, 2 schouwen en openslaande deuren naar de tuin, halfopen keuken voorzien van diverse inbouwapparatuur (inductiekookplaat, oven, vaatwasmachine, afzuigkap en koelkast en een deur naar de achtertuin (oost).
Eerste verdieping: overloop met inbouwkast, 1e grote slaapkamer aan de achterzijde met inbouwkast, uitgebouwde badkamer voorzien van douche, dubbele wastafel, toilet en wasmachine-aansluiting, 2e kleine slaap-/werkkamer aan de voorzijde, ruime 3e slaapkamer aan de voorzijde eveneens met inbouwkast.
Tweede verdieping te bereiken via vaste trap: overloop met vlizotrap naar de grote bergvliering, 4e royale slaapkamer met grote dakkapel aan de achterzijde, 5e slaapkamer aan de voorzijde voorzien van een vaste kast met C.V.-opstelling (Vaillant, bouwjaar 2019).
Bijzonderheden:
- Sfeervolle, uitgebouwde woning uit de jaren ’30;
- Geheel voorzien van dubbelglas;
- Dak- en spouwmuurisolatie;
- Energielabel C;
- Goed onderhouden en veel originele details;
- 5 slaapkamers;
- Ruime achtertuin met schuur en achterom;
- Ideale ligging in een prettige en kindvriendelijke jaren '30 wijk direct nabij de winkels, stadscentrum van Hilversum, NS Station, scholen, natuurgebieden en uitvalswegen naar de snelwegen.
Kenmerken
| Bouwjaar | 1934 |
|---|---|
| Bouwvorm | bestaande bouw |
| Woonoppervlakte | 124 |
| Aantal kamers | 6 |
Overdracht
| Status | Beschikbaar |
|---|---|
| Prijs | € 600.000 Kosten koper |
| Aanvaarding | in overleg |
Bouw vorm
| Bouwjaar | 1934 |
|---|---|
| Bouwvorm | bestaande bouw |
Indeling
| Woonoppervlakte | 124 |
|---|---|
| Inhoud | 441 |
| Aantal kamers | 6 |
| Slaapkamers | 5 |
| Etages | 4 |
Tuin
| Tuin | Achtertuin, Voortuin |
|---|---|
| Hoofdtuin oppervlakte | 48 |
| Hoofdtuin positie | Oost |
| Aantal bergingen | 1 |
Parking
| Garage soort | Geen garage |
|---|
In de buurt
Wij kennen werkelijk iedere straat en elke hoek van Hilversum. Benieuwd wat een buurt je te bieden heeft? We kunnen je er alles over vertellen!



Plan een bezichtiging
voor: Polluxstraat 18
Bel ons op 035 625 20 70 of WhatsApp via 0356252070 voor direct contact. Of laat jouw gegevens achter en wij nemen zo snel mogelijk contact met je op.




