Terug naar resultatenPrins Bernhardstraat 107
Prins Bernhardstraat 107
1211 GJ HILVERSUM
€ 550.000 k.k.
Omschrijving
Exclusief wonen op hoogte – stijlvol 4-kamer hoekappartement met panoramisch uitzicht in het hart van Hilversum. Energielabel A.
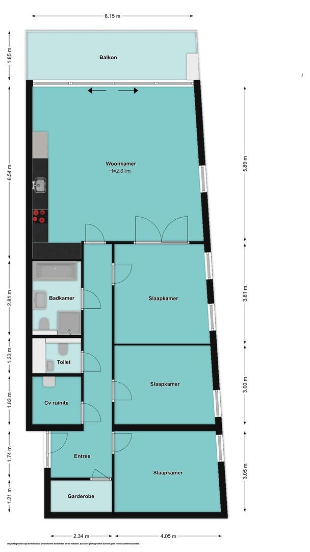
Op een van de mooiste posities in Hilversum, hoog boven de stad, bevindt zich dit verfijnde en royaal opgezette 4-kamer hoekappartement van 104 m². Gelegen op de elfde verdieping van de markante woontoren Hedera binnen het prestigieuze complex Entrada, biedt deze woning een zeldzame combinatie van ruimte, rust, licht en een adembenemend uitzicht.
De ligging is uitermate centraal, direct bij het intercitystation, met Amsterdam (20 minuten), Utrecht (15 minuten) en Amersfoort (20 minuten) binnen handbereik. Tegelijkertijd ervaart u hier een ongekende sereniteit en privacy.
De riante living kenmerkt zich door grote raampartijen en een elegante lichtinval gedurende de dag. De hoogwaardige Siematic keuken vormt een stijlvol geheel met de woonruimte en is voorzien van luxe inbouwapparatuur en een fraai werkblad – een omgeving waar esthetiek en functionaliteit naadloos samenkomen.
Via de schuifpui betreedt u het royale balkon op het zuidwesten (11 m²), waar u in alle rust geniet van de middag- en avondzon en een indrukwekkend panoramisch uitzicht over de stad en omgeving – een waar verlengstuk van de leefruimte.
Het appartement beschikt over twee comfortabele slaapkamers en een veelzijdige werkkamer/eetkamer, die desgewenst eenvoudig kan worden getransformeerd tot een volwaardige 3e slaapkamer.
De badkamer is compleet uitgevoerd met ligbad, inloopdouche, toilet en wastafelmeubel. Het geheel wordt gecompleteerd door een separaat gastentoilet, een praktische inpandige berging en een technische ruimte.
Het wooncomfort is van hoog niveau, met onder meer volledig instelbare vloerverwarming per ruimte, uitstekende isolatie en een energielabel A, wat resulteert in een aangenaam en energiezuinig binnenklimaat.
In de onderliggende parkeerkelder beschikt u over een eigen parkeerplaats en separate berging. Het complex onderscheidt zich door zijn verzorgde uitstraling, hoogwaardige afwerking en de fraai onder architectuur aangelegde binnentuin met waterpartij.
Een uitzonderlijk appartement voor wie op zoek is naar comfort, elegantie en wonen op een niveau dat letterlijk en figuurlijk boven de rest uitstijgt.
Uitstekende isolatiewaarden gecombineerd met een warmte terugwin installatie zorgen voor zeer lage stookkosten.
Erfpacht: De grond onder het complex is door de gemeente Hilversum in erfpacht uitgegeven. Voor 2026 bedraagt de canon voor dit appartement € 2868,- Het bedrag wordt jaarlijks met 2% geïndexeerd. De erfpacht canon is net als hypotheekrente aftrekbaar voor de inkomstenbelasting.
Bijzonderheden:
• gebruiksoppervlak 104 m²;
• balkon op zuidwesten v.v. houten vloer 11 m²;
• vloerverwarming, per ruimte instelbaar;
• Siematic keuken met AEG inbouwapparatuur;
• eikenhouten lamel parketvloer;
• massief houten design deuren;
• screens aan balkonzijde + remote;
• op maat gemaakte horren;
• entree met lift, intercom en videofoon;
• binnentuin met waterpartij;
• parkeerplaats en berging in de parkeerkelder;
• zeer lage stookkosten Energielabel A;
• maandelijkse VvE bijdrage € 273,37 (incl parkeerplaats);
• gezonde en actieve VvE.
+ Meer omschrijving
- Minder omschrijving
Op een van de mooiste posities in Hilversum, hoog boven de stad, bevindt zich dit verfijnde en royaal opgezette 4-kamer hoekappartement van 104 m². Gelegen op de elfde verdieping van de markante woontoren Hedera binnen het prestigieuze complex Entrada, biedt deze woning een zeldzame combinatie van ruimte, rust, licht en een adembenemend uitzicht.
De ligging is uitermate centraal, direct bij het intercitystation, met Amsterdam (20 minuten), Utrecht (15 minuten) en Amersfoort (20 minuten) binnen handbereik. Tegelijkertijd ervaart u hier een ongekende sereniteit en privacy.
De riante living kenmerkt zich door grote raampartijen en een elegante lichtinval gedurende de dag. De hoogwaardige Siematic keuken vormt een stijlvol geheel met de woonruimte en is voorzien van luxe inbouwapparatuur en een fraai werkblad – een omgeving waar esthetiek en functionaliteit naadloos samenkomen.
Via de schuifpui betreedt u het royale balkon op het zuidwesten (11 m²), waar u in alle rust geniet van de middag- en avondzon en een indrukwekkend panoramisch uitzicht over de stad en omgeving – een waar verlengstuk van de leefruimte.
Het appartement beschikt over twee comfortabele slaapkamers en een veelzijdige werkkamer/eetkamer, die desgewenst eenvoudig kan worden getransformeerd tot een volwaardige 3e slaapkamer.
De badkamer is compleet uitgevoerd met ligbad, inloopdouche, toilet en wastafelmeubel. Het geheel wordt gecompleteerd door een separaat gastentoilet, een praktische inpandige berging en een technische ruimte.
Het wooncomfort is van hoog niveau, met onder meer volledig instelbare vloerverwarming per ruimte, uitstekende isolatie en een energielabel A, wat resulteert in een aangenaam en energiezuinig binnenklimaat.
In de onderliggende parkeerkelder beschikt u over een eigen parkeerplaats en separate berging. Het complex onderscheidt zich door zijn verzorgde uitstraling, hoogwaardige afwerking en de fraai onder architectuur aangelegde binnentuin met waterpartij.
Een uitzonderlijk appartement voor wie op zoek is naar comfort, elegantie en wonen op een niveau dat letterlijk en figuurlijk boven de rest uitstijgt.
Uitstekende isolatiewaarden gecombineerd met een warmte terugwin installatie zorgen voor zeer lage stookkosten.
Erfpacht: De grond onder het complex is door de gemeente Hilversum in erfpacht uitgegeven. Voor 2026 bedraagt de canon voor dit appartement € 2868,- Het bedrag wordt jaarlijks met 2% geïndexeerd. De erfpacht canon is net als hypotheekrente aftrekbaar voor de inkomstenbelasting.
Bijzonderheden:
• gebruiksoppervlak 104 m²;
• balkon op zuidwesten v.v. houten vloer 11 m²;
• vloerverwarming, per ruimte instelbaar;
• Siematic keuken met AEG inbouwapparatuur;
• eikenhouten lamel parketvloer;
• massief houten design deuren;
• screens aan balkonzijde + remote;
• op maat gemaakte horren;
• entree met lift, intercom en videofoon;
• binnentuin met waterpartij;
• parkeerplaats en berging in de parkeerkelder;
• zeer lage stookkosten Energielabel A;
• maandelijkse VvE bijdrage € 273,37 (incl parkeerplaats);
• gezonde en actieve VvE.
Kenmerken
| Bouwjaar | 2011 |
|---|---|
| Bouwvorm | bestaande bouw |
| Woonoppervlakte | 104 |
| Aantal kamers | 4 |
Overdracht
| Status | Verkocht onder voorbehoud |
|---|---|
| Prijs | € 550.000 Kosten koper |
| Aanvaarding | in overleg |
Bouw vorm
| Bouwjaar | 2011 |
|---|---|
| Bouwvorm | bestaande bouw |
Indeling
| Woonoppervlakte | 104 |
|---|---|
| Inhoud | 272 |
| Aantal kamers | 4 |
| Slaapkamers | 3 |
| Etages | 1 |
Tuin
| Tuin | Geen tuin |
|---|---|
| Aantal bergingen | 1 |
Parking
| Garage soort | Geen garage |
|---|
In de buurt
Wij kennen werkelijk iedere straat en elke hoek van Hilversum. Benieuwd wat een buurt je te bieden heeft? We kunnen je er alles over vertellen!




