Terug naar resultatenPrins Bernhardstraat 89
Prins Bernhardstraat 89
1211 GJ HILVERSUM
€ 500.000 k.k.
Omschrijving
In het centrum van Hilversum op steenworp afstand van het centraal station, ligt dit ruime 4-kamer appartement, gelegen op de 8e verdieping met balkon, berging en privé parkeerplaats in de ondergelegen garage. Dit energiezuinige (label A+) appartement maakt onderdeel uit van het moderne (2012) en ruim opgezette complex Entrada dat is voorzien van een liftinstallatie, een heerlijke binnentuin en een ondergrondse garage.
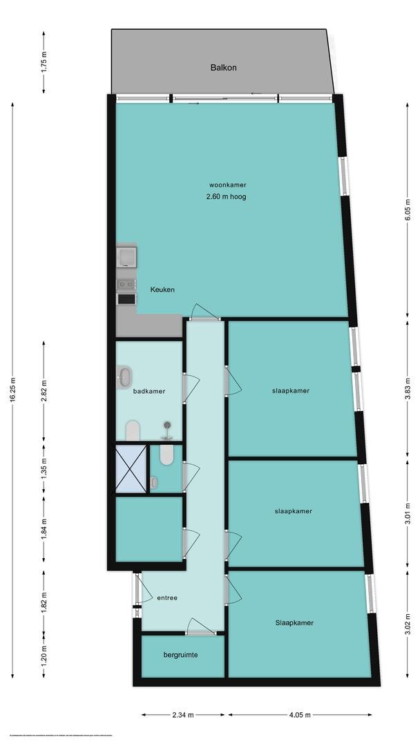
Indeling: Entree / hal, inpandige berging, technische ruimte met c.v-opstelling (Intergas 2012), WTW-installatie en aansluiting wasapparatuur. Drie ruime, in grootte variërende slaapkamers (resp. groot circa 11, 12 en 14 m2), lichte badkamer met inloopdouche, wastafel en 2e toilet. Deze badkamer biedt ook ruimte tot het plaatsen van een ligbad. Aan het einde van de hal bevindt zich de ruime en lichte woon- / eetkamer met veel daglichttoetreding door het zijraam en de panoramische pui naar het ruime balkon. De open keuken in L-opstelling is voorzien van een inductieplaat, wokbrander, afzuigkap, vaatwasser en carrouselkast. Het gehele appartement is voorzien van een pvc vloerafwerking en vloerverwarming die separaat per kamer regelbaar is.
Kortom een zeer centraal gelegen, modern en energiezuinig appartement met eigen parkeerplaats!
Bijzonderheden:
- Gebruiksoppervlakte wonen 105 m²;
- Privé parkeerplaats in ondergelegen garage;
- De servicekosten bedragen: € 273,37 per maand (incl pp);
- Erfpacht jaarlijks € 2.868,- (fiscaal aftrekbaar) erfpachtgever is gem Hilversum;
- Niet zelf bewoond clausule van toepassing;
- Energielabel A+.
+ Meer omschrijving
- Minder omschrijving
Indeling: Entree / hal, inpandige berging, technische ruimte met c.v-opstelling (Intergas 2012), WTW-installatie en aansluiting wasapparatuur. Drie ruime, in grootte variërende slaapkamers (resp. groot circa 11, 12 en 14 m2), lichte badkamer met inloopdouche, wastafel en 2e toilet. Deze badkamer biedt ook ruimte tot het plaatsen van een ligbad. Aan het einde van de hal bevindt zich de ruime en lichte woon- / eetkamer met veel daglichttoetreding door het zijraam en de panoramische pui naar het ruime balkon. De open keuken in L-opstelling is voorzien van een inductieplaat, wokbrander, afzuigkap, vaatwasser en carrouselkast. Het gehele appartement is voorzien van een pvc vloerafwerking en vloerverwarming die separaat per kamer regelbaar is.
Kortom een zeer centraal gelegen, modern en energiezuinig appartement met eigen parkeerplaats!
Bijzonderheden:
- Gebruiksoppervlakte wonen 105 m²;
- Privé parkeerplaats in ondergelegen garage;
- De servicekosten bedragen: € 273,37 per maand (incl pp);
- Erfpacht jaarlijks € 2.868,- (fiscaal aftrekbaar) erfpachtgever is gem Hilversum;
- Niet zelf bewoond clausule van toepassing;
- Energielabel A+.
Kenmerken
| Bouwjaar | 2012 |
|---|---|
| Bouwvorm | bestaande bouw |
| Woonoppervlakte | 105 |
| Aantal kamers | 4 |
Overdracht
| Status | Verkocht onder voorbehoud |
|---|---|
| Prijs | € 500.000 Kosten koper excl. € 273,37 servicekosten |
| Aanvaarding | in overleg |
Bouw vorm
| Bouwjaar | 2012 |
|---|---|
| Bouwvorm | bestaande bouw |
Indeling
| Woonoppervlakte | 105 |
|---|---|
| Inhoud | 335 |
| Aantal kamers | 4 |
| Slaapkamers | 3 |
| Etages | 1 |
Tuin
| Tuin | Geen tuin |
|---|---|
| Aantal bergingen | 1 |
Parking
| Garage soort | Parkeerplaats |
|---|
In de buurt
Wij kennen werkelijk iedere straat en elke hoek van Hilversum. Benieuwd wat een buurt je te bieden heeft? We kunnen je er alles over vertellen!





