Terug naar resultatenRadiostraat 87
Radiostraat 87
1223 BC HILVERSUM
€ 700.000 k.k.
Omschrijving
In een van de mooiste straten van de geliefde Astronomische buurt, bieden wij deze sfeervolle, uitgebouwde hoekwoning aan met eigen oprit gelegen op een royaal perceel van 267 m². De karakteristieke met klinkers bestrate Radiostraat ademt de typische jaren-’30 sfeer en is gelegen op loopafstand van winkelcentrum Seinhorst, in nabijheid van uitvalswegen, Goois natuurreservaat en het gezellige centrum op maar 5 minuten fietsen. Dit heerlijke gezinshuis beschikt over een voor- en zeer royale en zonnige achtertuin op het noordwesten (ca. 8 x 16 m!).
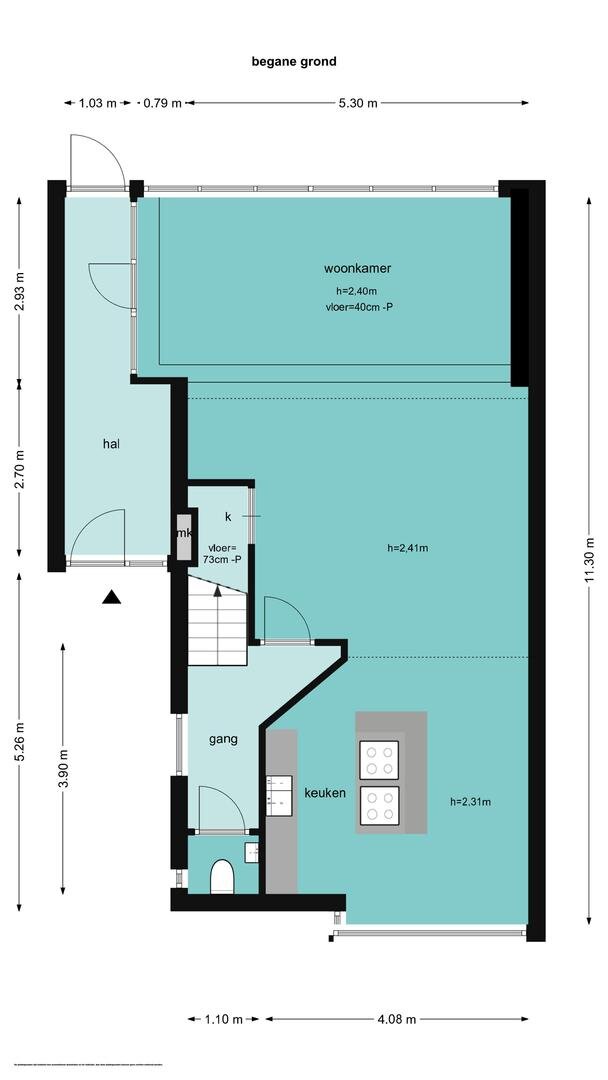
Indeling: entree via de zijkant van de woning, lichte hal met meterkast en voorzien van plavuizenvloer, toegang naar de achtertuin en via glazen wand met deur toegang naar de verdiepte uitbouw ook voorzien van plavuizenvloer. Via 2 tredes naar het royale zitgedeelte met trapkast en deur naar de gang met trapopgang en toilet met fonteintje. De woonkeuken is aan de voorzijde gesitueerd met kookeiland, elektrische kook- en teppanyakiplaat, afzuigkap, combi-magnetron, koelkast, vriezer, vaatwasser en dubbele spoelbak.
Eerste verdieping: overloop met daglicht en kast met wasmachine- en drogeraansluiting, drie in grootte variërende slaapkamers waarvan 2 slaapkamers met vaste kasten. De grote slaapkamer aan de achterzijde beschikt tevens over een wastafel. Nette moderne badkamer aan de voorzijde met douche, dubbele wastafel, 2e toilet en handdoekradiator.
Tweede verdieping: via vaste trap bereikbare ruime voorzolder met c.v.-ketel (Intergas 2021), 4e slaapkamer aan de achterzijde met wastafel 2 Velux dakramen. Deze zolderverdieping biedt volop mogelijkheden tot een indeling met een extra (bad)kamer!
Bijzonderheden:
- Woonoppervlak 108 m² exclusief zolder;
- Overige inpandige ruimte (zolder) 17 m²;
- Eigen oprit;
- Royale zonnige achtertuin;
- Gelegen in beschermd stads-/dorpsgezicht;
- Energielabel F.
+ Meer omschrijving
- Minder omschrijving
Indeling: entree via de zijkant van de woning, lichte hal met meterkast en voorzien van plavuizenvloer, toegang naar de achtertuin en via glazen wand met deur toegang naar de verdiepte uitbouw ook voorzien van plavuizenvloer. Via 2 tredes naar het royale zitgedeelte met trapkast en deur naar de gang met trapopgang en toilet met fonteintje. De woonkeuken is aan de voorzijde gesitueerd met kookeiland, elektrische kook- en teppanyakiplaat, afzuigkap, combi-magnetron, koelkast, vriezer, vaatwasser en dubbele spoelbak.
Eerste verdieping: overloop met daglicht en kast met wasmachine- en drogeraansluiting, drie in grootte variërende slaapkamers waarvan 2 slaapkamers met vaste kasten. De grote slaapkamer aan de achterzijde beschikt tevens over een wastafel. Nette moderne badkamer aan de voorzijde met douche, dubbele wastafel, 2e toilet en handdoekradiator.
Tweede verdieping: via vaste trap bereikbare ruime voorzolder met c.v.-ketel (Intergas 2021), 4e slaapkamer aan de achterzijde met wastafel 2 Velux dakramen. Deze zolderverdieping biedt volop mogelijkheden tot een indeling met een extra (bad)kamer!
Bijzonderheden:
- Woonoppervlak 108 m² exclusief zolder;
- Overige inpandige ruimte (zolder) 17 m²;
- Eigen oprit;
- Royale zonnige achtertuin;
- Gelegen in beschermd stads-/dorpsgezicht;
- Energielabel F.
Kenmerken
| Bouwjaar | 1931 |
|---|---|
| Bouwvorm | bestaande bouw |
| Woonoppervlakte | 108 |
| Aantal kamers | 5 |
Overdracht
| Status | Beschikbaar |
|---|---|
| Prijs | € 700.000 Kosten koper |
| Aanvaarding | in overleg |
Bouw vorm
| Bouwjaar | 1931 |
|---|---|
| Bouwvorm | bestaande bouw |
Indeling
| Woonoppervlakte | 108 |
|---|---|
| Inhoud | 425 |
| Aantal kamers | 5 |
| Slaapkamers | 4 |
| Etages | 3 |
Tuin
| Tuin | Achtertuin, Voortuin, Zijtuin |
|---|---|
| Hoofdtuin oppervlakte | 128 |
| Hoofdtuin positie | Noordwest |
Parking
| Garage soort | Geen garage |
|---|
In de buurt
Wij kennen werkelijk iedere straat en elke hoek van Hilversum. Benieuwd wat een buurt je te bieden heeft? We kunnen je er alles over vertellen!



Plan een bezichtiging
voor: Radiostraat 87
Bel ons op 035 625 20 70 of WhatsApp via 0356252070 voor direct contact. Of laat jouw gegevens achter en wij nemen zo snel mogelijk contact met je op.


