Terug naar resultatenRigelstraat 81
Rigelstraat 81
1223 AS HILVERSUM
€ 575.000 k.k.
Omschrijving
Charmante hoekwoning met zonnige tuin (zuidwest) in de Astronomische buurt.
In de geliefde Astronomische buurt ligt deze charmante 30-er jaren hoekwoning met een verrassend fraaie en zonnige achtertuin met stenen berging. Hier woon je rustig en groen, terwijl alle dagelijkse voorzieningen binnen handbereik zijn.
Op loopafstand bevindt zich winkelcentrum Seinhorst voor je dagelijkse boodschappen. Daarnaast ligt de Zuiderheide vlakbij – ideaal voor wandelen, fietsen en recreëren in de natuur.
De woning profiteert van een gunstige hoekligging, wat zorgt voor een ruimtelijk gevoel. De achtertuin is een echte blikvanger: een heerlijke plek om te ontspannen of om gezellig met familie en vrienden te genieten van lange zomeravonden.
Indeling
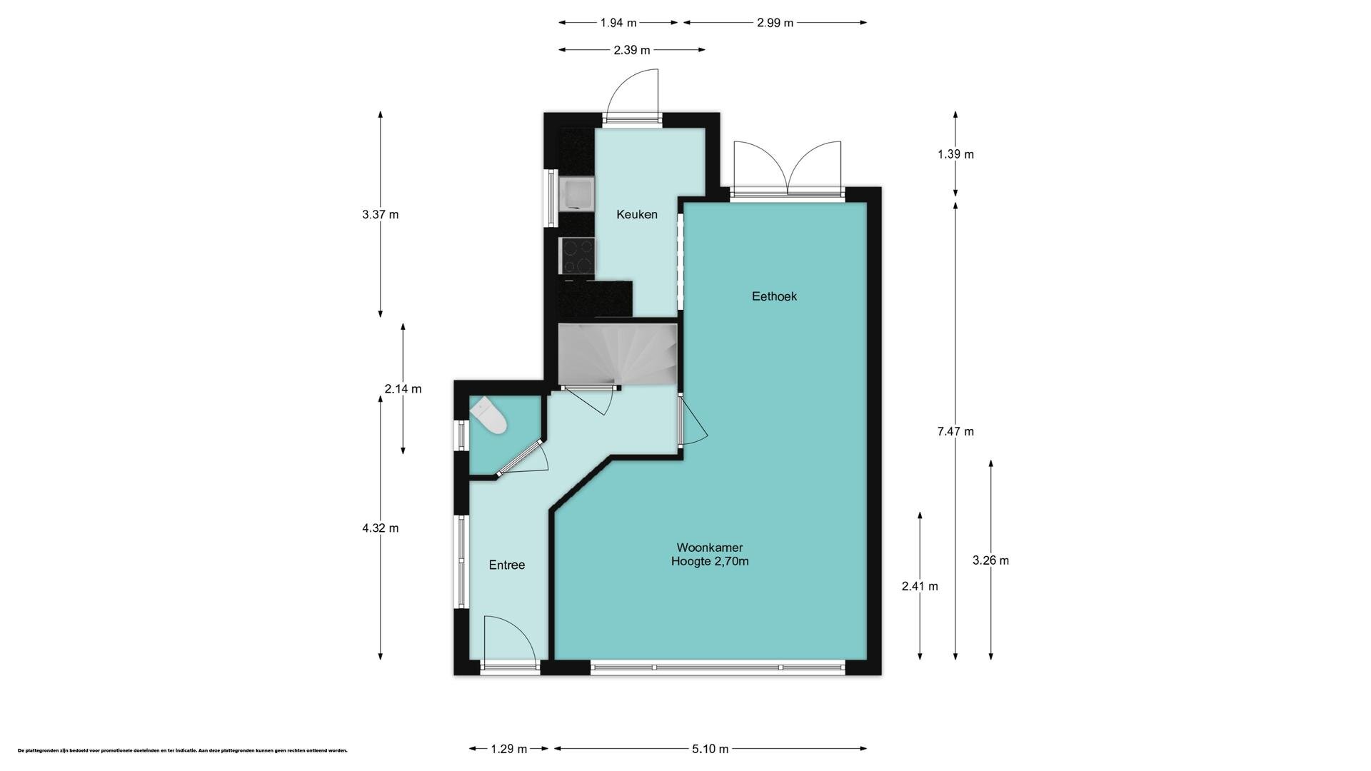
Begane grond: entree, hal, toilet, trapopgang, lichte L-vormige woon-/eetkamer met openslaande deuren naar de tuin, halfopen keuken.
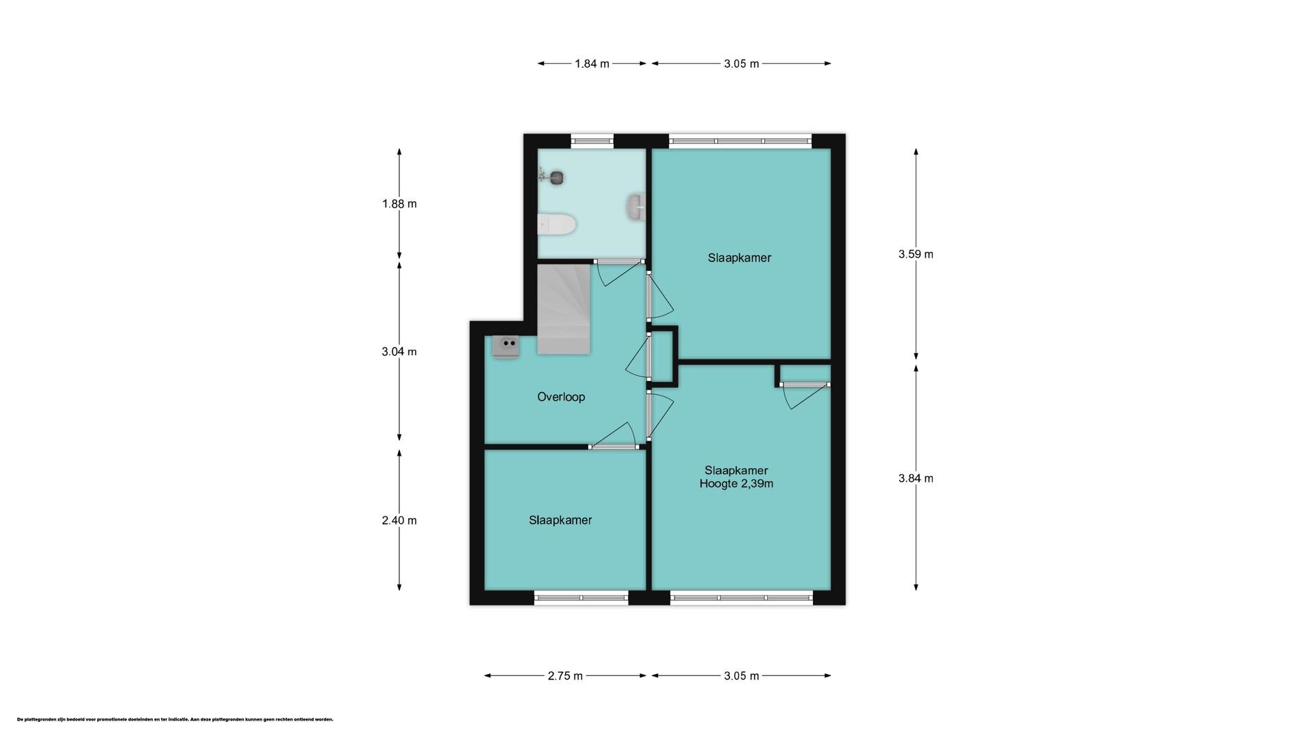
Eerste verdieping: overloop, drie ruime slaapkamers, eenvoudige badkamer.
Tweede verdieping: via vaste trap bereikbare grote open zolderruimte met mogelijkheden.
Kenmerken
• Woonoppervlakte: 110 m²
• Achtertuin 14 meter diep en 7 meter breed op het zuidwesten.
• Perceeloppervlakte: 233 m²
• Energielabel: C
• Dakpannen recent vervangen
• Zonnige achtertuin
Ligging
Gelegen in een rustige, groene woonomgeving met winkels, natuur en uitvalswegen in de directe nabijheid.
Kortom
Een fijne gezinswoning op een aantrekkelijke locatie waar comfort, rust en bereikbaarheid samenkomen. Plan snel een bezichtiging en laat je verrassen!
+ Meer omschrijving
- Minder omschrijving
In de geliefde Astronomische buurt ligt deze charmante 30-er jaren hoekwoning met een verrassend fraaie en zonnige achtertuin met stenen berging. Hier woon je rustig en groen, terwijl alle dagelijkse voorzieningen binnen handbereik zijn.
Op loopafstand bevindt zich winkelcentrum Seinhorst voor je dagelijkse boodschappen. Daarnaast ligt de Zuiderheide vlakbij – ideaal voor wandelen, fietsen en recreëren in de natuur.
De woning profiteert van een gunstige hoekligging, wat zorgt voor een ruimtelijk gevoel. De achtertuin is een echte blikvanger: een heerlijke plek om te ontspannen of om gezellig met familie en vrienden te genieten van lange zomeravonden.
Indeling
Begane grond: entree, hal, toilet, trapopgang, lichte L-vormige woon-/eetkamer met openslaande deuren naar de tuin, halfopen keuken.
Eerste verdieping: overloop, drie ruime slaapkamers, eenvoudige badkamer.
Tweede verdieping: via vaste trap bereikbare grote open zolderruimte met mogelijkheden.
Kenmerken
• Woonoppervlakte: 110 m²
• Achtertuin 14 meter diep en 7 meter breed op het zuidwesten.
• Perceeloppervlakte: 233 m²
• Energielabel: C
• Dakpannen recent vervangen
• Zonnige achtertuin
Ligging
Gelegen in een rustige, groene woonomgeving met winkels, natuur en uitvalswegen in de directe nabijheid.
Kortom
Een fijne gezinswoning op een aantrekkelijke locatie waar comfort, rust en bereikbaarheid samenkomen. Plan snel een bezichtiging en laat je verrassen!
Kenmerken
| Bouwjaar | 1931 |
|---|---|
| Bouwvorm | bestaande bouw |
| Woonoppervlakte | 110 |
| Aantal kamers | 5 |
Overdracht
| Status | Verkocht onder voorbehoud |
|---|---|
| Prijs | € 575.000 Kosten koper |
| Aanvaarding | in overleg |
Bouw vorm
| Bouwjaar | 1931 |
|---|---|
| Bouwvorm | bestaande bouw |
Indeling
| Woonoppervlakte | 110 |
|---|---|
| Inhoud | 399 |
| Aantal kamers | 5 |
| Slaapkamers | 4 |
| Etages | 3 |
Tuin
| Tuin | Achtertuin, Voortuin, Zijtuin |
|---|---|
| Hoofdtuin oppervlakte | 98 |
| Hoofdtuin positie | Zuidwest |
| Aantal bergingen | 1 |
Parking
| Garage soort | Geen garage |
|---|
In de buurt
Wij kennen werkelijk iedere straat en elke hoek van Hilversum. Benieuwd wat een buurt je te bieden heeft? We kunnen je er alles over vertellen!






