Terug naar resultatenSchapenkamp 250
Schapenkamp 250
1211 PB HILVERSUM
€ 495.000 k.k.
Omschrijving
Schapenkamp 250, Hilversum
Tegen het centrum van Hilversum staat deze vrijstaande voormalige dienstwoning uit 1894, behorend bij de tegenovergelegen, beroemde St. Vituskerk. Dit gemeentelijk monument ademt historie en karakter en biedt een bijzondere kans voor liefhebbers van authentieke woningen die een pand geheel naar eigen inzicht willen renoveren en moderniseren.
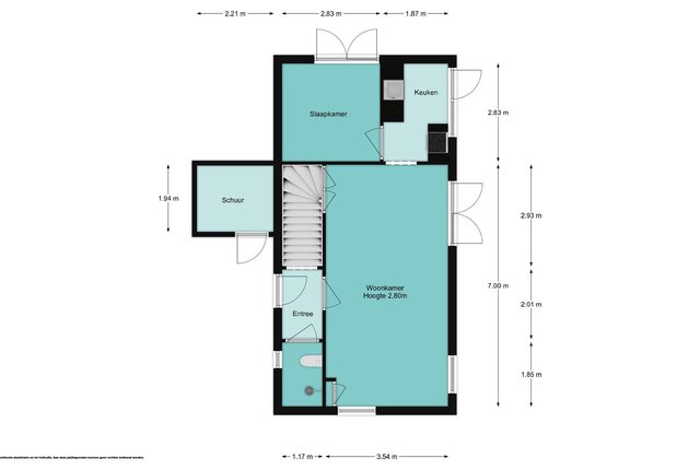
De woning heeft een woonoppervlakte van 71 m² en staat op een ruim perceel met een tuin rondom, waardoor er veel privacy en mogelijkheden zijn voor tuinliefhebbers. Het pand beschikt bovendien over een aangebouwde schuur.
Indeling
Begane grond:
Entree met trapopgang naar de verdieping. Vanuit de hal bereikt u de eenvoudige douche-/toiletcombinatie. De woon-/eetkamer is voorzien van een praktische trapkast en openslaande deuren naar de tuin, waardoor binnen en buiten op een prettige manier met elkaar verbonden worden. Aansluitend bevindt zich de keuken en een slaapkamer op de begane grond.
Eerste verdieping:
Via een vaste trap bereikt u de open ongeïsoleerde zolderverdieping, die naar wens kan worden ingericht.
Bijzonderheden
- Vrijstaande woning;
- Bouwjaar: 1894;
- Gemeentelijk monument;
- Woonoppervlakte 71 m²;
- Ruime tuin rondom;
- Aangebouwde schuur;
- Voormalige dienstwoning van de St. Vituskerk;
- Woning dient gerenoveerd te worden, met volop mogelijkheden om deze naar eigen smaak te herstellen en te verduurzamen;
- De gemeente Hilversum stelt subsidies beschikbaar voor renovatie en verduurzaming van gemeentelijke monumenten (zie website gemeente Hilversum voor de voorwaarden).
Een bijzonder object met historische waarde, dat wacht op een nieuwe eigenaar die de charme van dit karakteristieke pand weer volledig tot zijn recht laat komen.
+ Meer omschrijving
- Minder omschrijving
Tegen het centrum van Hilversum staat deze vrijstaande voormalige dienstwoning uit 1894, behorend bij de tegenovergelegen, beroemde St. Vituskerk. Dit gemeentelijk monument ademt historie en karakter en biedt een bijzondere kans voor liefhebbers van authentieke woningen die een pand geheel naar eigen inzicht willen renoveren en moderniseren.
De woning heeft een woonoppervlakte van 71 m² en staat op een ruim perceel met een tuin rondom, waardoor er veel privacy en mogelijkheden zijn voor tuinliefhebbers. Het pand beschikt bovendien over een aangebouwde schuur.
Indeling
Begane grond:
Entree met trapopgang naar de verdieping. Vanuit de hal bereikt u de eenvoudige douche-/toiletcombinatie. De woon-/eetkamer is voorzien van een praktische trapkast en openslaande deuren naar de tuin, waardoor binnen en buiten op een prettige manier met elkaar verbonden worden. Aansluitend bevindt zich de keuken en een slaapkamer op de begane grond.
Eerste verdieping:
Via een vaste trap bereikt u de open ongeïsoleerde zolderverdieping, die naar wens kan worden ingericht.
Bijzonderheden
- Vrijstaande woning;
- Bouwjaar: 1894;
- Gemeentelijk monument;
- Woonoppervlakte 71 m²;
- Ruime tuin rondom;
- Aangebouwde schuur;
- Voormalige dienstwoning van de St. Vituskerk;
- Woning dient gerenoveerd te worden, met volop mogelijkheden om deze naar eigen smaak te herstellen en te verduurzamen;
- De gemeente Hilversum stelt subsidies beschikbaar voor renovatie en verduurzaming van gemeentelijke monumenten (zie website gemeente Hilversum voor de voorwaarden).
Een bijzonder object met historische waarde, dat wacht op een nieuwe eigenaar die de charme van dit karakteristieke pand weer volledig tot zijn recht laat komen.
Kenmerken
| Bouwjaar | 1894 |
|---|---|
| Bouwvorm | bestaande bouw |
| Woonoppervlakte | 71 |
| Aantal kamers | 2 |
Overdracht
| Status | Beschikbaar |
|---|---|
| Prijs | € 495.000 Kosten koper |
| Aanvaarding | in overleg |
Bouw vorm
| Bouwjaar | 1894 |
|---|---|
| Bouwvorm | bestaande bouw |
Indeling
| Woonoppervlakte | 71 |
|---|---|
| Inhoud | 252 |
| Aantal kamers | 2 |
| Slaapkamers | 1 |
| Etages | 2 |
Tuin
| Tuin | Tuin rondom |
|---|---|
| Aantal bergingen | 1 |
Parking
| Garage soort | Geen garage |
|---|
In de buurt
Wij kennen werkelijk iedere straat en elke hoek van Hilversum. Benieuwd wat een buurt je te bieden heeft? We kunnen je er alles over vertellen!



Plan een bezichtiging
voor: Schapenkamp 250
Bel ons op 035 625 20 70 of WhatsApp via 0356252070 voor direct contact. Of laat jouw gegevens achter en wij nemen zo snel mogelijk contact met je op.

