Terug naar resultatenSiemensstraat 4
Siemensstraat 4
1221 CR HILVERSUM
€ 595.000 k.k.
Omschrijving
Een woning waar u zo in kunt!
Sfeervolle, lichte en goed onderhouden hoekwoning, gelegen in kindvriendelijke straat met eenrichtingsverkeer, een speeltuintje op de hoek én op loopafstand van winkelcentrum Seinhorst en station Hilversum. De woning heeft een voor- en heerlijk zonnige achtertuin welke is gesitueerd op het zuiden en heeft een overkapping en bereikbaar via achterom.
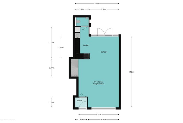
Indeling: entree / vestibule met garderobe, royale en lichte woon- / eetkamer met trapopgang, trapkast met meterkast en aan de achterzijde openslaande deuren naar de tuin. De L-vormige open keuken is voorzien van een granieten aanrechtblad, vaatwasmachine, afzuigkap, gaskookplaat, combi-oven, koelkast en vriezer met lades, toegang naar modern toilet met fontein. Begane grondvloer is voorzien van vloerverwarming afgewerkt met een fraaie pvc visgraat vloer, glad gestuukte wanden en plafonds met sierlijst.
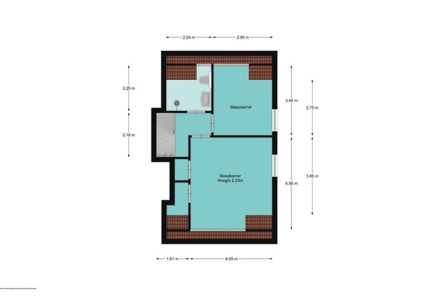
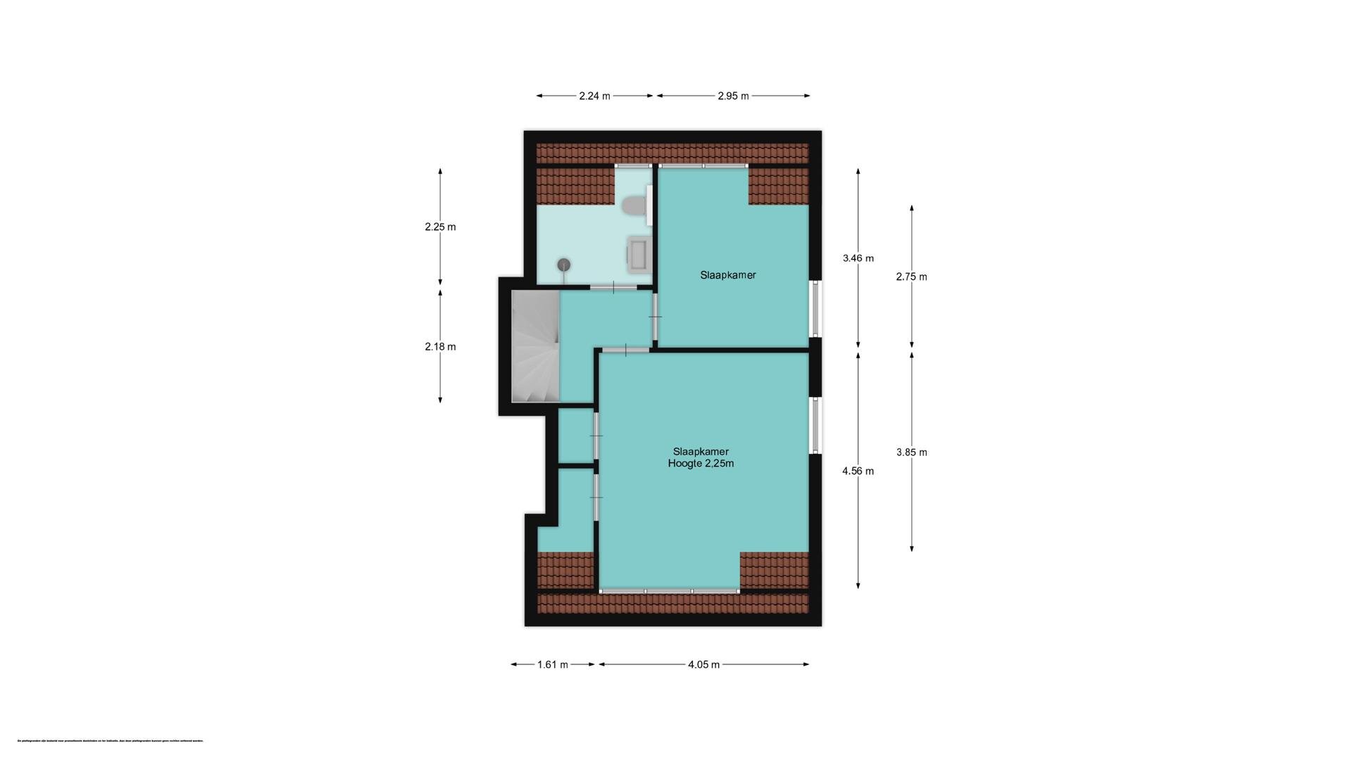
Eerste verdieping: overloop, moderne en recent verbouwde badkamer (2025) aan de achterzijde met inloopdouche, wastafelmeubel, spiegel met verlichting, handdoekradiator en tweede toilet. Ruime ouderslaapkamer (ca. 17 m²) aan de voorzijde met dakkapel en vaste kastruimte, 2e slaapkamer (ca. 10 m²) met dakkapel aan de achterzijde van de woning. Ook deze verdieping is voorzien van visgraat pvc vloer.
Tweede verdieping: via vaste trap bereikbare voorzolder met daglicht door kleine dakkapel, c.v.-opstelling (2019), aansluiting wasapparatuur, spoelbak en bergruimte achter knieschotten. Fraaie zolderkamer met knieschotten, dakkapel en Velux dakraam. Ook deze verdieping is voorzien van een visgraatvloer.
Kortom een heerlijk en licht gezinshuis waar u zonder te verbouwen in kan trekken!
Bijzonderheden:
- Woonoppervlak 106 m²;
- Perceel 160 m²;
- Badkamer vernieuwd in 2025;
- Begane grondvloer v.v. vloerverwarming;
- Grotendeels v.v. HR++ beglazing;
- Pannendak is al een keer vernieuwd;
- Energielabel C.
+ Meer omschrijving
- Minder omschrijving
Sfeervolle, lichte en goed onderhouden hoekwoning, gelegen in kindvriendelijke straat met eenrichtingsverkeer, een speeltuintje op de hoek én op loopafstand van winkelcentrum Seinhorst en station Hilversum. De woning heeft een voor- en heerlijk zonnige achtertuin welke is gesitueerd op het zuiden en heeft een overkapping en bereikbaar via achterom.
Indeling: entree / vestibule met garderobe, royale en lichte woon- / eetkamer met trapopgang, trapkast met meterkast en aan de achterzijde openslaande deuren naar de tuin. De L-vormige open keuken is voorzien van een granieten aanrechtblad, vaatwasmachine, afzuigkap, gaskookplaat, combi-oven, koelkast en vriezer met lades, toegang naar modern toilet met fontein. Begane grondvloer is voorzien van vloerverwarming afgewerkt met een fraaie pvc visgraat vloer, glad gestuukte wanden en plafonds met sierlijst.
Eerste verdieping: overloop, moderne en recent verbouwde badkamer (2025) aan de achterzijde met inloopdouche, wastafelmeubel, spiegel met verlichting, handdoekradiator en tweede toilet. Ruime ouderslaapkamer (ca. 17 m²) aan de voorzijde met dakkapel en vaste kastruimte, 2e slaapkamer (ca. 10 m²) met dakkapel aan de achterzijde van de woning. Ook deze verdieping is voorzien van visgraat pvc vloer.
Tweede verdieping: via vaste trap bereikbare voorzolder met daglicht door kleine dakkapel, c.v.-opstelling (2019), aansluiting wasapparatuur, spoelbak en bergruimte achter knieschotten. Fraaie zolderkamer met knieschotten, dakkapel en Velux dakraam. Ook deze verdieping is voorzien van een visgraatvloer.
Kortom een heerlijk en licht gezinshuis waar u zonder te verbouwen in kan trekken!
Bijzonderheden:
- Woonoppervlak 106 m²;
- Perceel 160 m²;
- Badkamer vernieuwd in 2025;
- Begane grondvloer v.v. vloerverwarming;
- Grotendeels v.v. HR++ beglazing;
- Pannendak is al een keer vernieuwd;
- Energielabel C.
Kenmerken
| Bouwjaar | 1930 |
|---|---|
| Bouwvorm | bestaande bouw |
| Woonoppervlakte | 106 |
| Aantal kamers | 4 |
Overdracht
| Status | Beschikbaar |
|---|---|
| Prijs | € 595.000 Kosten koper |
| Aanvaarding | in overleg |
Bouw vorm
| Bouwjaar | 1930 |
|---|---|
| Bouwvorm | bestaande bouw |
Indeling
| Woonoppervlakte | 106 |
|---|---|
| Inhoud | 345 |
| Aantal kamers | 4 |
| Slaapkamers | 3 |
| Etages | 3 |
Tuin
| Tuin | Achtertuin, Voortuin |
|---|---|
| Hoofdtuin oppervlakte | 48 |
| Hoofdtuin positie | Zuidoost |
Parking
| Garage soort | Geen garage |
|---|
In de buurt
Wij kennen werkelijk iedere straat en elke hoek van Hilversum. Benieuwd wat een buurt je te bieden heeft? We kunnen je er alles over vertellen!



Plan een bezichtiging
voor: Siemensstraat 4
Bel ons op 035 625 20 70 of WhatsApp via 0356252070 voor direct contact. Of laat jouw gegevens achter en wij nemen zo snel mogelijk contact met je op.


