Terug naar resultatenSimon Stevinweg 75
Simon Stevinweg 75
1222 SN HILVERSUM
€ 890.000 k.k.
Omschrijving
Aan de Simon Stevinweg, net iets van de straat af, vind je deze verrassend ruime en charmante twee-onder-een-kapwoning van maar liefst 142 m². Een huis dat direct goed voelt: instapklaar, stijlvol en keurig verzorgd.
De woning is aan de achterzijde over de volle breedte uitgebouwd en verrast met een royale leefkeuken – het kloppend hart van het huis – voorzien van vloerverwarming en een moderne lichtstraat die zorgt voor een prachtige lichtinval.
Duurzaam wonen doe je hier ook: dankzij zonnepanelen, vloer- en spouwmuurisolatie is het huis niet alleen comfortabel, maar ook energiezuinig.
Aan de voorzijde ligt een voortuin met eigen oprit, terwijl de zonnige achtertuin meerdere zitplekken biedt, een gezellige overkapping en een vrijstaande schuur. Hier geniet je in alle rust van het buitenleven, met ruimte om je heen én alle voorzieningen binnen handbereik.
Locatie:
De woning ligt aan een rustige ventweg – dus nauwelijks verkeer voor de deur – maar wel centraal ten opzichte van alles wat je nodig hebt. Binnen enkele minuten bereik je winkels, scholen, sportverenigingen, het NS-station en prachtige natuurgebieden. Dankzij de uitvalswegen om de hoek ben je bovendien in een mum van tijd in Amsterdam of Utrecht.
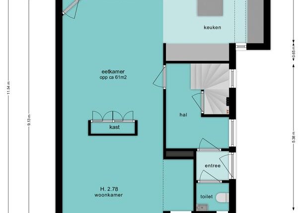
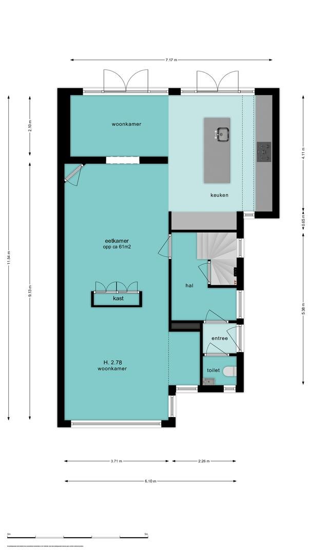
Begane grond
Via de entree stap je binnen in een lichte hal met modern toilet en trapopgang. Vanuit hier heb je ook toegang tot de praktische kelder — ideaal als extra bergruimte. De woonkamer voelt direct ruim en uitnodigend aan, met grote ramen die voor veel daglicht zorgen. Aan de achterzijde loopt de woonkamer naadloos over in de royale keuken met eiland.
Deze keuken is voorzien van alle moderne gemakken en heeft een open, gezellige sfeer. Dankzij de lichtstraat stroomt het daglicht volop binnen, wat de ruimte een heerlijk luchtig gevoel geeft. Aansluitend bevindt zich de tuinkamer, ideaal als studeer- of speelkamer. Via de openslaande deuren in zowel de keuken als de tuinkamer stap je zo de zonnige achtertuin in – binnen en buiten lopen hier moeiteloos in elkaar over.
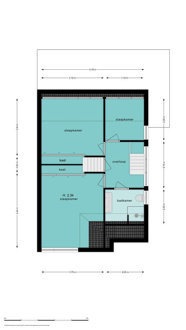
Eerste verdieping
De ruime overloop geeft toegang tot drie comfortabele slaapkamers: twee aan de achterzijde en een royale kamer aan de voorzijde. De twee grootste kamers beschikken over handige inbouwkasten. De badkamer is modern en compleet, uitgerust met een douche, dubbele wastafel, tweede toilet en vloerverwarming voor extra comfort.
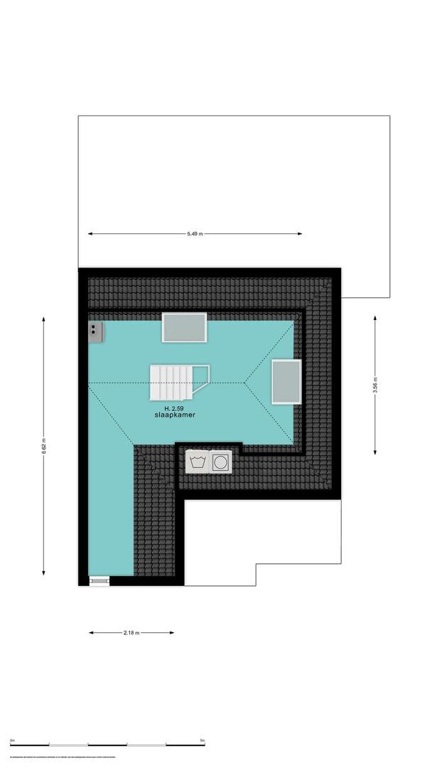
Zolderverdieping
De ruime zolder is een echte verrassing: opvallend licht door de dakramen en multifunctioneel in gebruik. Hier vind je de aansluitingen voor wasmachine, droger en de cv-installatie, maar ook volop mogelijkheden voor een vierde slaapkamer, werkkamer of atelier.
Kortom, op zoek naar een instapklare woning met karakter, comfort en verrassend veel ruimte? Bel gerust, wij verwelkomen je graag.
+ Meer omschrijving
- Minder omschrijving
De woning is aan de achterzijde over de volle breedte uitgebouwd en verrast met een royale leefkeuken – het kloppend hart van het huis – voorzien van vloerverwarming en een moderne lichtstraat die zorgt voor een prachtige lichtinval.
Duurzaam wonen doe je hier ook: dankzij zonnepanelen, vloer- en spouwmuurisolatie is het huis niet alleen comfortabel, maar ook energiezuinig.
Aan de voorzijde ligt een voortuin met eigen oprit, terwijl de zonnige achtertuin meerdere zitplekken biedt, een gezellige overkapping en een vrijstaande schuur. Hier geniet je in alle rust van het buitenleven, met ruimte om je heen én alle voorzieningen binnen handbereik.
Locatie:
De woning ligt aan een rustige ventweg – dus nauwelijks verkeer voor de deur – maar wel centraal ten opzichte van alles wat je nodig hebt. Binnen enkele minuten bereik je winkels, scholen, sportverenigingen, het NS-station en prachtige natuurgebieden. Dankzij de uitvalswegen om de hoek ben je bovendien in een mum van tijd in Amsterdam of Utrecht.
Begane grond
Via de entree stap je binnen in een lichte hal met modern toilet en trapopgang. Vanuit hier heb je ook toegang tot de praktische kelder — ideaal als extra bergruimte. De woonkamer voelt direct ruim en uitnodigend aan, met grote ramen die voor veel daglicht zorgen. Aan de achterzijde loopt de woonkamer naadloos over in de royale keuken met eiland.
Deze keuken is voorzien van alle moderne gemakken en heeft een open, gezellige sfeer. Dankzij de lichtstraat stroomt het daglicht volop binnen, wat de ruimte een heerlijk luchtig gevoel geeft. Aansluitend bevindt zich de tuinkamer, ideaal als studeer- of speelkamer. Via de openslaande deuren in zowel de keuken als de tuinkamer stap je zo de zonnige achtertuin in – binnen en buiten lopen hier moeiteloos in elkaar over.
Eerste verdieping
De ruime overloop geeft toegang tot drie comfortabele slaapkamers: twee aan de achterzijde en een royale kamer aan de voorzijde. De twee grootste kamers beschikken over handige inbouwkasten. De badkamer is modern en compleet, uitgerust met een douche, dubbele wastafel, tweede toilet en vloerverwarming voor extra comfort.
Zolderverdieping
De ruime zolder is een echte verrassing: opvallend licht door de dakramen en multifunctioneel in gebruik. Hier vind je de aansluitingen voor wasmachine, droger en de cv-installatie, maar ook volop mogelijkheden voor een vierde slaapkamer, werkkamer of atelier.
Kortom, op zoek naar een instapklare woning met karakter, comfort en verrassend veel ruimte? Bel gerust, wij verwelkomen je graag.
Kenmerken
| Bouwjaar | 1928 |
|---|---|
| Bouwvorm | bestaande bouw |
| Woonoppervlakte | 142 |
| Aantal kamers | 6 |
Overdracht
| Status | Verkocht onder voorbehoud |
|---|---|
| Prijs | € 890.000 Kosten koper |
| Aanvaarding | in overleg |
Bouw vorm
| Bouwjaar | 1928 |
|---|---|
| Bouwvorm | bestaande bouw |
Indeling
| Woonoppervlakte | 142 |
|---|---|
| Inhoud | 533 |
| Aantal kamers | 6 |
| Slaapkamers | 4 |
| Etages | 4 |
Tuin
| Tuin | Achtertuin, Voortuin |
|---|---|
| Hoofdtuin oppervlakte | 80 |
| Hoofdtuin positie | Noordwest |
| Aantal bergingen | 1 |
Parking
| Garage soort | Geen garage |
|---|
In de buurt
Wij kennen werkelijk iedere straat en elke hoek van Hilversum. Benieuwd wat een buurt je te bieden heeft? We kunnen je er alles over vertellen!







