Terug naar resultatenStieltjeslaan 19
Stieltjeslaan 19
1222 RC HILVERSUM
€ 1.049.500 k.k.
Omschrijving
Karakter, ruimte en charme in het hart van Hilversum
In één van de sfeervolle jaren ’30 wijken die Hilversum zo geliefd maken, ligt deze bijzonder royale hoekwoning aan de Stieltjeslaan 19. Een huis waar stijl, comfort en karakter samenkomen – met originele details zoals glas-in-loodramen, paneeldeuren en authentiek tegelwerk, gecombineerd met het gemak van moderne voorzieningen.
De woning ligt op loopafstand van het bruisende centrum van Hilversum en het NS-station met uitstekende verbindingen naar Amsterdam en Utrecht. Scholen, supermarkten en uitvalswegen zijn binnen handbereik, waardoor dit het ideale thuis is voor gezinnen en forenzen die het beste van twee werelden zoeken: rust en bereikbaarheid.
Indeling
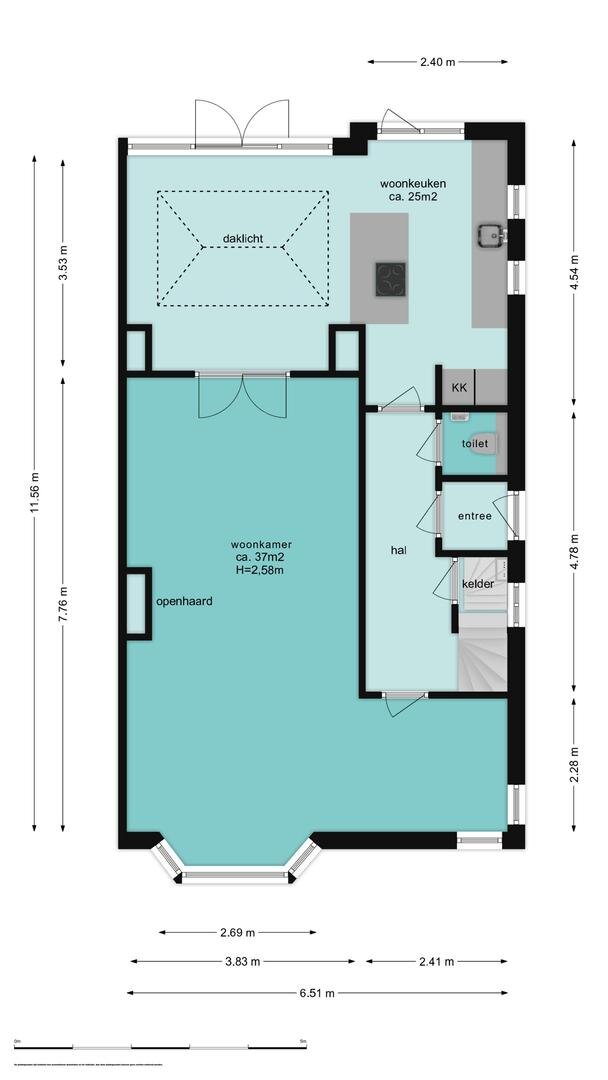
Bij binnenkomst via de vestibule ervaart u direct de warme sfeer van de woning. De hal met trapopgang en toegang tot het toilet en de provisiekelder leidt naar de L-vormige woonkamer met erker, open haard en eikenhouten vloer. Hier is het heerlijk thuiskomen.
De sfeervolle eetkeuken vormt het hart van het huis – voorzien van moderne inbouwapparatuur, een kookeiland, daklicht en openslaande deuren naar de besloten achtertuin. In de tuin bevindt zich een ruime berging met bergvliering, momenteel in gebruik als gezellige ‘chillruimte’.
Verdiepingen
Op de eerste verdieping vindt u twee ruime slaapkamers waarvan één met inloopkast, en een moderne badkamer met inloopdouche, toilet, wastafel en designradiator.
De tweede verdieping verrast met nog twee slaapkamers – waarvan één met dakkapel – een tweede badkamer met ligbad, inloopdouche en dubbele wastafel, én een aparte wasruimte met derde toilet. De verdieping is afgewerkt met een stijlvolle visgraat PVC-vloer en biedt toegang tot de ruime bergvliering.
Buitenleven
De woning beschikt over een zonnige voortuin op het zuiden, waar u in alle rust kunt genieten van privacy en groen. De besloten achtertuin biedt ruimte voor ontspannen avonden en gezelligheid met familie of vrienden. De tuinen zijn voorzien van sfeerverlichting.
Kortom: Een bijzonder sfeervolle en verzorgde jaren ’30 hoekwoning met karakter, licht en leefruimte in overvloed – op een toplocatie nabij het centrum van Hilversum.
Wij nodigen u van harte uit om de sfeer zelf te komen proeven tijdens een bezichtiging.
+ Meer omschrijving
- Minder omschrijving
In één van de sfeervolle jaren ’30 wijken die Hilversum zo geliefd maken, ligt deze bijzonder royale hoekwoning aan de Stieltjeslaan 19. Een huis waar stijl, comfort en karakter samenkomen – met originele details zoals glas-in-loodramen, paneeldeuren en authentiek tegelwerk, gecombineerd met het gemak van moderne voorzieningen.
De woning ligt op loopafstand van het bruisende centrum van Hilversum en het NS-station met uitstekende verbindingen naar Amsterdam en Utrecht. Scholen, supermarkten en uitvalswegen zijn binnen handbereik, waardoor dit het ideale thuis is voor gezinnen en forenzen die het beste van twee werelden zoeken: rust en bereikbaarheid.
Indeling
Bij binnenkomst via de vestibule ervaart u direct de warme sfeer van de woning. De hal met trapopgang en toegang tot het toilet en de provisiekelder leidt naar de L-vormige woonkamer met erker, open haard en eikenhouten vloer. Hier is het heerlijk thuiskomen.
De sfeervolle eetkeuken vormt het hart van het huis – voorzien van moderne inbouwapparatuur, een kookeiland, daklicht en openslaande deuren naar de besloten achtertuin. In de tuin bevindt zich een ruime berging met bergvliering, momenteel in gebruik als gezellige ‘chillruimte’.
Verdiepingen
Op de eerste verdieping vindt u twee ruime slaapkamers waarvan één met inloopkast, en een moderne badkamer met inloopdouche, toilet, wastafel en designradiator.
De tweede verdieping verrast met nog twee slaapkamers – waarvan één met dakkapel – een tweede badkamer met ligbad, inloopdouche en dubbele wastafel, én een aparte wasruimte met derde toilet. De verdieping is afgewerkt met een stijlvolle visgraat PVC-vloer en biedt toegang tot de ruime bergvliering.
Buitenleven
De woning beschikt over een zonnige voortuin op het zuiden, waar u in alle rust kunt genieten van privacy en groen. De besloten achtertuin biedt ruimte voor ontspannen avonden en gezelligheid met familie of vrienden. De tuinen zijn voorzien van sfeerverlichting.
Kortom: Een bijzonder sfeervolle en verzorgde jaren ’30 hoekwoning met karakter, licht en leefruimte in overvloed – op een toplocatie nabij het centrum van Hilversum.
Wij nodigen u van harte uit om de sfeer zelf te komen proeven tijdens een bezichtiging.
Kenmerken
| Bouwjaar | 1932 |
|---|---|
| Bouwvorm | bestaande bouw |
| Woonoppervlakte | 171 |
| Aantal kamers | 5 |
Overdracht
| Status | Beschikbaar |
|---|---|
| Prijs | € 1.049.500 Kosten koper |
| Aanvaarding | in overleg |
Bouw vorm
| Bouwjaar | 1932 |
|---|---|
| Bouwvorm | bestaande bouw |
Indeling
| Woonoppervlakte | 171 |
|---|---|
| Inhoud | 600 |
| Aantal kamers | 5 |
| Slaapkamers | 4 |
| Etages | 5 |
Tuin
| Tuin | Achtertuin, Voortuin, Zijtuin |
|---|---|
| Hoofdtuin oppervlakte | 56 |
| Hoofdtuin positie | Noordwest |
| Aantal bergingen | 1 |
Parking
| Garage soort | Geen garage |
|---|
In de buurt
Wij kennen werkelijk iedere straat en elke hoek van Hilversum. Benieuwd wat een buurt je te bieden heeft? We kunnen je er alles over vertellen!



Plan een bezichtiging
voor: Stieltjeslaan 19
Bel ons op 035 625 20 70 of WhatsApp via 0356252070 voor direct contact. Of laat jouw gegevens achter en wij nemen zo snel mogelijk contact met je op.






