Terug naar resultatenTulpstraat 29
Tulpstraat 29
1214 CC HILVERSUM
€ 650.000 k.k.
Omschrijving
Ruime en karaktervolle twee-onder-een-kapwoning met diepe achtertuin en royaal bijgebouw in Bloemenkwartier.
In het rustige en geliefde Bloemenkwartier in Hilversum Zuid ligt deze sfeervolle en verrassend ruime twee-onder-een-kapwoning met een woonoppervlakte van ca. 132 m², een diepe achtertuin en een ROYAAL BIJGEBOUW van ca. 65 m².
Een fijne gezinswoning met veel leefruimte, zowel binnen als buiten.
LOCATIE
De woning ligt op korte afstand van het winkelgebied Gijsbrecht van Amstelstraat, het centrum van Hilversum, NS-stations Sportpark en Centraal, openbaar vervoer, park ‘De Oude Haven’, (internationale) scholen, kinderopvang, heide, bos, sportvoorzieningen en uitvalswegen.
INDELING
Begane grond:
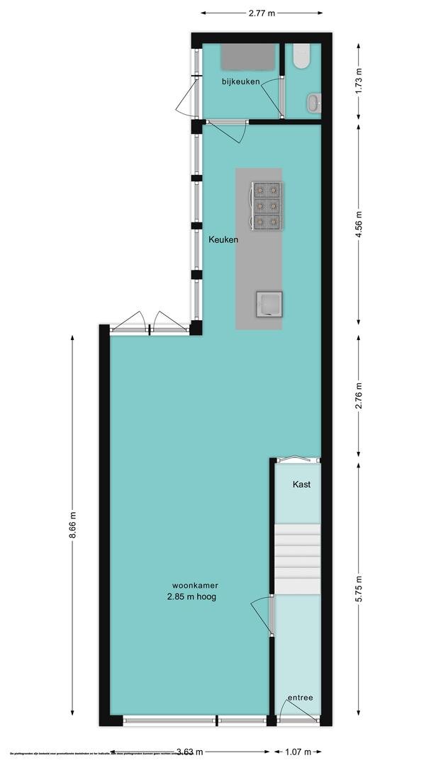
Entree met hal en trapopgang. Vanuit de hal komt u in de ruime en sfeervolle woon-/eetkamer, van waaruit met openslaande deuren de diepe achtertuin bereikbaar is én de trapkast en kelder, ideaal als extra bergruimte. Aan de achterzijde van de ruimte bevindt zich de open keuken met kookeiland en eetgedeelte. De keuken staat in directe verbinding met de bijkeuken en het separate toilet.
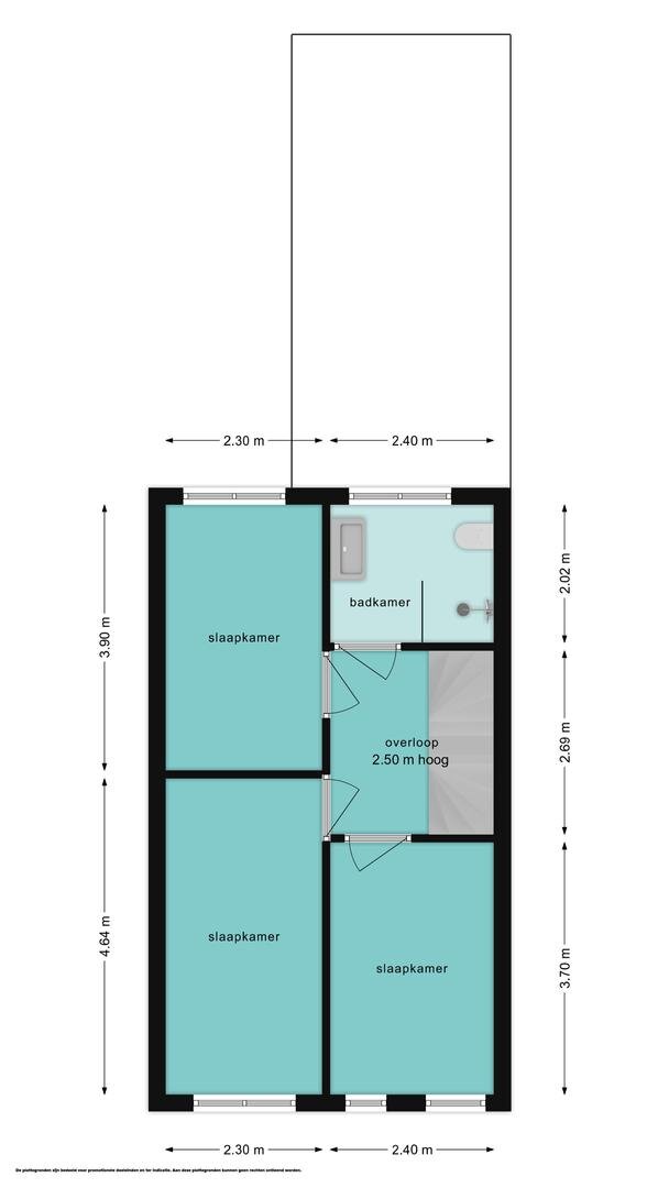
Eerste verdieping:
Overloop met toegang tot drie slaapkamers en de badkamer. De slaapkamers zijn praktisch ingedeeld en prettig van formaat. De badkamer is voorzien van een inloopdouche, wastafel en toilet.
Tweede verdieping:
Volwaardige verdieping via vaste trap bereikbaar met een ruime slaapkamer met vaste kasten en toegang tot het balkon. Perfect geschikt als slaap-, werk- of hobbykamer.
Buitenruimte en bijgebouw:
De diepe achtertuin biedt veel privacy en is een fijne plek om te ontspannen of te spelen. Door de lengte van de tuin is er ruimte voor meerdere zitplekken. Achter in de tuin staat het royale bijgebouw van ca. 65 m², verdeeld over twee verdiepingen. Zeer geschikt als werkruimte, atelier, hobbyruimte of praktijk aan huis.
KENMERKEN:
- woonoppervlakte: ca. 132 m²;
- bijgebouw: ca. 65 m², verdeeld over twee lagen;
- centrale verwarming;
- kunststof ramen en kozijnen in de woning met isolerende beglazing.
+ Meer omschrijving
- Minder omschrijving
In het rustige en geliefde Bloemenkwartier in Hilversum Zuid ligt deze sfeervolle en verrassend ruime twee-onder-een-kapwoning met een woonoppervlakte van ca. 132 m², een diepe achtertuin en een ROYAAL BIJGEBOUW van ca. 65 m².
Een fijne gezinswoning met veel leefruimte, zowel binnen als buiten.
LOCATIE
De woning ligt op korte afstand van het winkelgebied Gijsbrecht van Amstelstraat, het centrum van Hilversum, NS-stations Sportpark en Centraal, openbaar vervoer, park ‘De Oude Haven’, (internationale) scholen, kinderopvang, heide, bos, sportvoorzieningen en uitvalswegen.
INDELING
Begane grond:
Entree met hal en trapopgang. Vanuit de hal komt u in de ruime en sfeervolle woon-/eetkamer, van waaruit met openslaande deuren de diepe achtertuin bereikbaar is én de trapkast en kelder, ideaal als extra bergruimte. Aan de achterzijde van de ruimte bevindt zich de open keuken met kookeiland en eetgedeelte. De keuken staat in directe verbinding met de bijkeuken en het separate toilet.
Eerste verdieping:
Overloop met toegang tot drie slaapkamers en de badkamer. De slaapkamers zijn praktisch ingedeeld en prettig van formaat. De badkamer is voorzien van een inloopdouche, wastafel en toilet.
Tweede verdieping:
Volwaardige verdieping via vaste trap bereikbaar met een ruime slaapkamer met vaste kasten en toegang tot het balkon. Perfect geschikt als slaap-, werk- of hobbykamer.
Buitenruimte en bijgebouw:
De diepe achtertuin biedt veel privacy en is een fijne plek om te ontspannen of te spelen. Door de lengte van de tuin is er ruimte voor meerdere zitplekken. Achter in de tuin staat het royale bijgebouw van ca. 65 m², verdeeld over twee verdiepingen. Zeer geschikt als werkruimte, atelier, hobbyruimte of praktijk aan huis.
KENMERKEN:
- woonoppervlakte: ca. 132 m²;
- bijgebouw: ca. 65 m², verdeeld over twee lagen;
- centrale verwarming;
- kunststof ramen en kozijnen in de woning met isolerende beglazing.
Kenmerken
| Bouwjaar | 1898 |
|---|---|
| Bouwvorm | bestaande bouw |
| Woonoppervlakte | 132 |
| Aantal kamers | 5 |
Overdracht
| Status | Beschikbaar |
|---|---|
| Prijs | € 650.000 Kosten koper |
| Aanvaarding | in overleg |
Bouw vorm
| Bouwjaar | 1898 |
|---|---|
| Bouwvorm | bestaande bouw |
Indeling
| Woonoppervlakte | 132 |
|---|---|
| Inhoud | 488 |
| Aantal kamers | 5 |
| Slaapkamers | 4 |
| Etages | 4 |
Tuin
| Tuin | Achtertuin, Voortuin, Zijtuin |
|---|---|
| Hoofdtuin oppervlakte | 126 |
| Hoofdtuin positie | Oost |
| Aantal bergingen | 1 |
Parking
| Garage soort | Geen garage |
|---|
In de buurt
Wij kennen werkelijk iedere straat en elke hoek van Hilversum. Benieuwd wat een buurt je te bieden heeft? We kunnen je er alles over vertellen!



Plan een bezichtiging
voor: Tulpstraat 29
Bel ons op 035 625 20 70 of WhatsApp via 0356252070 voor direct contact. Of laat jouw gegevens achter en wij nemen zo snel mogelijk contact met je op.





