Terug naar resultatenTulpstraat 8
Tulpstraat 8
1214 CD HILVERSUM
€ 875.000 k.k.
Omschrijving
In betere conditie zie je ze weinig!
Volledig gerenoveerd en ruim gezinshuis met energielabel A, gelegen in de populaire ‘Bloemenbuurt’ in Hilversum Zuid, met 5 slaapkamers, 2 badkamers, een prachtige open en hoogwaardige keuken en zonnige tuin op het westen met achterom en berging.
De woning is gelegen op een centrale locatie direct nabij stadspark de ‘Oude Haven’, de gezellige winkelstraat ‘De Gijsbrecht’ en op 5 minuten van het centrum van Hilversum. De locatie is ook wel ideaal te noemen. Diverse scholen, restaurantjes, sportscholen, etc. bevinden zich tevens in de directe omgeving.
Indeling:
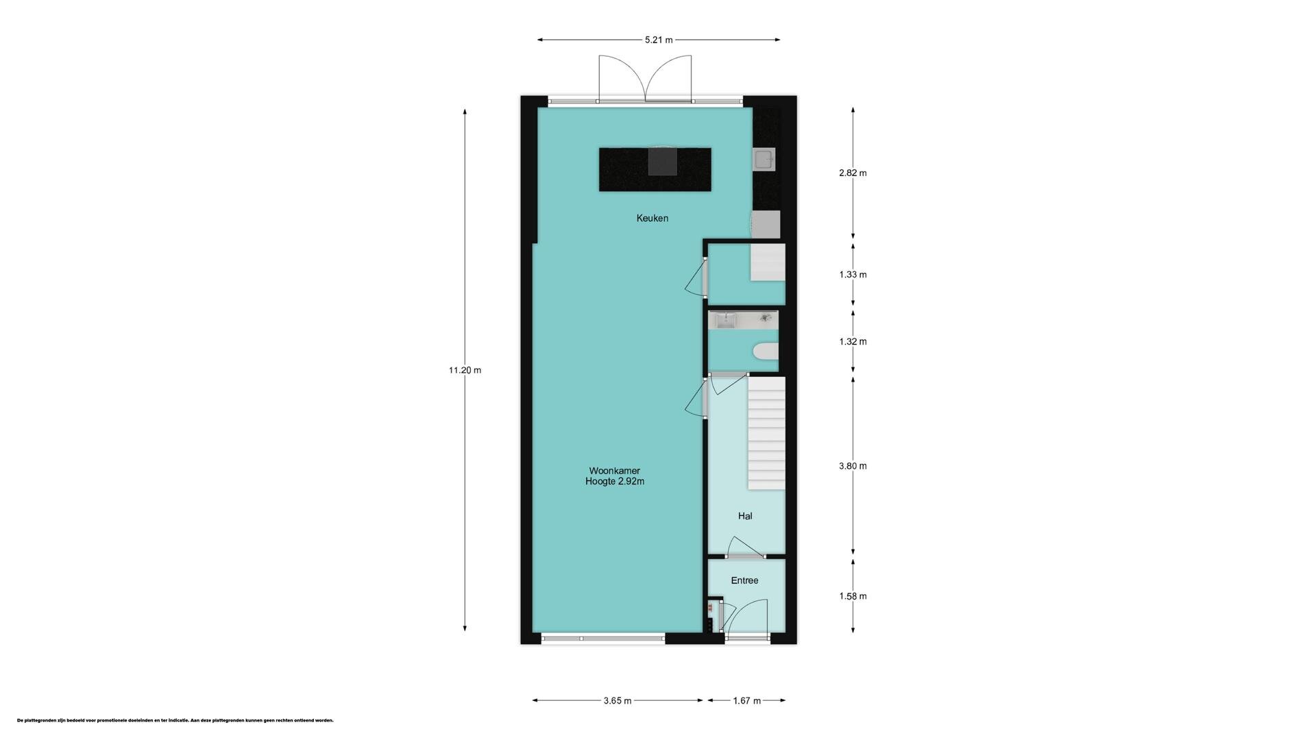
Entree, riante vestibule met meterkast en garderobe, hal, ruim toilet met vast wasmeubel, lichte woon-/eetkamer met open keuken en openslaande deuren naar de tuin op het westen. De keuken is voorzien van een prachtig Taj Mahal kwartsiet aanrechtblad, Miele inductie ‘flexplaat’ met integraal afzuigsysteem, Miele stoomoven, extra grote koel-/vrieskast, Quooker en vaatwasser. De kozijnen zijn zowel voor als achter vernieuwd met HR++ glas en de gehele begane grond is voorzien van vloerverwarming.
De zonnige achtertuin met middag- en- avondzon is gelegen op het westen. Ook de tuin is volledig aangepakt met buitenelektra, buitenverlichting, buitenkraan, een hoogwaardig zonnescherm en een fraaie overkapping met berging voorzien van elektra.
Verdieping:
Ruime overloop, 2 goed bemeten slaapkamers aan de achterzijde welke beiden zijn voorzien van airconditioning voor het koelen en verwarmen van de kamers, 3e ruime slaapkamer met tevens airconditioning en inloopkast(!). De badkamer is voorzien van vloerverwarming, een dubbele stortdouche, dubbel wastafelmeubel, toilet en elektrische handdoekradiator. Deze etage is geheel voorzien van HR++ beglazing en PVC vloerdelen.
2e verdieping:
Ruime overloop met C.V. opstelling (Remeha Tzerra 2022) en wasmachine-/drogeropstelling, 4e en 5e riante slaapkamer met ingebouwde kasten, dubbele Velux dakramen en voorbereiding voor verwarming en koeling middels airconditioning, gloednieuwe badkamer met inloopdouche, 3e toilet, wastafelmeubel en handdoekradiator.
Kenmerken:
- Riant huis van 155 m2 op een gewilde locatie met 5 slaapkamers en 2 badkamers;
- Energielabel A;
- De voorgevel is gereinigd en voorzien van een nieuwe fraaie ‘knipvoeg’;
- Voorzien van dubbele beglazing HR++, dakisolatie, gevelisolatie en HR C.V. systeem;
- Nagenoeg alle kamers voorzien van UTP aansluitingen (bekabeld internet);
- Nieuwe elektrische bedrading en moderne meterkast (18 groepen);
- Parkeren middels parkeervergunning voor € 20,- per jaar voor 1e auto;
+ Meer omschrijving
- Minder omschrijving
Volledig gerenoveerd en ruim gezinshuis met energielabel A, gelegen in de populaire ‘Bloemenbuurt’ in Hilversum Zuid, met 5 slaapkamers, 2 badkamers, een prachtige open en hoogwaardige keuken en zonnige tuin op het westen met achterom en berging.
De woning is gelegen op een centrale locatie direct nabij stadspark de ‘Oude Haven’, de gezellige winkelstraat ‘De Gijsbrecht’ en op 5 minuten van het centrum van Hilversum. De locatie is ook wel ideaal te noemen. Diverse scholen, restaurantjes, sportscholen, etc. bevinden zich tevens in de directe omgeving.
Indeling:
Entree, riante vestibule met meterkast en garderobe, hal, ruim toilet met vast wasmeubel, lichte woon-/eetkamer met open keuken en openslaande deuren naar de tuin op het westen. De keuken is voorzien van een prachtig Taj Mahal kwartsiet aanrechtblad, Miele inductie ‘flexplaat’ met integraal afzuigsysteem, Miele stoomoven, extra grote koel-/vrieskast, Quooker en vaatwasser. De kozijnen zijn zowel voor als achter vernieuwd met HR++ glas en de gehele begane grond is voorzien van vloerverwarming.
De zonnige achtertuin met middag- en- avondzon is gelegen op het westen. Ook de tuin is volledig aangepakt met buitenelektra, buitenverlichting, buitenkraan, een hoogwaardig zonnescherm en een fraaie overkapping met berging voorzien van elektra.
Verdieping:
Ruime overloop, 2 goed bemeten slaapkamers aan de achterzijde welke beiden zijn voorzien van airconditioning voor het koelen en verwarmen van de kamers, 3e ruime slaapkamer met tevens airconditioning en inloopkast(!). De badkamer is voorzien van vloerverwarming, een dubbele stortdouche, dubbel wastafelmeubel, toilet en elektrische handdoekradiator. Deze etage is geheel voorzien van HR++ beglazing en PVC vloerdelen.
2e verdieping:
Ruime overloop met C.V. opstelling (Remeha Tzerra 2022) en wasmachine-/drogeropstelling, 4e en 5e riante slaapkamer met ingebouwde kasten, dubbele Velux dakramen en voorbereiding voor verwarming en koeling middels airconditioning, gloednieuwe badkamer met inloopdouche, 3e toilet, wastafelmeubel en handdoekradiator.
Kenmerken:
- Riant huis van 155 m2 op een gewilde locatie met 5 slaapkamers en 2 badkamers;
- Energielabel A;
- De voorgevel is gereinigd en voorzien van een nieuwe fraaie ‘knipvoeg’;
- Voorzien van dubbele beglazing HR++, dakisolatie, gevelisolatie en HR C.V. systeem;
- Nagenoeg alle kamers voorzien van UTP aansluitingen (bekabeld internet);
- Nieuwe elektrische bedrading en moderne meterkast (18 groepen);
- Parkeren middels parkeervergunning voor € 20,- per jaar voor 1e auto;
Kenmerken
| Bouwjaar | 1903 |
|---|---|
| Bouwvorm | bestaande bouw |
| Woonoppervlakte | 154 |
| Aantal kamers | 6 |
Overdracht
| Status | Verkocht |
|---|---|
| Prijs | € 875.000 Kosten koper |
| Aanvaarding | in overleg |
Bouw vorm
| Bouwjaar | 1903 |
|---|---|
| Bouwvorm | bestaande bouw |
Indeling
| Woonoppervlakte | 154 |
|---|---|
| Inhoud | 552 |
| Aantal kamers | 6 |
| Slaapkamers | 5 |
| Etages | 3 |
Tuin
| Tuin | Achtertuin, Voortuin |
|---|---|
| Hoofdtuin oppervlakte | 66 |
| Hoofdtuin positie | West |
| Aantal bergingen | 1 |
Parking
| Garage soort | Geen garage |
|---|
In de buurt
Wij kennen werkelijk iedere straat en elke hoek van Hilversum. Benieuwd wat een buurt je te bieden heeft? We kunnen je er alles over vertellen!







