Terug naar resultatenVan Hogendorplaan 1 H
Van Hogendorplaan 1 H
1215 EG HILVERSUM
€ 915.000 k.k.
Omschrijving
Moderne hoekwoning (bouwjaar 1999) met garage, tuin en royaal dakterras in Hilversum-Zuid
Ontdek deze moderne en goed onderhouden hoekwoning met oprit, garage, voortuin, zonnige achtertuin én royaal dakterras — perfect voor wie comfortabel wil wonen met alle voorzieningen binnen handbereik.
De woning is gelegen in het geliefde Hilversum-Zuid, een groene en rustige wijk met een prettige sfeer. Op loopafstand bevinden zich winkelcentrum De Heigalerij en de populaire Gijsbrecht van Amstelstraat, waar je terecht kunt voor je dagelijkse boodschappen, boetieks, speciaalzaken en gezellige horecagelegenheden. Ook scholen, sportvoorzieningen en natuurgebieden zoals de Hoorneboegse Heide liggen in de directe omgeving.
Indeling
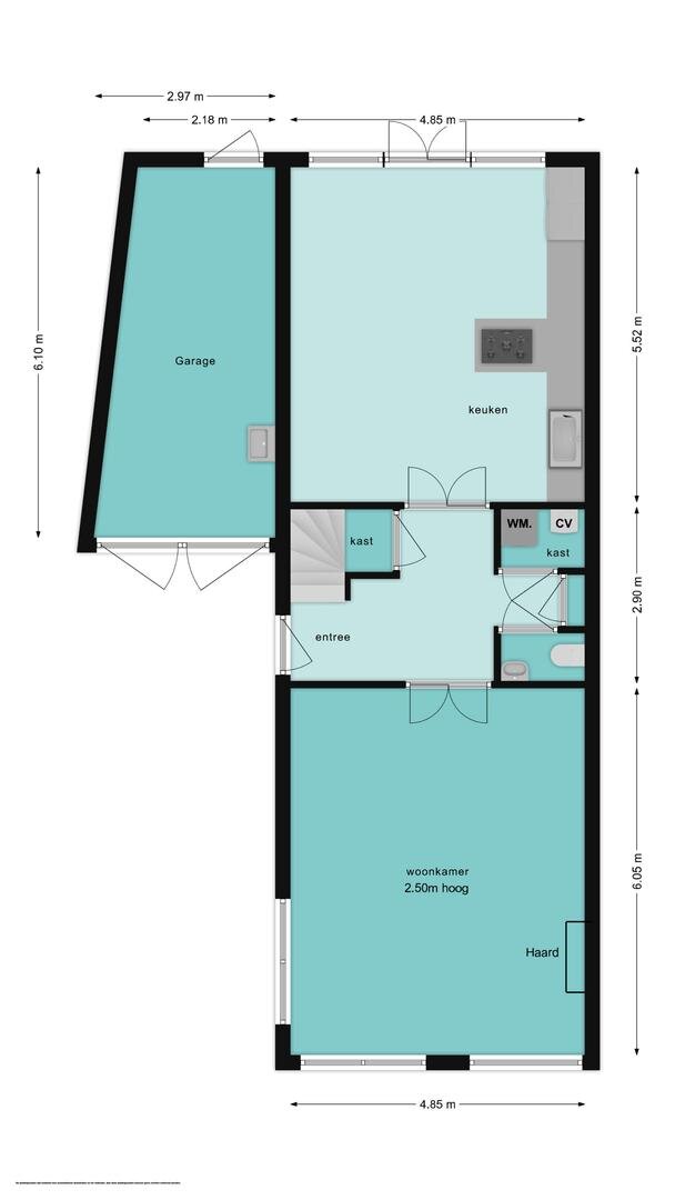
Begane grond
Entree, hal met garderobekast, kast met CV-installatie en aansluiting voor wasmachine en droger, modern toilet. Aan de voorzijde van de woning bevindt zich de heerlijke, ruime woonkamer met open haard. Aan de achterzijde ligt de tuingerichte woonkeuken, voorzien van alle moderne inbouwapparatuur en met directe toegang tot de achtertuin.
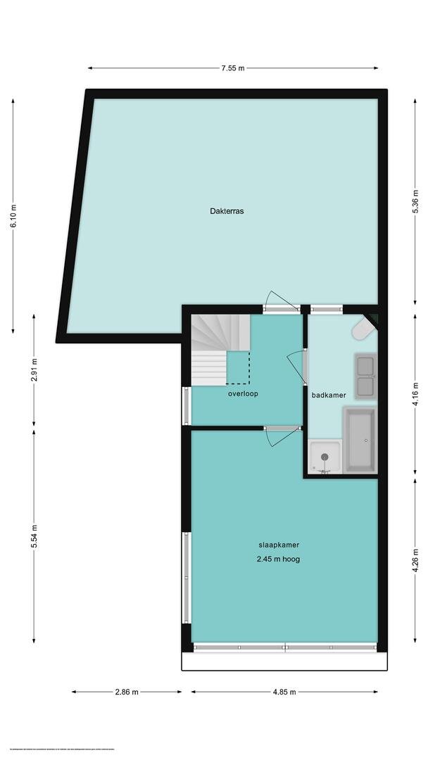
Eerste verdieping
Overloop, badkamer met ligbad, separate douche, dubbele wastafel en tweede toilet. De riante hoofdslaapkamer (voorheen twee kamers) biedt volop ruimte en kan indien gewenst eenvoudig weer worden opgesplitst in twee aparte kamers. Vanaf de overloop is er toegang tot het zeer ruime dakterras, waar je in alle rust kunt genieten van de zon en het uitzicht over de omgeving.
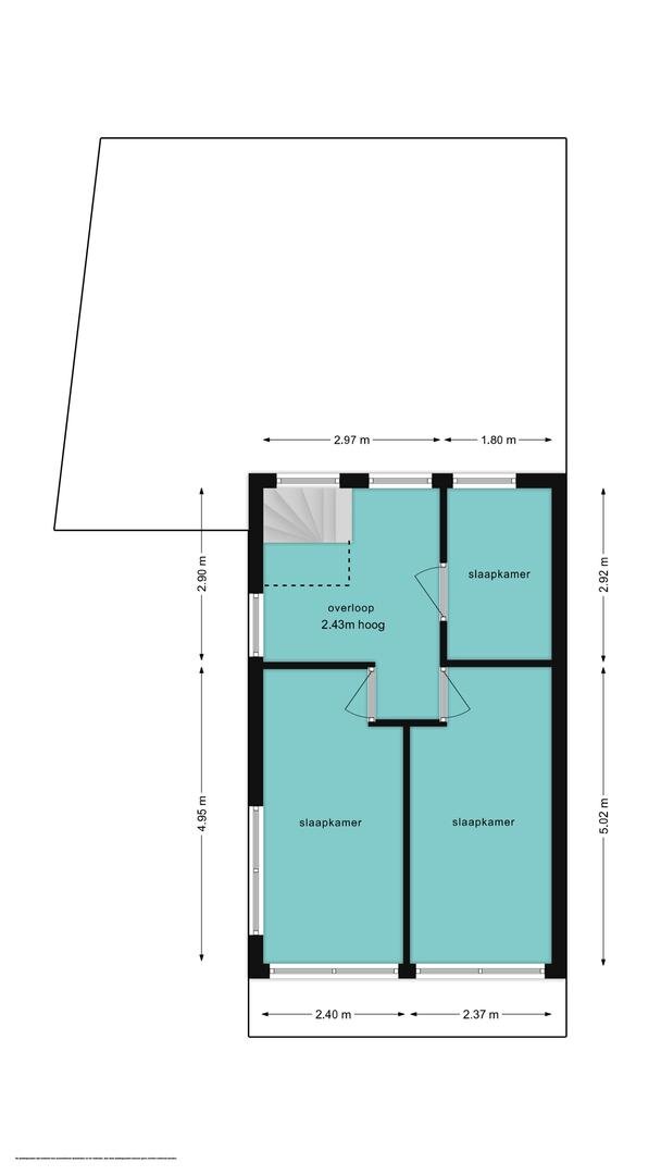
Tweede verdieping
Overloop met toegang tot twee ruime slaapkamers en een derde, kleinere slaapkamer ideaal als kinderkamer, werkkamer of te realiseren 2e badkamer.
De woning beschikt daarnaast over een garage en oprit voor comfortabel parkeren, en zowel de voor- als achtertuin zijn netjes aangelegd en bieden volop mogelijkheden om buiten te genieten. Dankzij de hoekligging profiteer je van extra lichtinval en veel privacy.
Bijzonderheden:
- Bouwjaar 1999
- Energielabel B
- Woonoppervlakte 151 m²
- Perceel 224 m²
- Oprit voor meerdere auto’s
- Voorzien van elektrische rolluiken om de warmte en/koude buiten te houden
- Grote slaapkamers zijn voorzien van airconditioning.
Kortom: een gezinswoning op een gewilde locatie in Hilversum-Zuid, waar comfort, ruimte en een fijne woonomgeving samenkomen.
+ Meer omschrijving
- Minder omschrijving
Ontdek deze moderne en goed onderhouden hoekwoning met oprit, garage, voortuin, zonnige achtertuin én royaal dakterras — perfect voor wie comfortabel wil wonen met alle voorzieningen binnen handbereik.
De woning is gelegen in het geliefde Hilversum-Zuid, een groene en rustige wijk met een prettige sfeer. Op loopafstand bevinden zich winkelcentrum De Heigalerij en de populaire Gijsbrecht van Amstelstraat, waar je terecht kunt voor je dagelijkse boodschappen, boetieks, speciaalzaken en gezellige horecagelegenheden. Ook scholen, sportvoorzieningen en natuurgebieden zoals de Hoorneboegse Heide liggen in de directe omgeving.
Indeling
Begane grond
Entree, hal met garderobekast, kast met CV-installatie en aansluiting voor wasmachine en droger, modern toilet. Aan de voorzijde van de woning bevindt zich de heerlijke, ruime woonkamer met open haard. Aan de achterzijde ligt de tuingerichte woonkeuken, voorzien van alle moderne inbouwapparatuur en met directe toegang tot de achtertuin.
Eerste verdieping
Overloop, badkamer met ligbad, separate douche, dubbele wastafel en tweede toilet. De riante hoofdslaapkamer (voorheen twee kamers) biedt volop ruimte en kan indien gewenst eenvoudig weer worden opgesplitst in twee aparte kamers. Vanaf de overloop is er toegang tot het zeer ruime dakterras, waar je in alle rust kunt genieten van de zon en het uitzicht over de omgeving.
Tweede verdieping
Overloop met toegang tot twee ruime slaapkamers en een derde, kleinere slaapkamer ideaal als kinderkamer, werkkamer of te realiseren 2e badkamer.
De woning beschikt daarnaast over een garage en oprit voor comfortabel parkeren, en zowel de voor- als achtertuin zijn netjes aangelegd en bieden volop mogelijkheden om buiten te genieten. Dankzij de hoekligging profiteer je van extra lichtinval en veel privacy.
Bijzonderheden:
- Bouwjaar 1999
- Energielabel B
- Woonoppervlakte 151 m²
- Perceel 224 m²
- Oprit voor meerdere auto’s
- Voorzien van elektrische rolluiken om de warmte en/koude buiten te houden
- Grote slaapkamers zijn voorzien van airconditioning.
Kortom: een gezinswoning op een gewilde locatie in Hilversum-Zuid, waar comfort, ruimte en een fijne woonomgeving samenkomen.
Kenmerken
| Bouwjaar | 1999 |
|---|---|
| Bouwvorm | bestaande bouw |
| Woonoppervlakte | 151 |
| Aantal kamers | 4 |
Overdracht
| Status | Beschikbaar |
|---|---|
| Prijs | € 915.000 Kosten koper |
| Aanvaarding | in overleg |
Bouw vorm
| Bouwjaar | 1999 |
|---|---|
| Bouwvorm | bestaande bouw |
Indeling
| Woonoppervlakte | 151 |
|---|---|
| Inhoud | 575 |
| Aantal kamers | 4 |
| Slaapkamers | 3 |
| Etages | 3 |
Tuin
| Tuin | Achtertuin, Voortuin |
|---|---|
| Hoofdtuin oppervlakte | 56 |
| Hoofdtuin positie | Zuidoost |
Parking
| Garage soort | Aangebouwd steen |
|---|
In de buurt
Wij kennen werkelijk iedere straat en elke hoek van Hilversum. Benieuwd wat een buurt je te bieden heeft? We kunnen je er alles over vertellen!



Plan een bezichtiging
voor: Van Hogendorplaan 1 H
Bel ons op 035 625 20 70 of WhatsApp via 0356252070 voor direct contact. Of laat jouw gegevens achter en wij nemen zo snel mogelijk contact met je op.


