Terug naar resultatenVan Oldenbarneveltlaan 5
Van Oldenbarneveltlaan 5
1215 GD HILVERSUM
€ 750.000 k.k.
Omschrijving
In het geliefde Staatsliedenkwartier in Hilversum-Zuid staat deze royale eengezinswoning (bouwjaar 1928) klaar voor een nieuwe eigenaar. Een heerlijk gezinshuis waar karakter, comfort en hedendaagse verduurzaming naadloos samenkomen. Dankzij het volledig vernieuwde en in 2024 van buitenaf geïsoleerde pannendak, energielabel A en 8 zonnepanelen woon je hier stijlvol én energiezuinig. Tevens heeft deze woning een behoorlijke tuin op het zuiden met schuur en achterom.
Indeling
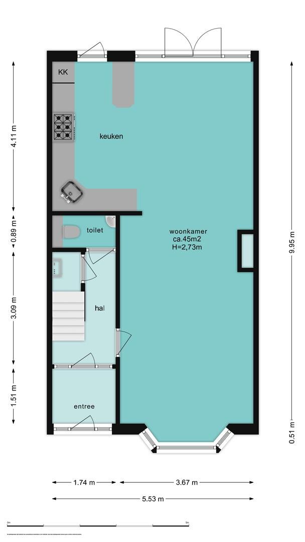
Begane grond
Via het entree met tochtportaal betreed je de ruime hal met trapopgang en praktische trapkast. Het royale toilet is modern en riant vormgegeven. De uitgebouwde woon-/eetkamer is een fijne leefruimte met veel licht door de erker aan de voorzijde en de openslaande deuren naar de zonnige achtertuin. De open keuken in L-opstelling biedt volop werk- en kastruimte – ideaal voor de kookliefhebber.
Eerste verdieping
De overloop geeft toegang tot drie goed bemeten slaapkamers, alle voorzien van vaste kastruimte. De achter slaapkamer beschikt bovendien over een heerlijk balkon. De badkamer is modern uitgerust met douche, toilet, wastafelmeubel én comfortabele vloerverwarming.
Tweede verdieping
Via een vaste trap bereik je de verrassend ruime tweede verdieping. Hier vind je een overloop, extra bergruimte en maar liefst twee grote slaapkamers – perfect als werkplek, hobbyruimte of extra slaapkamers.
Bijzonderheden woning
- energielabel A;
- 5 slaapkamers;
- glas-in-lood details in voordeur, tochtportaal en woonkamer;
- pannendak volledig vervangen en van buitenaf geïsoleerd (2024);
- 8 zonnepanelen;
- badkamer met vloerverwarming;
- woonkamer en hoofdslaapkamer voorzien van airconditioning;
- groot zonnescherm aan de achtergevel;
- keuken met Quooker.
Bijzonderheden omgeving
Deze woning ligt in een van de meest gewilde delen van Hilversum-Zuid – rustig, groen en toch op loopafstand van allerlei voorzieningen:
- slechts enkele minuten van de Gijsbrecht van Amstelstraat, dé populaire winkelstraat met speciaalzaken, boetieks, delicatessenwinkels, supermarkten en gezellige horeca;
- nabij meerdere basisscholen, kinderopvang en middelbare scholen;
- op korte afstand van het Corversbos, de Hoorneboegse heide en diverse wandel- en fietspaden;
- goede bereikbaarheid richting uitvalswegen richting Amsterdam en Utrecht;
- bushaltes, sportclubs, speeltuinen en dagelijkse voorzieningen liggen allemaal binnen handbereik.
Een karaktervolle, energiezuinige en bijzonder ruime gezinswoning op een uitzonderlijk fijne locatie – kom kijken en laat je verrassen!
+ Meer omschrijving
- Minder omschrijving
Indeling
Begane grond
Via het entree met tochtportaal betreed je de ruime hal met trapopgang en praktische trapkast. Het royale toilet is modern en riant vormgegeven. De uitgebouwde woon-/eetkamer is een fijne leefruimte met veel licht door de erker aan de voorzijde en de openslaande deuren naar de zonnige achtertuin. De open keuken in L-opstelling biedt volop werk- en kastruimte – ideaal voor de kookliefhebber.
Eerste verdieping
De overloop geeft toegang tot drie goed bemeten slaapkamers, alle voorzien van vaste kastruimte. De achter slaapkamer beschikt bovendien over een heerlijk balkon. De badkamer is modern uitgerust met douche, toilet, wastafelmeubel én comfortabele vloerverwarming.
Tweede verdieping
Via een vaste trap bereik je de verrassend ruime tweede verdieping. Hier vind je een overloop, extra bergruimte en maar liefst twee grote slaapkamers – perfect als werkplek, hobbyruimte of extra slaapkamers.
Bijzonderheden woning
- energielabel A;
- 5 slaapkamers;
- glas-in-lood details in voordeur, tochtportaal en woonkamer;
- pannendak volledig vervangen en van buitenaf geïsoleerd (2024);
- 8 zonnepanelen;
- badkamer met vloerverwarming;
- woonkamer en hoofdslaapkamer voorzien van airconditioning;
- groot zonnescherm aan de achtergevel;
- keuken met Quooker.
Bijzonderheden omgeving
Deze woning ligt in een van de meest gewilde delen van Hilversum-Zuid – rustig, groen en toch op loopafstand van allerlei voorzieningen:
- slechts enkele minuten van de Gijsbrecht van Amstelstraat, dé populaire winkelstraat met speciaalzaken, boetieks, delicatessenwinkels, supermarkten en gezellige horeca;
- nabij meerdere basisscholen, kinderopvang en middelbare scholen;
- op korte afstand van het Corversbos, de Hoorneboegse heide en diverse wandel- en fietspaden;
- goede bereikbaarheid richting uitvalswegen richting Amsterdam en Utrecht;
- bushaltes, sportclubs, speeltuinen en dagelijkse voorzieningen liggen allemaal binnen handbereik.
Een karaktervolle, energiezuinige en bijzonder ruime gezinswoning op een uitzonderlijk fijne locatie – kom kijken en laat je verrassen!
Kenmerken
| Bouwjaar | 1927 |
|---|---|
| Bouwvorm | bestaande bouw |
| Woonoppervlakte | 129 |
| Aantal kamers | 6 |
Overdracht
| Status | Beschikbaar |
|---|---|
| Prijs | € 750.000 Kosten koper |
| Aanvaarding | in overleg |
Bouw vorm
| Bouwjaar | 1927 |
|---|---|
| Bouwvorm | bestaande bouw |
Indeling
| Woonoppervlakte | 129 |
|---|---|
| Inhoud | 444 |
| Aantal kamers | 6 |
| Slaapkamers | 5 |
| Etages | 3 |
Tuin
| Tuin | Achtertuin, Voortuin |
|---|---|
| Hoofdtuin oppervlakte | 66 |
| Hoofdtuin positie | Zuid |
| Aantal bergingen | 1 |
Parking
| Garage soort | Geen garage |
|---|
In de buurt
Wij kennen werkelijk iedere straat en elke hoek van Hilversum. Benieuwd wat een buurt je te bieden heeft? We kunnen je er alles over vertellen!



Plan een bezichtiging
voor: Van Oldenbarneveltlaan 5
Bel ons op 035 625 20 70 of WhatsApp via 0356252070 voor direct contact. Of laat jouw gegevens achter en wij nemen zo snel mogelijk contact met je op.



