Terug naar resultatenVan Riebeeckweg 111
Van Riebeeckweg 111
1212 EJ HILVERSUM
€ 275.000 k.k.
Omschrijving
Op de 4e en tevens bovenste verdieping van het appartementengebouw ligt dit zeer verzorgde 2-kamer-appartement met zonnig terras van maar liefst 25,5 m² op het zuiden.
In de onderbouw van het complex beschikt het appartement over twee ruime privé bergingen en een drooghok.
Het appartement is gunstig gelegen ten opzichte van uitvalswegen, NS station Hilversum-Sportpark, scholen en een kleinschalig winkelcentrum met supermarkt.
Indeling:
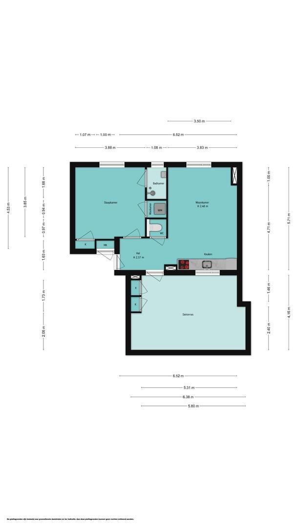
Entree, royale hal, toilet, lichte woon-/eetkamer met open keuken voorzien van diverse inbouwapparatuur. Vanuit de hal is het ruime dakterras bereikbaar welke voorzien is van twee vaste bergkasten en stookruimte. Je kan hier heerlijk tot laat in de avond met vrienden borrelen of bbq-en. Aan de achterzijde van het appartement bevindt zich de ruime slaapkamer met een bergkast met aansluiting voor witgoedapparatuur, daarnaast is de moderne badkamer gelegen welke is voorzien van een douche en wastafelmeubel.
Bijzonderheden:
- woonoppervlakte 47 m²;
- 2 privé bergingen en een drooghok in de onderbouw;
- energielabel C;
- voorzien van kunststof kozijnen met nagenoeg overal dubbele beglazing;
- verwarming middels c.v.-ketel;
- de servicekosten bedragen € 317,- per maand;
- actieve Vereniging van Eigenaren met verduurzamingsplannen.
+ Meer omschrijving
- Minder omschrijving
In de onderbouw van het complex beschikt het appartement over twee ruime privé bergingen en een drooghok.
Het appartement is gunstig gelegen ten opzichte van uitvalswegen, NS station Hilversum-Sportpark, scholen en een kleinschalig winkelcentrum met supermarkt.
Indeling:
Entree, royale hal, toilet, lichte woon-/eetkamer met open keuken voorzien van diverse inbouwapparatuur. Vanuit de hal is het ruime dakterras bereikbaar welke voorzien is van twee vaste bergkasten en stookruimte. Je kan hier heerlijk tot laat in de avond met vrienden borrelen of bbq-en. Aan de achterzijde van het appartement bevindt zich de ruime slaapkamer met een bergkast met aansluiting voor witgoedapparatuur, daarnaast is de moderne badkamer gelegen welke is voorzien van een douche en wastafelmeubel.
Bijzonderheden:
- woonoppervlakte 47 m²;
- 2 privé bergingen en een drooghok in de onderbouw;
- energielabel C;
- voorzien van kunststof kozijnen met nagenoeg overal dubbele beglazing;
- verwarming middels c.v.-ketel;
- de servicekosten bedragen € 317,- per maand;
- actieve Vereniging van Eigenaren met verduurzamingsplannen.
Kenmerken
| Bouwjaar | 1950 |
|---|---|
| Bouwvorm | bestaande bouw |
| Woonoppervlakte | 48 |
| Aantal kamers | 2 |
Overdracht
| Status | Onder bod |
|---|---|
| Prijs | € 275.000 Kosten koper |
| Aanvaarding | in overleg |
Bouw vorm
| Bouwjaar | 1950 |
|---|---|
| Bouwvorm | bestaande bouw |
Indeling
| Woonoppervlakte | 48 |
|---|---|
| Inhoud | 160 |
| Aantal kamers | 2 |
| Slaapkamers | 1 |
| Etages | 1 |
Tuin
| Tuin | Geen tuin |
|---|---|
| Aantal bergingen | 1 |
Parking
| Garage soort | Geen garage |
|---|
In de buurt
Wij kennen werkelijk iedere straat en elke hoek van Hilversum. Benieuwd wat een buurt je te bieden heeft? We kunnen je er alles over vertellen!



Plan een bezichtiging
voor: Van Riebeeckweg 111
Bel ons op 035 625 20 70 of WhatsApp via 0356252070 voor direct contact. Of laat jouw gegevens achter en wij nemen zo snel mogelijk contact met je op.



