Terug naar resultatenVan Wassenaerlaan 33
Van Wassenaerlaan 33
1215 PA HILVERSUM
€ 515.000 k.k.
Omschrijving
Om de hoek bij de uitgestrekte Hoorneboegse heide, gelegen in het Zeeheldekwartier, bieden wij aan deze goed bemeten tussenwoning met 4 slaapkamers, ruim bemeten tuin met goede zonligging, separate berging met elektra en gratis parkeergelegenheid voor de deur. De woning heeft een woonoppervlak van 113 m2 en kenmerkt zich door een prettige lichtinval binnenshuis met grote raampartijen!
Voor uw dagelijkse boodschappen loopt u binnen enkele minuten naar buurtwinkelcentrum aan de Admiraal de Ruyterlaan of naar de “Heigalerij” met o.a. een bakker, Albert heijn, groenteboer en slijterij. Het gezellige winkelhart van Hilversum alsook het winkelgebied aan de Gijsbrecht van Amstelstraat liggen op fietsafstand. Openbaar vervoer, scholen, recreatie- en sportvoorzieningen, uitvalswegen en uiteraard het natuurgebied de “Hoorneboegse heide” bevinden zich op 10 minuten fietsafstand.
Indeling:
Begane grond
Overdekt entree, gang met parketvloer en trap naar de 1e verdieping, eenvoudig toilet met fonteintje, bergkast onder de trap met meterkast, lichte woon-/eetkamer met parketvloer, elektrische haard en toegang tot de achtertuin, separate keuken aan de achterzijde met tegelvloer, deur naar de achtertuin en voorts voorzien van een dubbel keukenblok met diverse apparatuur waaronder een inductieplaat, koelkast, vriezer, hete lucht oven en close-in boiler.
1e Verdieping
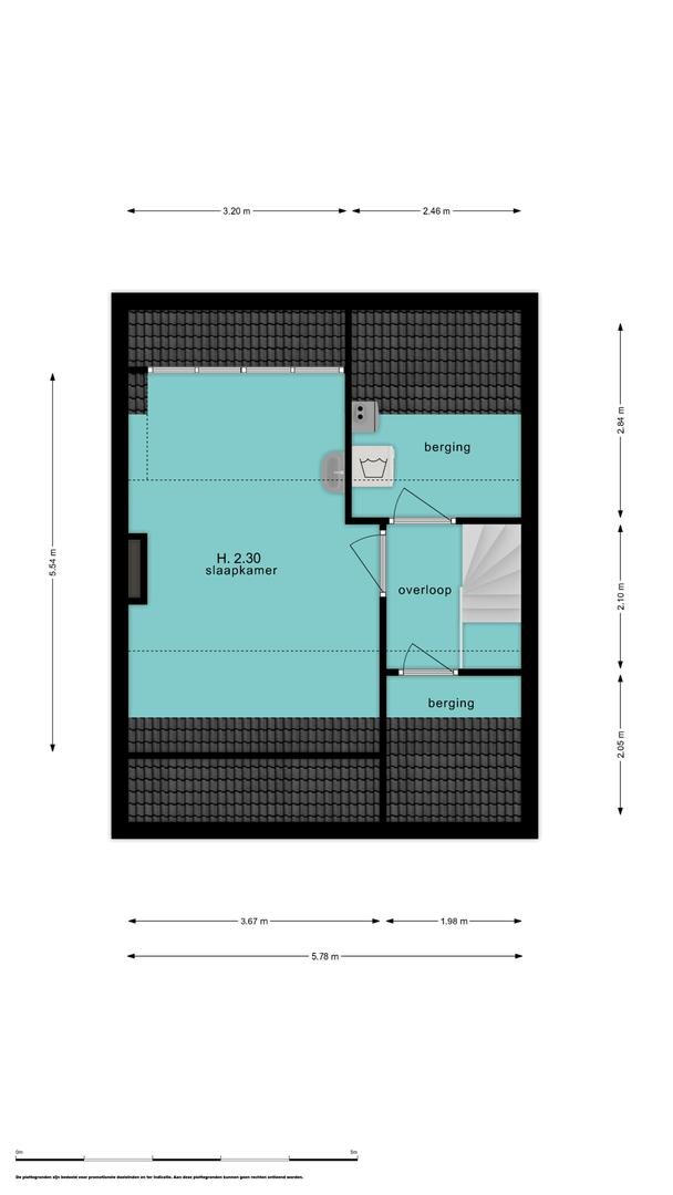
Overloop, ruime slaapkamer aan de voorzijde met toegang tot een balkon met Somfy zonnescherm, grote 2e slaapkamer aan de achterzijde met toegang tot een tweede balkon met automatisch Somfy zonnescherm, kleinere 3e slaapkamer aan de achterzijde met vaste kast, badkamer aan de voorzijde voorzien van ligbad/douche, 2e toilet, wastafel en designradiator.
2e Verdieping
Vaste trap naar ruime zolderverdieping alwaar overloop met bergruimte, separate wasruimte aan de achterzijde met opstelling CV-ketel (Nefit HR 2017) en aansluiting wasmachine en een grote zolderkamer met dakkapel aan de achterzijde, wastafel en bergruimte achter de knieschotten.
Bijzonderheden:
- centrale ligging aan de rand van Hilversum-zuid en nabij alle voorzieningen
- circa 12 meter diepe achtertuin (Z/O) met ruime berging en ruim pad achterom (ideaal voor een bakfiets!)
- 3 goede slaapkamers op de 1e verdieping en een grote kamer op de 2e verdieping;
- CV-installatie via Nefit Topline HR combiketel (2017);
- voorzien van dubbele beglazing en dakisolatie;
- energielabel C;
- bouwjaar circa 1960;
- gebruiksoppervlak Wonen 113 m²;
- perceeloppervlakte 140 m².
+ Meer omschrijving
- Minder omschrijving
Voor uw dagelijkse boodschappen loopt u binnen enkele minuten naar buurtwinkelcentrum aan de Admiraal de Ruyterlaan of naar de “Heigalerij” met o.a. een bakker, Albert heijn, groenteboer en slijterij. Het gezellige winkelhart van Hilversum alsook het winkelgebied aan de Gijsbrecht van Amstelstraat liggen op fietsafstand. Openbaar vervoer, scholen, recreatie- en sportvoorzieningen, uitvalswegen en uiteraard het natuurgebied de “Hoorneboegse heide” bevinden zich op 10 minuten fietsafstand.
Indeling:
Begane grond
Overdekt entree, gang met parketvloer en trap naar de 1e verdieping, eenvoudig toilet met fonteintje, bergkast onder de trap met meterkast, lichte woon-/eetkamer met parketvloer, elektrische haard en toegang tot de achtertuin, separate keuken aan de achterzijde met tegelvloer, deur naar de achtertuin en voorts voorzien van een dubbel keukenblok met diverse apparatuur waaronder een inductieplaat, koelkast, vriezer, hete lucht oven en close-in boiler.
1e Verdieping
Overloop, ruime slaapkamer aan de voorzijde met toegang tot een balkon met Somfy zonnescherm, grote 2e slaapkamer aan de achterzijde met toegang tot een tweede balkon met automatisch Somfy zonnescherm, kleinere 3e slaapkamer aan de achterzijde met vaste kast, badkamer aan de voorzijde voorzien van ligbad/douche, 2e toilet, wastafel en designradiator.
2e Verdieping
Vaste trap naar ruime zolderverdieping alwaar overloop met bergruimte, separate wasruimte aan de achterzijde met opstelling CV-ketel (Nefit HR 2017) en aansluiting wasmachine en een grote zolderkamer met dakkapel aan de achterzijde, wastafel en bergruimte achter de knieschotten.
Bijzonderheden:
- centrale ligging aan de rand van Hilversum-zuid en nabij alle voorzieningen
- circa 12 meter diepe achtertuin (Z/O) met ruime berging en ruim pad achterom (ideaal voor een bakfiets!)
- 3 goede slaapkamers op de 1e verdieping en een grote kamer op de 2e verdieping;
- CV-installatie via Nefit Topline HR combiketel (2017);
- voorzien van dubbele beglazing en dakisolatie;
- energielabel C;
- bouwjaar circa 1960;
- gebruiksoppervlak Wonen 113 m²;
- perceeloppervlakte 140 m².
Kenmerken
| Bouwjaar | 1960 |
|---|---|
| Bouwvorm | bestaande bouw |
| Woonoppervlakte | 113 |
| Aantal kamers | 5 |
Overdracht
| Status | Onder bod |
|---|---|
| Prijs | € 515.000 Kosten koper |
| Aanvaarding | in overleg |
Bouw vorm
| Bouwjaar | 1960 |
|---|---|
| Bouwvorm | bestaande bouw |
Indeling
| Woonoppervlakte | 113 |
|---|---|
| Inhoud | 383 |
| Aantal kamers | 5 |
| Slaapkamers | 4 |
| Etages | 3 |
Tuin
| Tuin | Achtertuin, Voortuin |
|---|---|
| Hoofdtuin oppervlakte | 72 |
| Hoofdtuin positie | Zuidoost |
| Aantal bergingen | 1 |
Parking
| Garage soort | Geen garage |
|---|
In de buurt
Wij kennen werkelijk iedere straat en elke hoek van Hilversum. Benieuwd wat een buurt je te bieden heeft? We kunnen je er alles over vertellen!



Plan een bezichtiging
voor: Van Wassenaerlaan 33
Bel ons op 035 625 20 70 of WhatsApp via 0356252070 voor direct contact. Of laat jouw gegevens achter en wij nemen zo snel mogelijk contact met je op.



