Terug naar resultatenWegastraat 28
Wegastraat 28
1223 CP HILVERSUM
€ 500.000 k.k.
Omschrijving
In de gewilde Astronomische buurt gelegen, sfeervol jaren-‘30 middenwoning (bouwjaar 1931) met voor- en achtertuin. Gelegen in een rustige kindvriendelijke buurt met speeltuin aan het einde van de straat. Tevens gunstig gesitueerd ten opzichte van bos en hei en op loopafstand van winkelgebied Seinhorst voor alle dagelijkse boodschappen, scholen, NS-stations (10 minuten) en uitvalswegen richting Amsterdam (A1) en Utrecht.
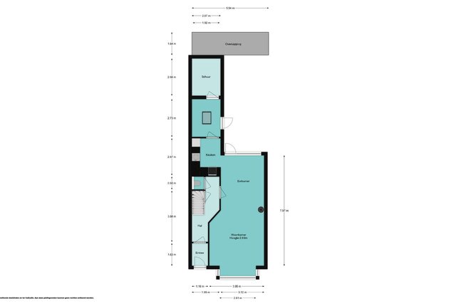
Indeling: entree / vestibule, hal met trapopgang, trapkast en toilet, Lichte woon / -eetkamer met erker aan de voorzijde, visgraat parketvloer, houtkachel en deur naar de achtertuin. De semi-open keuken in L-opstelling is voorzien van inbouwapparatuur en stenen blad. Tussenhal met daklicht en achterdeur naar de tuin en deur die toegang biedt tot de berging. De op het zuiden gesitueerde achtertuin is middels achterom bereikbaar en beschikt over een ruime houten overkapping.
1e verdieping: overloop met toilet, 2 grote en 1 kleinere slaapkamer waarvan de 2 grote slaapkamers voorzien zijn van een vaste kast en de kleinere slaapkamer met deur naar balkon aan de achterzijde. De geheel betegelde badkamer is gesitueerd aan de voorzijde en heeft een ruime inloopdouche met drain en wastafelmeubel. Deze verdieping is voorzien van een laminaatvloer.
2e verdieping: via vaste trap bereikbare voorzolder met toegang naar de bergvliering, wasruimte met aansluiting wasapparatuur en c.v.-ketel, slaapkamer aan achterzijde met dakkapel en ruime slaapkamer aan de voorzijde met 2 Velux dakramen.
Kortom, een heerlijke woning met 5 slaapkamers op geliefde locatie die zonder grote verbouwing als uw nieuwe (t)huis dienst kan doen!
Bijzonderheden:
- Gebruiksoppervlakte wonen 119m2;
- Berging 6 m²;
- Overkapping 9 m²;
- Balkon 3 m²;
- Verwarmd middels Intergas Comfort 2020;
- Vloer-, gevel- en dakisolatie (grotendeels);
- 12 zonnepanelen;
- Beschermd stads- / dorpsgezicht;
- Energielabel C.
+ Meer omschrijving
- Minder omschrijving
Indeling: entree / vestibule, hal met trapopgang, trapkast en toilet, Lichte woon / -eetkamer met erker aan de voorzijde, visgraat parketvloer, houtkachel en deur naar de achtertuin. De semi-open keuken in L-opstelling is voorzien van inbouwapparatuur en stenen blad. Tussenhal met daklicht en achterdeur naar de tuin en deur die toegang biedt tot de berging. De op het zuiden gesitueerde achtertuin is middels achterom bereikbaar en beschikt over een ruime houten overkapping.
1e verdieping: overloop met toilet, 2 grote en 1 kleinere slaapkamer waarvan de 2 grote slaapkamers voorzien zijn van een vaste kast en de kleinere slaapkamer met deur naar balkon aan de achterzijde. De geheel betegelde badkamer is gesitueerd aan de voorzijde en heeft een ruime inloopdouche met drain en wastafelmeubel. Deze verdieping is voorzien van een laminaatvloer.
2e verdieping: via vaste trap bereikbare voorzolder met toegang naar de bergvliering, wasruimte met aansluiting wasapparatuur en c.v.-ketel, slaapkamer aan achterzijde met dakkapel en ruime slaapkamer aan de voorzijde met 2 Velux dakramen.
Kortom, een heerlijke woning met 5 slaapkamers op geliefde locatie die zonder grote verbouwing als uw nieuwe (t)huis dienst kan doen!
Bijzonderheden:
- Gebruiksoppervlakte wonen 119m2;
- Berging 6 m²;
- Overkapping 9 m²;
- Balkon 3 m²;
- Verwarmd middels Intergas Comfort 2020;
- Vloer-, gevel- en dakisolatie (grotendeels);
- 12 zonnepanelen;
- Beschermd stads- / dorpsgezicht;
- Energielabel C.
Kenmerken
| Bouwjaar | 1939 |
|---|---|
| Bouwvorm | bestaande bouw |
| Woonoppervlakte | 119 |
| Aantal kamers | 6 |
Overdracht
| Status | Onder bod |
|---|---|
| Prijs | € 500.000 Kosten koper |
| Aanvaarding | in overleg |
Bouw vorm
| Bouwjaar | 1939 |
|---|---|
| Bouwvorm | bestaande bouw |
Indeling
| Woonoppervlakte | 119 |
|---|---|
| Inhoud | 443 |
| Aantal kamers | 6 |
| Slaapkamers | 5 |
| Etages | 3 |
Tuin
| Tuin | Achtertuin, Voortuin |
|---|---|
| Hoofdtuin oppervlakte | 30 |
| Hoofdtuin positie | Zuidoost |
| Aantal bergingen | 1 |
Parking
| Garage soort | Geen garage |
|---|
In de buurt
Wij kennen werkelijk iedere straat en elke hoek van Hilversum. Benieuwd wat een buurt je te bieden heeft? We kunnen je er alles over vertellen!



Plan een bezichtiging
voor: Wegastraat 28
Bel ons op 035 625 20 70 of WhatsApp via 0356252070 voor direct contact. Of laat jouw gegevens achter en wij nemen zo snel mogelijk contact met je op.


