Terug naar resultatenWillibrorduslaan 101
Willibrorduslaan 101
1216 PA HILVERSUM
€ 575.000 k.k.
Omschrijving
Wakker worden met een wijds uitzicht over groen, stilte om je heen en een tuin die overloopt in het landschap waar de reeën vrijelijk rondlopen: welkom op de Willibrorduslaan. Deze woning uit 1972 biedt volop ruimte (ca. 142 m²), een praktische indeling met onder andere een inpandige garage, meerdere woonlagen met veel slaapkamers, én de mogelijkheid om het volledig naar eigen wens te moderniseren. Een plek waar je elke dag geniet van rust, ruimte en een vrij gevoel dat maar weinig locaties bieden.
LOCATIE
De woning ligt op een opvallend mooie en rustige plek aan de rand van Kerkelanden. Juist hier ervaar je een groene, ruim opgezette omgeving met veel privacy en een vrijere ligging dan je misschien zou verwachten. Tegelijkertijd zijn winkels, scholen, sportvoorzieningen en het centrum van Hilversum goed bereikbaar, evenals uitvalswegen en het station. Een locatie waar de praktische voordelen van de wijk samenkomen met een ligging die daar duidelijk bovenuit stijgt.
INDELING
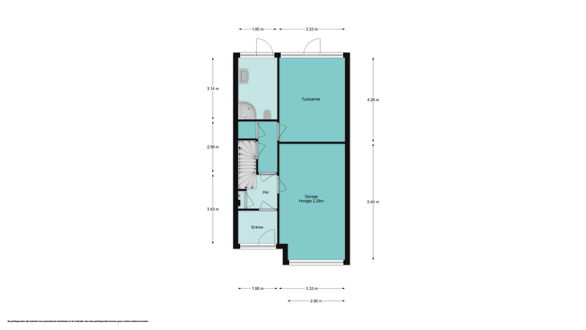
Begane grond:
Op begane grond bevinden zich de inpandige garage, een badkamer en een tuinkamer aan de achterzijde. De tuinkamer heeft openslaande deuren naar de tuin.
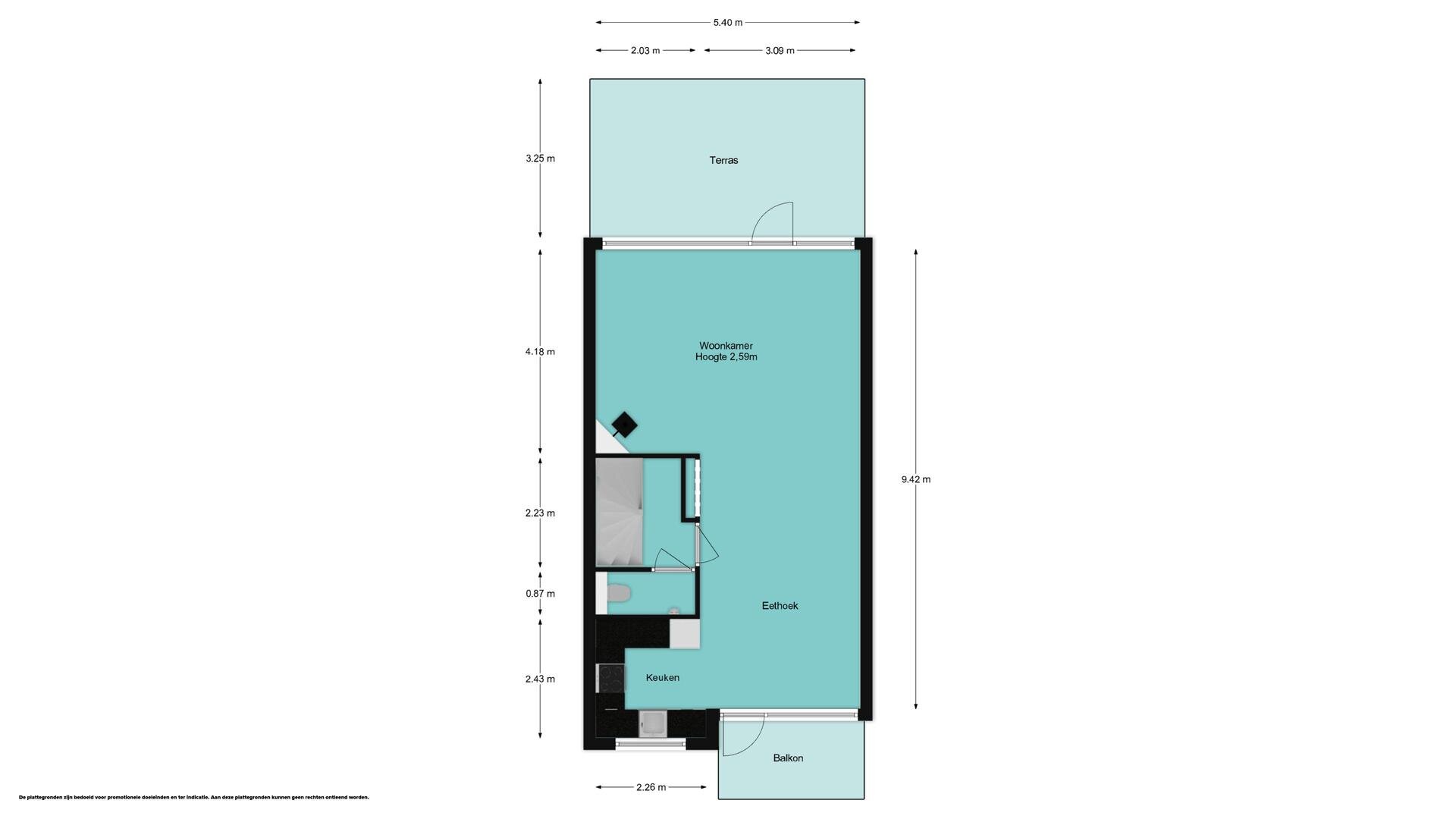
Eerste verdieping:
De eerste verdieping is ingericht als royale woonverdieping met een ruime woon-/eetkamer en open keuken. Aan de voorzijde bevindt zich een balkon, terwijl aan de achterzijde een royaal terras is gesitueerd met een optimaal uitzicht over het achterliggende weiland.
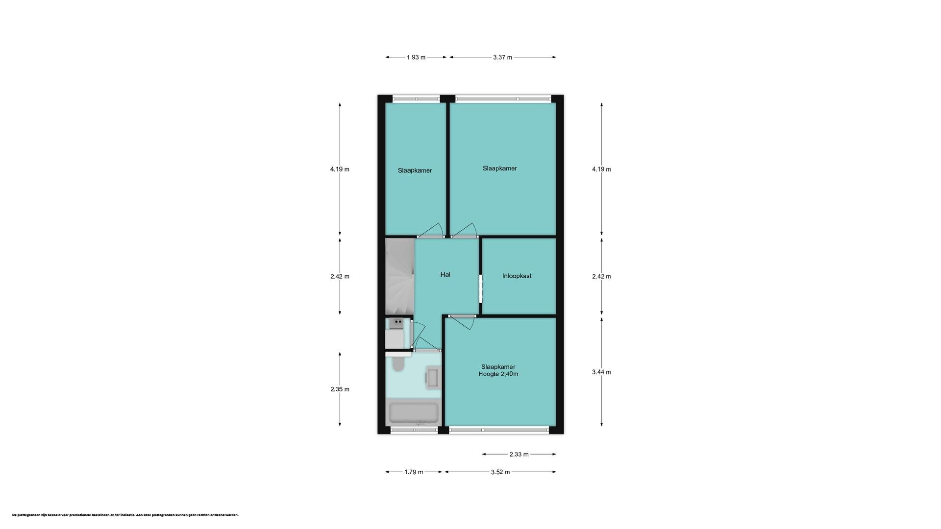
Tweede verdieping:
De tweede verdieping beschikt over drie slaapkamers, een inloopkast en een tweede badkamer.
De indeling is ruim en biedt een goede basis.
KENMERKEN
• bouwjaar 1972
• gebruiksoppervlakte wonen 142 m²
• wijds uitzicht over de weilanden
• inpandige garage
• energielabel C
Zie jij de potentie van deze woning? Bel dan even naar ons kantoor, dan plannen we graag een bezichtiging voor je in.
+ Meer omschrijving
- Minder omschrijving
LOCATIE
De woning ligt op een opvallend mooie en rustige plek aan de rand van Kerkelanden. Juist hier ervaar je een groene, ruim opgezette omgeving met veel privacy en een vrijere ligging dan je misschien zou verwachten. Tegelijkertijd zijn winkels, scholen, sportvoorzieningen en het centrum van Hilversum goed bereikbaar, evenals uitvalswegen en het station. Een locatie waar de praktische voordelen van de wijk samenkomen met een ligging die daar duidelijk bovenuit stijgt.
INDELING
Begane grond:
Op begane grond bevinden zich de inpandige garage, een badkamer en een tuinkamer aan de achterzijde. De tuinkamer heeft openslaande deuren naar de tuin.
Eerste verdieping:
De eerste verdieping is ingericht als royale woonverdieping met een ruime woon-/eetkamer en open keuken. Aan de voorzijde bevindt zich een balkon, terwijl aan de achterzijde een royaal terras is gesitueerd met een optimaal uitzicht over het achterliggende weiland.
Tweede verdieping:
De tweede verdieping beschikt over drie slaapkamers, een inloopkast en een tweede badkamer.
De indeling is ruim en biedt een goede basis.
KENMERKEN
• bouwjaar 1972
• gebruiksoppervlakte wonen 142 m²
• wijds uitzicht over de weilanden
• inpandige garage
• energielabel C
Zie jij de potentie van deze woning? Bel dan even naar ons kantoor, dan plannen we graag een bezichtiging voor je in.
Kenmerken
| Bouwjaar | 1972 |
|---|---|
| Bouwvorm | bestaande bouw |
| Woonoppervlakte | 142 |
| Aantal kamers | 5 |
Overdracht
| Status | Beschikbaar |
|---|---|
| Prijs | € 575.000 Kosten koper |
| Aanvaarding | in overleg |
Bouw vorm
| Bouwjaar | 1972 |
|---|---|
| Bouwvorm | bestaande bouw |
Indeling
| Woonoppervlakte | 142 |
|---|---|
| Inhoud | 524 |
| Aantal kamers | 5 |
| Slaapkamers | 4 |
| Etages | 3 |
Tuin
| Tuin | Achtertuin, Voortuin |
|---|---|
| Hoofdtuin oppervlakte | 240 |
| Hoofdtuin positie | Zuidwest |
Parking
| Garage soort | Inpandig |
|---|
In de buurt
Wij kennen werkelijk iedere straat en elke hoek van Hilversum. Benieuwd wat een buurt je te bieden heeft? We kunnen je er alles over vertellen!



Plan een bezichtiging
voor: Willibrorduslaan 101
Bel ons op 035 625 20 70 of WhatsApp via 0356252070 voor direct contact. Of laat jouw gegevens achter en wij nemen zo snel mogelijk contact met je op.


