Terug naar resultatenZuidermeent 45
Zuidermeent 45
1218 GW HILVERSUM
€ 475.000 k.k.
Omschrijving
Op een prettige locatie in de Hilversumse Meent ligt dit uitstekend onderhouden appartement van circa 87 m². Het appartement kenmerkt zich door een stijlvolle en moderne vormgeving en een verzorgde afwerking, waardoor de woning een eigentijdse en comfortabele uitstraling heeft. De woning beschikt over twee slaapkamers, een ruime woon-/eetkamer, een fijn balkon, een eigen parkeerplaats en een praktische berging. Dankzij het energielabel A woon je hier bovendien energiezuinig en toekomstbestendig.
LOCATIE
Het appartement is gelegen in de wijk Hilversumse Meent, een rustige en prettige woonwijk aan de rand van Hilversum. Supermarkten, winkels, scholen en sportfaciliteiten bevinden zich op korte afstand. Ook het centrum van Hilversum, met een breed aanbod aan winkels, horeca en voorzieningen, is goed bereikbaar. Daarnaast liggen openbaar vervoer, uitvalswegen en diverse groene gebieden in de buurt, waardoor je hier woont met zowel de levendigheid van de stad als de rust van de natuur binnen handbereik.
INDELING
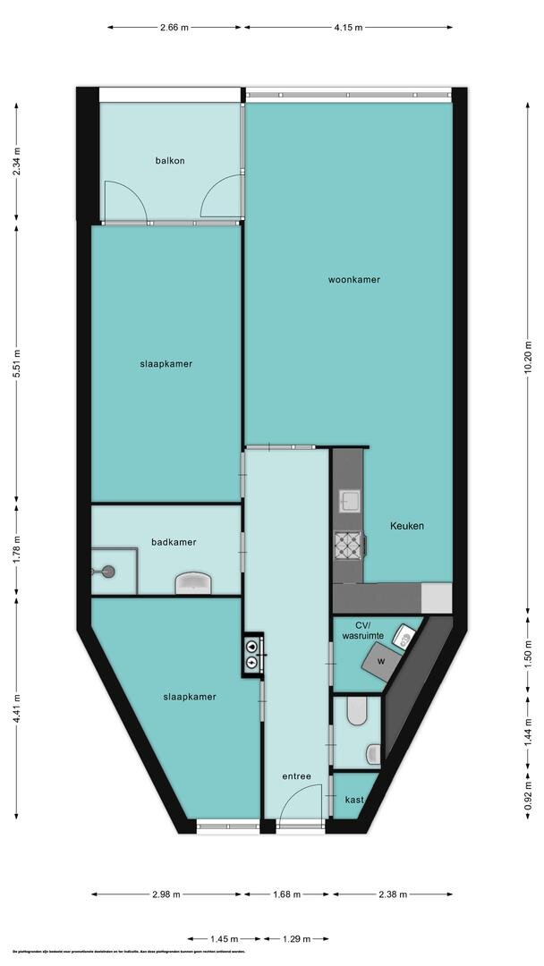
Via de entree kom je in de verzorgde hal, die toegang geeft tot alle vertrekken van het appartement. Hier bevinden zich onder andere het separate toilet met fontein, de moderne badkamer en de verschillende kamers.
De badkamer is modern uitgevoerd en voorzien van een inloopdouche en wastafelmeubel.
De ruime woon-/eetkamer is een lichte en prettige leefruimte met voldoende plek voor zowel een comfortabele zithoek als een royale eettafel. De keuken is van alle gemakken voorzien, waaronder een combi-oven (2021), afwasmachine, koelkast, vriezer en een inductie kookplaat (2023). Vanuit de woonkamer heb je directe toegang tot het balkon, een fijne plek om even buiten te zitten en te genieten van de rust.
Het appartement beschikt over twee slaapkamers, ideaal als ruime hoofdslaapkamer, voorzien van airco en een deur naar het balkon, en bijvoorbeeld een werk-, logeer- of hobbykamer.
Het balkon vormt een fijne verlenging van de woonruimte en biedt een heerlijke plek om te ontspannen, een kop koffie te drinken of op een mooie dag buiten te zitten.
BIJZONDERHEDEN
• Woonoppervlakte ca. 87 m²
• Bouwjaar: 2009
• Servicekosten: € 156,- per maand
• Eigen parkeerplaats
• Berging aanwezig
• Energielabel A
De VvE beschikt over zonnepanelen.
Kortom, een modern en instapklaar 3-kamerappartement van ca. 87 m² met balkon, eigen parkeerplaats en energielabel A. Nieuwsgierig geworden? Bel gerust ons kantoor, dan plannen we graag een afspraak voor u in.
+ Meer omschrijving
- Minder omschrijving
LOCATIE
Het appartement is gelegen in de wijk Hilversumse Meent, een rustige en prettige woonwijk aan de rand van Hilversum. Supermarkten, winkels, scholen en sportfaciliteiten bevinden zich op korte afstand. Ook het centrum van Hilversum, met een breed aanbod aan winkels, horeca en voorzieningen, is goed bereikbaar. Daarnaast liggen openbaar vervoer, uitvalswegen en diverse groene gebieden in de buurt, waardoor je hier woont met zowel de levendigheid van de stad als de rust van de natuur binnen handbereik.
INDELING
Via de entree kom je in de verzorgde hal, die toegang geeft tot alle vertrekken van het appartement. Hier bevinden zich onder andere het separate toilet met fontein, de moderne badkamer en de verschillende kamers.
De badkamer is modern uitgevoerd en voorzien van een inloopdouche en wastafelmeubel.
De ruime woon-/eetkamer is een lichte en prettige leefruimte met voldoende plek voor zowel een comfortabele zithoek als een royale eettafel. De keuken is van alle gemakken voorzien, waaronder een combi-oven (2021), afwasmachine, koelkast, vriezer en een inductie kookplaat (2023). Vanuit de woonkamer heb je directe toegang tot het balkon, een fijne plek om even buiten te zitten en te genieten van de rust.
Het appartement beschikt over twee slaapkamers, ideaal als ruime hoofdslaapkamer, voorzien van airco en een deur naar het balkon, en bijvoorbeeld een werk-, logeer- of hobbykamer.
Het balkon vormt een fijne verlenging van de woonruimte en biedt een heerlijke plek om te ontspannen, een kop koffie te drinken of op een mooie dag buiten te zitten.
BIJZONDERHEDEN
• Woonoppervlakte ca. 87 m²
• Bouwjaar: 2009
• Servicekosten: € 156,- per maand
• Eigen parkeerplaats
• Berging aanwezig
• Energielabel A
De VvE beschikt over zonnepanelen.
Kortom, een modern en instapklaar 3-kamerappartement van ca. 87 m² met balkon, eigen parkeerplaats en energielabel A. Nieuwsgierig geworden? Bel gerust ons kantoor, dan plannen we graag een afspraak voor u in.
Kenmerken
| Bouwjaar | 2009 |
|---|---|
| Bouwvorm | bestaande bouw |
| Woonoppervlakte | 87 |
| Aantal kamers | 3 |
Overdracht
| Status | Verkocht onder voorbehoud |
|---|---|
| Prijs | € 475.000 Kosten koper |
| Aanvaarding | in overleg |
Bouw vorm
| Bouwjaar | 2009 |
|---|---|
| Bouwvorm | bestaande bouw |
Indeling
| Woonoppervlakte | 87 |
|---|---|
| Inhoud | 285 |
| Aantal kamers | 3 |
| Slaapkamers | 2 |
| Etages | 1 |
Tuin
| Tuin | Geen tuin |
|---|---|
| Aantal bergingen | 1 |
Parking
| Garage soort | Parkeerplaats, Geen garage |
|---|
In de buurt
Wij kennen werkelijk iedere straat en elke hoek van Hilversum. Benieuwd wat een buurt je te bieden heeft? We kunnen je er alles over vertellen!




