Heidepark
1201 GM Hilversum
Omschrijving
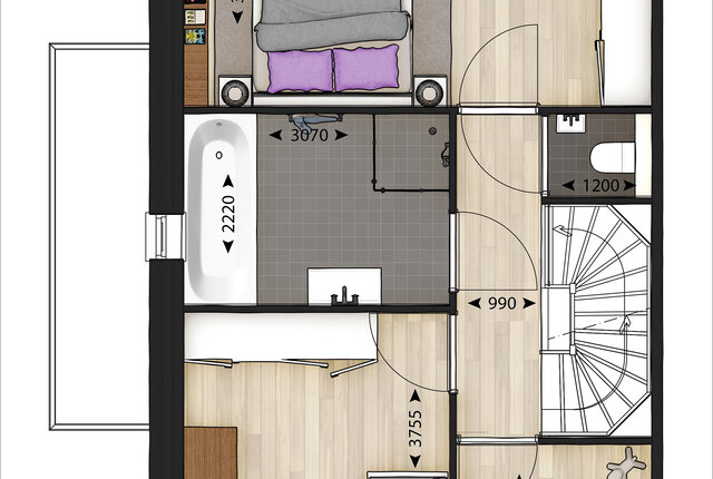
Heidepark is een nieuwbouwplan in het mooie Anna’s Hoeve. Het plan bestaat uit 22 woningen die onder te verdelen zijn in vijf verschillende woningtypes. De woningen worden in 3 kleine rijtjes gebouwd, wat het kleinschalige karakter van het plan versterkt.
De kleinste eengezinswoning is een tussenwoning met een woonoppervlakte van 105 m2. Er zijn ook tussenwoningen van circa 120 m2. De grootste woningen liggen op de hoeken. Deze zijn 137 tot 140 m2 groot.
Het ontwerp is van Bulkens architecten en is duidelijk geïnspireerd op de traditionele architectuur uit de jaren dertig. Volledig passend bij de groene omgeving en de omliggende bebouwing. De woningen worden in 3 kleine rijtjes gebouwd, wat het kleinschalige karakter van het plan versterkt.
Kenmerken
Overdracht
| Status | Verkocht |
|---|---|
| Prijs | prijs op aanvraag |
In de buurt
Wij kennen werkelijk iedere straat en elke hoek van Hilversum. Benieuwd wat een buurt je te bieden heeft? We kunnen je er alles over vertellen!











